Size Real Estate est une société de conseil en immobilier d’entreprise. Nous vous accompagnons dans tous vos projets immobiliers à Paris ou en première couronne. De la recherche de bureaux à la loc ...
En savoir plus

260 m²
HT HC
Location bureau - 260 m²
Paris 9 (75009)
Dernière mise à jour : Il y a 3 jours
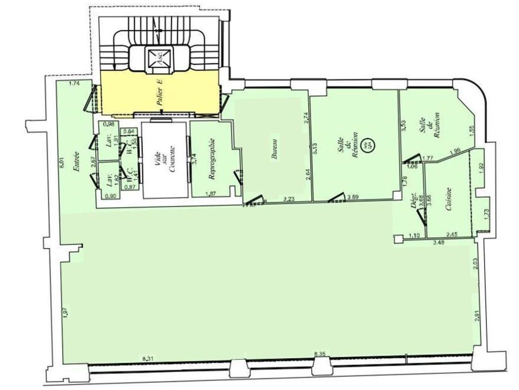
Bureaux à louer de 260m2
En plein quartier des Grands Boulevards, SIZE Real Estate vous propose à la location une surface de bureaux de 260m² au 1er étage (entresol) d'un immeuble haussmannien emblématique du 9e arrondissement.
Les bureaux ont été totalement rénovés et climatisés. Disponibles immédiatement.
Construction : Immeuble de service et d'excellent standing
Date (dernière mise à jour) : 2026-04-08
Bail : Commercial 3 6 9
Honoraires / Location: 15 % HT du loyer global annuel HT HC À la charge du preneur
Prestations :
- Immeuble de service et d'excellent standing
-
- Grand hall d'accueil avec gardien
- Accès sécurisé
- Ascenseur
- Salle de sport dans l'immeuble
- Cours de yoga et de Pilates
-
- État des locaux : Rénové
-
- Plateau lumineux et traversant
- Climatisation
-
- Surface organisée en :
- - 1 grand open space
- - 3 bureaux
- - 1 cuisine
- - 1 local technique/espace reprographie
- - 2 sanitaires
-
- Aménagement flexible
- Peu de contraintes porteuses
Tableau de Surfaces :
Conditions juridiques et financères :
Charges : 1976
Accessibilité :
RER : Auber (A)
- Métro : Bonne Nouvelle (8, 9), Bourse (3), Sentier (3)
- Bus : 85, 74, 32, N16, N15, 20, 39
En plein quartier des Grands Boulevards, SIZE Real Estate vous propose à la location une surface de bureaux de 260m² au 1er étage (entresol) d'un immeuble haussmannien emblématique du 9e arrondissement.
Les bureaux ont été totalement rénovés et climatisés. Disponibles immédiatement.
Construction : Immeuble de service et d'excellent standing
Date (dernière mise à jour) : 2026-04-08
Bail : Commercial 3 6 9
Honoraires / Location: 15 % HT du loyer global annuel HT HC À la charge du preneur
Prestations :
- Immeuble de service et d'excellent standing
-
- Grand hall d'accueil avec gardien
- Accès sécurisé
- Ascenseur
- Salle de sport dans l'immeuble
- Cours de yoga et de Pilates
-
- État des locaux : Rénové
-
- Plateau lumineux et traversant
- Climatisation
-
- Surface organisée en :
- - 1 grand open space
- - 3 bureaux
- - 1 cuisine
- - 1 local technique/espace reprographie
- - 2 sanitaires
-
- Aménagement flexible
- Peu de contraintes porteuses
Tableau de Surfaces :
| Etage | Type de bien | Surface | Dispo | |
| 1er | Bureaux | 260 m² | Immédiate |
Conditions juridiques et financères :
Charges : 1976
Accessibilité :
RER : Auber (A)
- Métro : Bonne Nouvelle (8, 9), Bourse (3), Sentier (3)
- Bus : 85, 74, 32, N16, N15, 20, 39
Voir plus
Afficher les consommations énergétiques
Localisation et transport aux alentours
Favoris
Exporter
Appeler
Contacter
Signaler cette annonce










