Nous sommes Immprove, une grande équipe de plus de 200 experts en immobilier d’entreprise, implantés localement avec plus de 20 agences sur tout le territoire.Depuis 2009, notre proximité, notre ét ...
En savoir plus

1 180 m² divisible dès 369 m²
HT HC
Location bureau - 1180 m²
Paris 8 (75008)
Dernière mise à jour : Il y a 10 jours
Très belles terrasses
Emplacement idéal - Rue de Provence, à deux pas des Grands Magasins, Immprove vous propose plusieurs surfaces de bureaux à la location en bail commercial ou clef en main, au sein d'un immeuble de bon standing. A voir absolument : Le très beau duplex au 6ème/7ème étage avec 2 très belles terrasse d'environ 65 m²
Régime Fiscal : T.V.A. (20%)
Dépôt de garantie : 3 mois de loyer HT HC
Honoraires : Nous consulter
Information sur le Bail :
Le loyer est une somme forfaitaire incluant toutes les charges et la fiscalité.
Prestations :
Accessibilité:
RER Auber (A)
RER Haussmann Saint-Lazare (E)
Metro Havre-Caumartin (3, 9)
Train Gare Saint-Lazare
Les informations sur les risques auxquels ce bien est exposé sont disponibles sur le site Géorisques : www.georisques.gouv.fr
Emplacement idéal - Rue de Provence, à deux pas des Grands Magasins, Immprove vous propose plusieurs surfaces de bureaux à la location en bail commercial ou clef en main, au sein d'un immeuble de bon standing. A voir absolument : Le très beau duplex au 6ème/7ème étage avec 2 très belles terrasse d'environ 65 m²
| Étage | Type | Surfaces | Dispo | Loyer | Charges | Type de bailRév. annuelle |
|---|---|---|---|---|---|---|
| 6/7 | Bureaux | 431 | Immédiate | 950 m²/an HT HC | Bail Commercial 3-6-9 ansselon l'indice des loyers des activités tertiaires (ILAT) | |
| 5 | Bureaux | 369 | Immédiate | 950 m²/an HT HC | Bail Commercial 3-6-9 ansselon l'indice des loyers des activités tertiaires (ILAT) | |
| 3 | Bureaux | 380 | T1 2026 | 950 m²/an HT HC | Bail Commercial 3-6-9 ansselon l'indice des loyers des activités tertiaires (ILAT) |
Régime Fiscal : T.V.A. (20%)
Dépôt de garantie : 3 mois de loyer HT HC
Honoraires : Nous consulter
Information sur le Bail :
Le loyer est une somme forfaitaire incluant toutes les charges et la fiscalité.
Prestations :
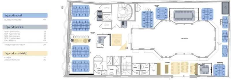
- Façade 1913 classée
- Deux entrées indépendantes avec hall d'accueil
- Deux batteries d'ascenseur
- 2 belles salles de réunion au 2ème sous-sol
- Parking public à proximité immédiate
- Terrasses
- 1 plateau par étage et chaque étage est desservi par l'ascenseur (accès privatif par badge):
- Organisation en plusieurs espaces ouverts et salles de réunion
- Très belles terrasses au 6ème et 7ème étage
- 1 cuisine
- 4 sanitaires
- Faux plancher technique
- Câblage informatique
- Climatisation réversible
Accessibilité:
RER Auber (A)
RER Haussmann Saint-Lazare (E)
Metro Havre-Caumartin (3, 9)
Train Gare Saint-Lazare
Les informations sur les risques auxquels ce bien est exposé sont disponibles sur le site Géorisques : www.georisques.gouv.fr
Voir plus
Afficher les consommations énergétiques
Localisation et transport aux alentours
Favoris
Exporter
Appeler
Contacter
Signaler cette annonce
