BNP Paribas Real Estate, N°1 de la transaction en immobilier d''entreprise en France, vous propose un accompagnement de qualité pour l''acquisition, la vente ou la location d''un bien immobilier.Vo ...
En savoir plus

2 974 m² divisible dès 2 345 m²
Loyer sur demande
Location bureau - 2974 m²
Paris 8 (75008)
Publiée : Il y a 5 jours
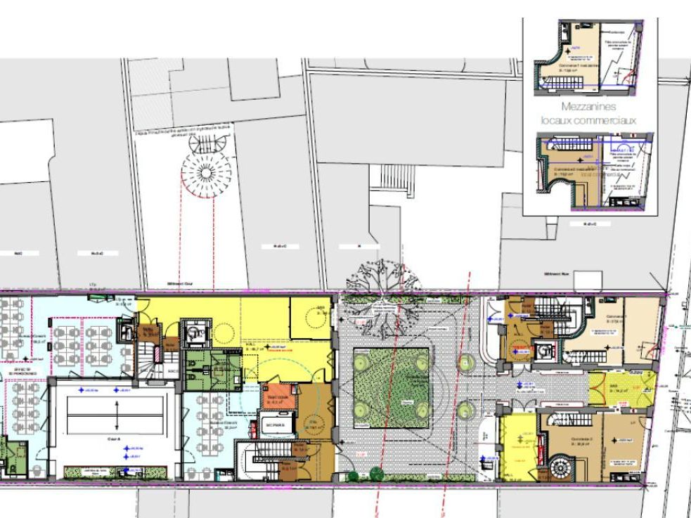
Quartier Central des Affaires, au coeur du 8ème arrondissement, entre la rue La Boétie et la rue de Penthièvre, au 33 rue de Miromesnil, nous vous proposons à la location un ensemble immobilier composé d'un hôtel particulier en R+4 sur rue et d'un immeuble " Art Déco " en R+7 avec rooftops en R+8. L 'ensemble d'une superficie d'environ 3149 m² à usage de bureaux et de commerces (Rdc sur rue) fait l'objet d'une restructuration menée par PALISSAD ARCHITECTURES avec notamment la création de 2 rooftops et la végétalisation partielle de la cour pavée
QUARTIER CENTRAL DES AFFAIRES
LOCATION DE BUREAUX
IMMEUBLE INDEPENDANT
Cour jardin
Rooftop
Terrasses
3060 m² de bureaux à louer
Livraison Septembre 2026
Disponibilité: 01/09/2026
Honoraires: Nous consulter. à la signature du bail
| Fiche technique du bien | |
|---|---|
| Métro | M9 "Miromesnil" + M13 |
| RER | A "Auber" / RER E |
| Bus | Nombreuses lignes |
| Gare | St Lazare |
| Accès Pers. Mobilité Réduite | Oui |
| Immeuble | Hôtel particulier sur rue |
| Etat de l'immeuble | Restructuré avec PC |
| Immeuble indépendant | "Art Déco" sur cour |
| Type chauffage | Individuel |
| Source chauffage | Gaz Bâtiment sur rue |
| Source chauffage | Electrique Bâtiment sur cour |
| Climatisation | Réversible |
| Sécurité | Contrôle d'accès |
| Ascenseur(s) | 2 |
| Linéaire de façade | 4,50 mètre(s) |
| Aménagement des bureaux | Espaces Ouverts |
Voir plus
Afficher les consommations énergétiques
Surfaces divisibles : 17
| Surface | LoyerHT/HC/m²/an | Étage / Batiment | Infos complémentaires |
| 257 m² | N.C | RDC | Bat. Cour |
| 44 m² | N.C | RDC | Bat Rue |
| 272 m² | N.C | R+1 | Bat. Cour |
| 340 m² | N.C | R-1 | Bat. Cour |
| 78 m² | N.C | R-1 | Bat Rue |
| 133 m² | N.C | R+1 | Bat Rue |
| 275 m² | N.C | R+2 | Bat. Cour |
| 86 m² | N.C | R-2 | Bat. Cour |
| 274 m² | N.C | R+3 | Bat. Cour |
| 130 m² | N.C | R+2 | Bat Rue |
| 273 m² | N.C | R+4 | Bat. Cour |
| 128 m² | N.C | R+3 | Bat Rue |
| 275 m² | N.C | R+5 | Bat. Cour |
| 116 m² | N.C | R+4 | Bat Rue |
| 262 m² | N.C | R+6 | Bat. Cour |
| 105 m² | N.C | R+7 | Bat. Cour |
| 11 m² | N.C | R+8 | Bat. Cour |
Favoris
Exporter
Appeler
Contacter
Signaler cette annonce










