Créée en mai 2012, Wellstone est une société de conseil en immobilier d'entreprise qui accompagne ses clients propriétaires, investisseurs et utilisateurs dans leurs différents projets immobiliers ...
En savoir plus

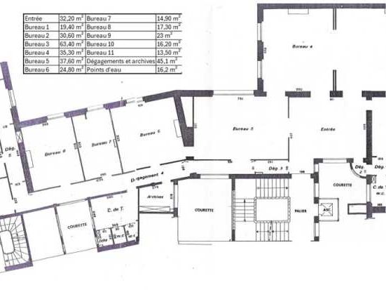
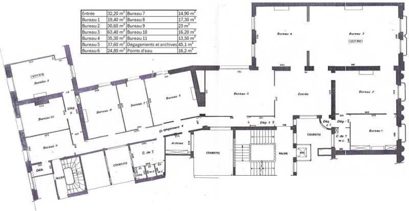
389 m²
HT HC
Location bureau - 389 m²
Paris 8 (75008)
Dernière mise à jour : Il y a 2 jours
Au pied du Parc Monceau et dans un des plus beaux immeubles de Paris, Wellstone vous propose des locaux de 389m² de très haut standing. Avec ses beaux volumes, sa hauteur sous plafond importante et sa luminosité naturelle, ces locaux conviendront à toute activité d'avocats, dans la finance ou le conseil. Une surface coup de coeur à visiter rapidement!
Impôt Foncier : 60 €/m²/an
Régime Fiscal : T.V.A.
Dépôt de garantie : 3 mois de loyer HT/HC
Honoraires : A la charge du preneur.
Taxe Bureau : 25,77 €/m²/an
Information sur le Bail :
Chauffage inclus dans les charges
Prestations :
Accessibilité:
Metro Charles de Gaulle Etoile (6, 2, 1, A)
Metro Courcelles (2)
Les informations sur les risques auxquels ce bien est exposé sont disponibles sur le site Géorisques : www.georisques.gouv.fr
| Étage | Type | Surfaces | Dispo | Loyer | Charges | Type de bailRév. annuelle |
|---|---|---|---|---|---|---|
| 3 | Bureaux | 389 | Immédiate | 780 m²/an HT HC | 87 m²/an HT | 3-6-9 ansILAT |
Impôt Foncier : 60 €/m²/an
Régime Fiscal : T.V.A.
Dépôt de garantie : 3 mois de loyer HT/HC
Honoraires : A la charge du preneur.
Taxe Bureau : 25,77 €/m²/an
Information sur le Bail :
Chauffage inclus dans les charges
Prestations :
- Parties communes d'excellent standing
- Locaux livrés rénovés
- Surface organisée en 1 accueil, 11 bureaux, une cuisine, 3 sanitaires
- Parquet, moulures et cheminées
- Belle hauteur sous plafond
- Locaux traversants
- Ascenseur
- Gardien à demeure
- Câblage
- Fibre optique
- Climatisation
- Idéal cabinets d'avocats, experts-comptables, finance...
Accessibilité:
Metro Charles de Gaulle Etoile (6, 2, 1, A)
Metro Courcelles (2)
Les informations sur les risques auxquels ce bien est exposé sont disponibles sur le site Géorisques : www.georisques.gouv.fr
Voir plus
Afficher les consommations énergétiques
Localisation et transport aux alentours
Favoris
Exporter
Appeler
Contacter
Signaler cette annonce










