Besoin d'un conseil en immobilier ? Nous sommes une équipe dédiée à 100% à nos clients utilisateurs avec des services variés (stratégie immobilière, recherche immobilière, renégociation de bail, dé ...
En savoir plus

1 103 m² divisible dès 361 m²
HT HC
Location bureau - 1103 m²
Paris 8 (75008)
Dernière mise à jour : Il y a 4 mois
A louer : 1434 m² de bureaux divisibles à partir de 330 m² à Paris 8ème
Savills vous propose des surfaces à la location de 1434 m² de bureaux divisibles à partir de 330 m² situés à Paris 8ème.
L'immeuble sur rue bénéficie d'une très belle adresse au coeur du QCA.
Les locaux sont en état d'usage, climatisés, câblés et meublés. Très peu de contraintes porteuses sur les plateaux. Un balcon filant au 2ème et 4ème étage.
Disponibilité : immédiate
Impôt Foncier : 15,44 €/HT-HC/m²/an
Régime Fiscal : T.V.A.
Dépôt de garantie : 3 mois de loyer HT HC
Honoraires : A la charge du preneur
Taxe Bureau : 16,57 €/m²/an
Information sur le Bail :
Bail dérogatoire : 24 mois maximum Le mobilier est inclus
Prestations :
Accessibilité:
Bus LA BOETIE-PERCIER (52, 83, 93), HAUSSMANN - MIROMESNIL (22, 28, 32, 43, 80, 84), HAUSSMANN - COURCELLES (83)
Métro Miromesnil (13, 9)
RER CHARLES DE GAULLE ETOILE (A)
Train Paris Saint-Lazare (J, L)
Les informations sur les risques auxquels ce bien est exposé sont disponibles sur le site Géorisques : www.georisques.gouv.fr
Savills vous propose des surfaces à la location de 1434 m² de bureaux divisibles à partir de 330 m² situés à Paris 8ème.
L'immeuble sur rue bénéficie d'une très belle adresse au coeur du QCA.
Les locaux sont en état d'usage, climatisés, câblés et meublés. Très peu de contraintes porteuses sur les plateaux. Un balcon filant au 2ème et 4ème étage.
Disponibilité : immédiate
| Étage | Type | Surfaces | Dispo | Loyer | Charges | Type de bailRév. annuelle |
|---|---|---|---|---|---|---|
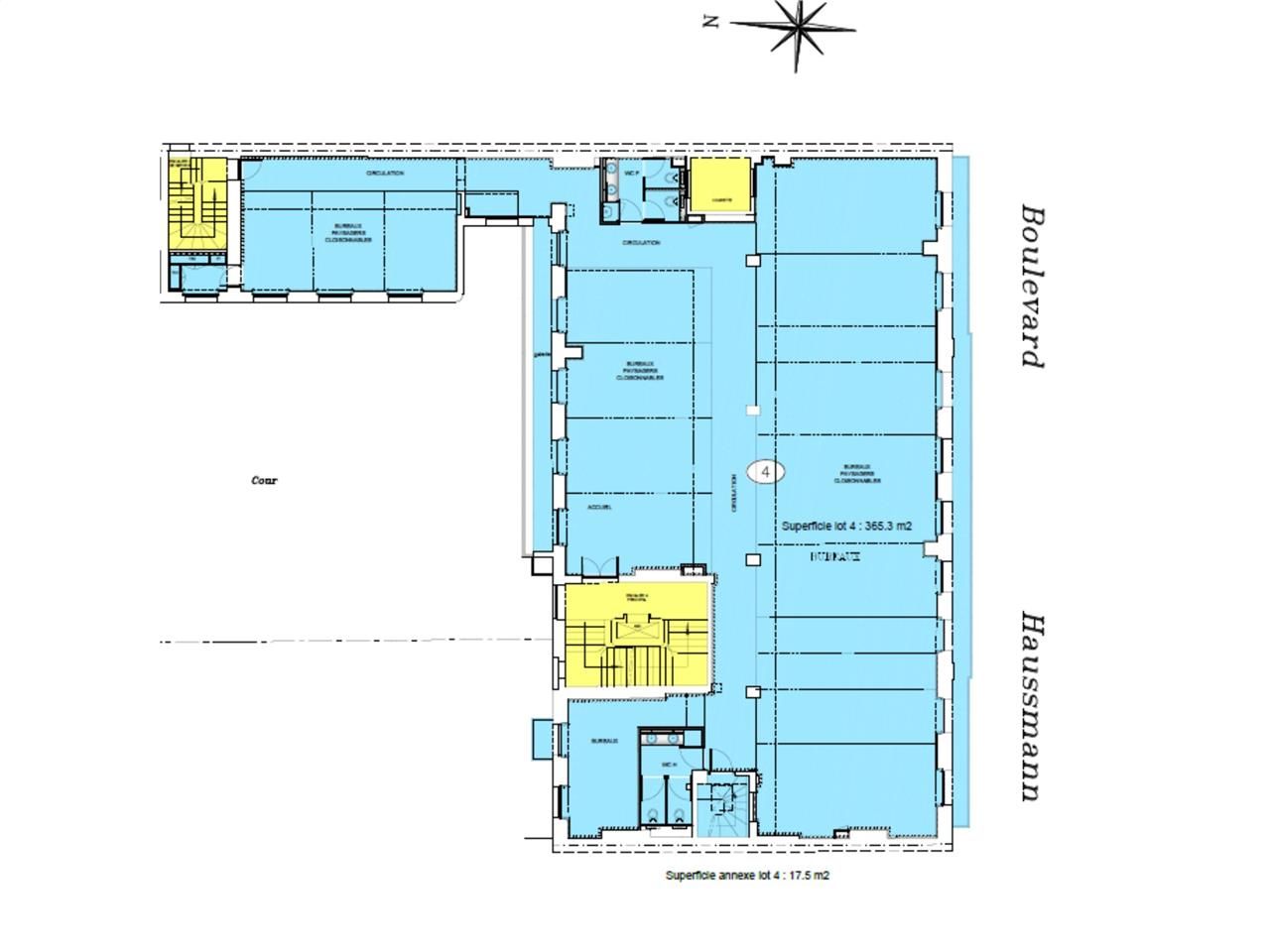
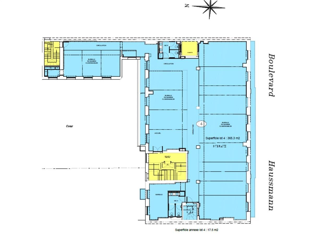
| 4 | Bureaux | 361,4 | Immédiate | 550 m²/an/HT-HC | 78,92 m²/an HT | DérogatoireILAT Indice des Loyers des Activités Tertiaires |
| 3 | Bureaux | 364,4 | Immédiate | 550 m²/an/HT-HC | 78,92 m²/an HT | DérogatoireILAT Indice des Loyers des Activités Tertiaires |
| 2 | Bureaux | 377,5 | Sous option | 550 m²/an/HT-HC | 78,92 m²/an HT | DérogatoireILAT Indice des Loyers des Activités Tertiaires |
Impôt Foncier : 15,44 €/HT-HC/m²/an
Régime Fiscal : T.V.A.
Dépôt de garantie : 3 mois de loyer HT HC
Honoraires : A la charge du preneur
Taxe Bureau : 16,57 €/m²/an
Information sur le Bail :
Bail dérogatoire : 24 mois maximum Le mobilier est inclus
Prestations :
- Parties communes de bon standing
- Belle hauteur sous plafond
- Ascenseur
- Locaux en bon état d'usage
- Locaux modernes câblés et meublés
- Climatisation
- Faux plancher
- Faux plafond
- Double vitrage
- Espace pouvant fonctionner en open space ou cloisonné
- Balcon filant
Accessibilité:
Bus LA BOETIE-PERCIER (52, 83, 93), HAUSSMANN - MIROMESNIL (22, 28, 32, 43, 80, 84), HAUSSMANN - COURCELLES (83)
Métro Miromesnil (13, 9)
RER CHARLES DE GAULLE ETOILE (A)
Train Paris Saint-Lazare (J, L)
Les informations sur les risques auxquels ce bien est exposé sont disponibles sur le site Géorisques : www.georisques.gouv.fr
Emplacement(s) de Parking: 5 extérieur(s)
Voir plus
Afficher les consommations énergétiques
Localisation et transport aux alentours
- Miromesnil295m (4min à pied)913
- Saint-Philippe du Roule416m (6min à pied)9
Favoris
Exporter
Appeler
Contacter
Signaler cette annonce










