Conseil en immobilier d'entreprise, Cushman & Wakefield est un acteur incontournable au rayonnement international. Cushman & Wakefield offre des solutions dans toutes les étapes que comporte un p ...
En savoir plus

139 m²
HT HC
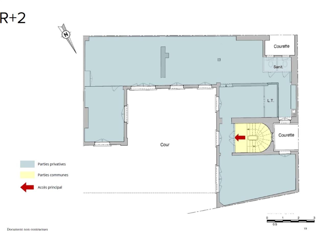
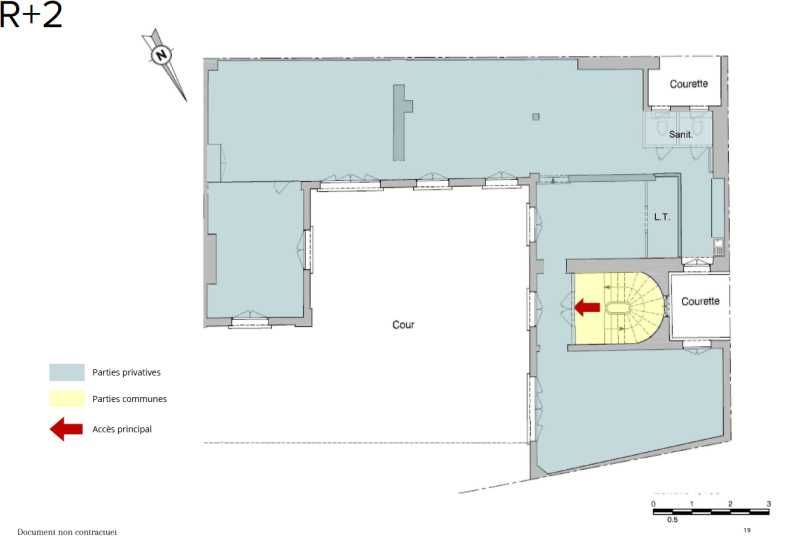
Location bureau - 139 m²
Paris 8 (75008)
Dernière mise à jour : Il y a 2 jours
Cushman & Wakefield vous propose à la location une surface de bureaux de 139 m², située au 2ème étage d'un immeuble néo-classique de standing, en plein coeur du 8e arrondissement de Paris.
À seulement 1 minutes à pied de la station de métro Concorde (lignes 1, 8 et 12) et de la station Madeleine (Ligne 8 et 14), l'immeuble bénéficie d'une localisation stratégique, dans un secteur prisé par les sociétés de conseil, banques privées, cabinets d'avocats, fonds d'investissement et maisons de luxe.
La surface, en parfait état offre une belle hauteur sous plafond et une configuration optimale. (mixte open space et bureaux cloisonnés)
Atouts principaux :
Bel immeuble avec parties communes de standing
Bureaux en parfait état et lumineux
Prestations haussmannienne : parquet, moulures, belle hauteur sous plafond
Localisation premium, à proximité immédiate de la place de la Concorde et de la place Vendôme
Bail commercial 3/6/9
Disponibilité immédiate
Nous sommes à votre disposition pour tout complément d'information ou pour organiser une visite.
Impôt Foncier : 59,9 €//m²/an
Honoraires : à la charge du preneur
Prestations :
Accessibilité:
Métro Concorde (lignes 1 - 8 - 12)
Métro Madeleine (lignes 8 - 12 - 14)
Bus Lignes 42-45-52-72-73-84-94
Les informations sur les risques auxquels ce bien est exposé sont disponibles sur le site Géorisques : www.georisques.gouv.fr
À seulement 1 minutes à pied de la station de métro Concorde (lignes 1, 8 et 12) et de la station Madeleine (Ligne 8 et 14), l'immeuble bénéficie d'une localisation stratégique, dans un secteur prisé par les sociétés de conseil, banques privées, cabinets d'avocats, fonds d'investissement et maisons de luxe.
La surface, en parfait état offre une belle hauteur sous plafond et une configuration optimale. (mixte open space et bureaux cloisonnés)
Atouts principaux :
Bel immeuble avec parties communes de standing
Bureaux en parfait état et lumineux
Prestations haussmannienne : parquet, moulures, belle hauteur sous plafond
Localisation premium, à proximité immédiate de la place de la Concorde et de la place Vendôme
Bail commercial 3/6/9
Disponibilité immédiate
Nous sommes à votre disposition pour tout complément d'information ou pour organiser une visite.
| Étage | Type | Surfaces | Dispo | Loyer | Charges | Type de bailRév. annuelle |
|---|---|---|---|---|---|---|
| 2 | Bureaux | 139 | Immédiate | 850 HT/HC/m²/an | 28,1 HT/m²/an | 3-6-9 ans |
Impôt Foncier : 59,9 €//m²/an
Honoraires : à la charge du preneur
Prestations :
- Immeuble néo classique
- Cour végétalisée
- Parking public à proximité
- Accès sécurisé
- Parties communes rénovées
- Absence d'ascenseur
- Chauffage collectif
- Surface lumineuse
- 2 grands open space pouvant être cloisonnés
- 1 salle de réunion
- 2 bureaux
- Sanitaires
- Parfait état
- Surface RDC : 0 m²
Accessibilité:
Métro Concorde (lignes 1 - 8 - 12)
Métro Madeleine (lignes 8 - 12 - 14)
Bus Lignes 42-45-52-72-73-84-94
Les informations sur les risques auxquels ce bien est exposé sont disponibles sur le site Géorisques : www.georisques.gouv.fr
Voir plus
Afficher les consommations énergétiques
Localisation et transport aux alentours
Favoris
Exporter
Appeler
Contacter
Signaler cette annonce










