Conseil en immobilier d'entreprise, Cushman & Wakefield est un acteur incontournable au rayonnement international. Cushman & Wakefield offre des solutions dans toutes les étapes que comporte un p ...
En savoir plus

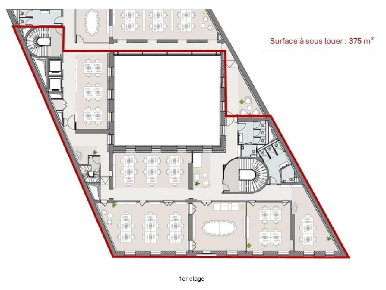
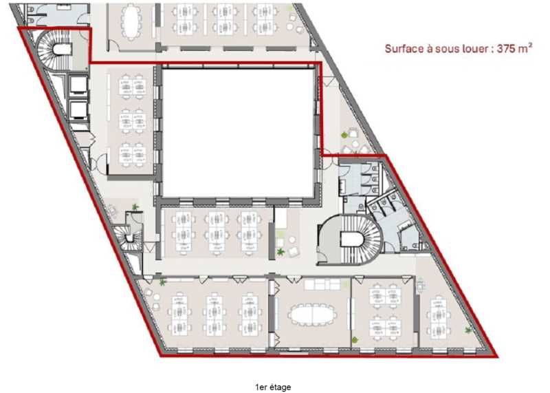
375 m²
HT HC
Location bureau - 375 m²
Dernière mise à jour : Il y a 3 jours
Bureaux restructurés à deux pas des Champs-Elysées !
Cushman & Wakefield vous propose des bureaux idéalement situés au coeur du 8e arrondissement de Paris, dans un environnement prestigieux et dynamique. Entre les Champs-Élysées et le boulevard Haussmann, ce quartier emblématique rassemble sièges sociaux, commerces haut de gamme et une offre complète de services, le tout parfaitement desservi par les transports en commun. Une localisation qui combine image, accessibilité et attractivité.
Au sein d'un immeuble restructuré en 2025, les surfaces proposées bénéficient de volumes généreux avec 3,60 m de hauteur sous plafond, d'une excellente luminosité et de prestations modernes.
Flexibles et rénovés, la surface est disponible et peut accueillir vos équipes dès maintenant !
Impôt Foncier : 36,58 €//m²/an
Régime Fiscal : T.V.A.
Dépôt de garantie : 3 mois de loyer HT/HC
Honoraires : à la charge du preneur
Taxe Bureau : 24,85 €/m²/an
Information sur le Bail :
Taxe balayage : 0,38 euros/m²
Prestations :
Accessibilité:
Métro Franklin D. Roosevelt (lignes 1,9)
Métro George V (ligne 1)
RER Charles de Gaulle Etoile (RER A)
Les informations sur les risques auxquels ce bien est exposé sont disponibles sur le site Géorisques : www.georisques.gouv.fr
Cushman & Wakefield vous propose des bureaux idéalement situés au coeur du 8e arrondissement de Paris, dans un environnement prestigieux et dynamique. Entre les Champs-Élysées et le boulevard Haussmann, ce quartier emblématique rassemble sièges sociaux, commerces haut de gamme et une offre complète de services, le tout parfaitement desservi par les transports en commun. Une localisation qui combine image, accessibilité et attractivité.
Au sein d'un immeuble restructuré en 2025, les surfaces proposées bénéficient de volumes généreux avec 3,60 m de hauteur sous plafond, d'une excellente luminosité et de prestations modernes.
Flexibles et rénovés, la surface est disponible et peut accueillir vos équipes dès maintenant !
| Étage | Type | Surfaces | Dispo | Loyer | Charges | Type de bailRév. annuelle |
|---|---|---|---|---|---|---|
| 1 | Bureaux | 375 | 750 HT/HC/m²/an | 70 HT/m²/an | 3-6-9 ans ou DérogatoireSur l'indice ILAT |
Impôt Foncier : 36,58 €//m²/an
Régime Fiscal : T.V.A.
Dépôt de garantie : 3 mois de loyer HT/HC
Honoraires : à la charge du preneur
Taxe Bureau : 24,85 €/m²/an
Information sur le Bail :
Taxe balayage : 0,38 euros/m²
Prestations :
- Immeuble en cours de lourde restructuration
- Le projet vise les certifications suivantes : HQE BD 2016 Excellent, BREEAM RFO 2015 "Very Good", BBC Rénovation, BBCA, Ready to Osmoz
- Conservation d'une majeure partie du bâti et mise en valeur
- Valorisation et extension des surfaces au sous-sol consacrées aux salles de réunion
- Création d'une double peau vitrée dans la cour intérieure pour créer une continuité sur chaque plateau
- Création de plusieurs espaces extérieurs
- Capacité de l'immeuble : jusqu'à 489 personnes
- Locaux rénovés
- Climatisation réversible
- 6 espaces de bureaux permettant d'accueillir 50 personnes + 15 en SDR
- Faux plancher technique
- Fenêtre double vitrage acoustique
- Hauteur sous plafond de 3,60 m
- Chauffage et rafraîchissement par géothermie
- Surface RDC : 0 m²
Accessibilité:
Métro Franklin D. Roosevelt (lignes 1,9)
Métro George V (ligne 1)
RER Charles de Gaulle Etoile (RER A)
Les informations sur les risques auxquels ce bien est exposé sont disponibles sur le site Géorisques : www.georisques.gouv.fr
Voir plus
Afficher les consommations énergétiques
Localisation et transport aux alentours
Favoris
Exporter
Appeler
Contacter
Signaler cette annonce










