Conseil en immobilier d'entreprise, Cushman & Wakefield est un acteur incontournable au rayonnement international. Cushman & Wakefield offre des solutions dans toutes les étapes que comporte un p ...
En savoir plus

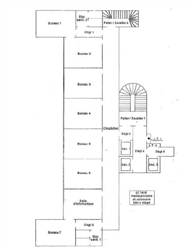
196 m²
HT HC
Location bureau - 196 m²
Paris 7 (75007)
Dernière mise à jour : Il y a 3 jours
196 m² de bureaux disponibles rue de Grenelle
Cushman & Wakefield vous propose 196² de surface de bureaux disponible au coeur du 7ème arrondissement.
La surface est aménagée avec des aménagements de qualité avec des bureaux privatifs et des espaces d'open-spaces.
Plateau traversant avec peu de contraintes porteuses permettant une grande flexibilité d'aménagement.
Surface climatisé.
N'hésitez pas à nous contacter pour toutes informations complémentaires.
Impôt Foncier : 34 €//m²/an
Régime Fiscal : T.V.A.
Dépôt de garantie : 3 mois de loyer HT/HC
Paiement Loyer : Trimestriel
Honoraires : à la charge du preneur
Taxe Bureau : 26 €/m²/an
Information sur le Bail :
code 9785B clés au bureau
Prestations :
Accessibilité:
Métro Sèvres - Babylone (lignes 10, 12)
Métro Saint-Sulpice (ligne 4)
Bus Lignes 39-63-68-69-70-84-86-87-94-95-96
Les informations sur les risques auxquels ce bien est exposé sont disponibles sur le site Géorisques : www.georisques.gouv.fr
Cushman & Wakefield vous propose 196² de surface de bureaux disponible au coeur du 7ème arrondissement.
La surface est aménagée avec des aménagements de qualité avec des bureaux privatifs et des espaces d'open-spaces.
Plateau traversant avec peu de contraintes porteuses permettant une grande flexibilité d'aménagement.
Surface climatisé.
N'hésitez pas à nous contacter pour toutes informations complémentaires.
| Étage | Type | Surfaces | Dispo | Loyer | Charges | Type de bailRév. annuelle |
|---|---|---|---|---|---|---|
| 3 | Bureaux | 196 | 615 HT/HC/m²/an | 87,1 HT/m²/an | 3-6-9 ansSur l'indice ILAT |
Impôt Foncier : 34 €//m²/an
Régime Fiscal : T.V.A.
Dépôt de garantie : 3 mois de loyer HT/HC
Paiement Loyer : Trimestriel
Honoraires : à la charge du preneur
Taxe Bureau : 26 €/m²/an
Information sur le Bail :
code 9785B clés au bureau
Prestations :
- Immeuble de standing des années 60
- Contrôle d'accès extérieur (Immeuble sécurisé par badge)
- Ascenseur
- Fibre optique
- Bureaux en état d'usage
- Surface lumineuse répartie en un espace d'accueil, un couloir distribuant plusieurs bureaux sur rue
- 2 sanitaires privatifs
- Parquet
- Courants forts et faibles
- Surface RDC : 0 m²
Accessibilité:
Métro Sèvres - Babylone (lignes 10, 12)
Métro Saint-Sulpice (ligne 4)
Bus Lignes 39-63-68-69-70-84-86-87-94-95-96
Les informations sur les risques auxquels ce bien est exposé sont disponibles sur le site Géorisques : www.georisques.gouv.fr
Voir plus
Afficher les consommations énergétiques
Localisation et transport aux alentours
- Saint-Sulpice250m (4min à pied)4
- Sèvres Babylone343m (5min à pied)1012
- Rennes497m (7min à pied)12
- Rue du Bac531m (8min à pied)12
- Saint-Germain-des-Prés550m (8min à pied)4
Favoris
Exporter
Appeler
Contacter
Signaler cette annonce
