Créée en mai 2012, Wellstone est une société de conseil en immobilier d'entreprise qui accompagne ses clients propriétaires, investisseurs et utilisateurs dans leurs différents projets immobiliers ...
En savoir plus

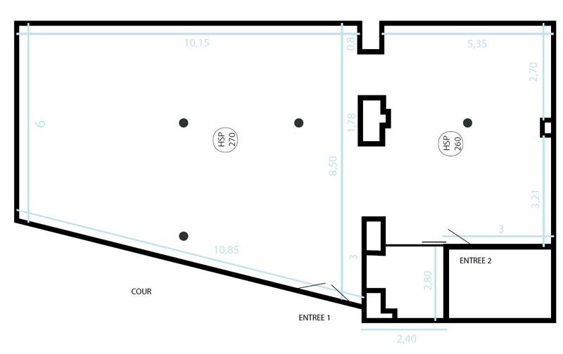
120 m²
HT HC
Location bureau - 120 m²
Paris 3 (75003)
Dernière mise à jour : Il y a 2 jours
Wellstone vous propose des bureaux à louer en plein coeur du 3ème arrondissement.
Régime Fiscal : T.V.A.
Dépôt de garantie : 2 mois de loyer HT HC
Honoraires : A la charge du preneur.
Information sur le Bail :
Contrat de prestation de service tout compris
Prestations :
Accessibilité:
Metro Arts et Métiers (3,11)
Metro Temple (3)
Metro République (11, 2, 9, 5, 8)
Les informations sur les risques auxquels ce bien est exposé sont disponibles sur le site Géorisques : www.georisques.gouv.fr
| Étage | Type | Surfaces | Dispo | Loyer | Charges | Type de bailRév. annuelle |
|---|---|---|---|---|---|---|
| RDC | Bureaux | 120 | 1er mars 2026 | 750 m²/an HT HC | Prestation de serviceILAT |
Régime Fiscal : T.V.A.
Dépôt de garantie : 2 mois de loyer HT HC
Honoraires : A la charge du preneur.
Information sur le Bail :
Contrat de prestation de service tout compris
Prestations :
- Locaux en bon état
- Surface organisée en espaces ouverts/bureaux cloisonnés, 1 cuisine et 1 sanitaire
- Surface RDC : 120 m²
Accessibilité:
Metro Arts et Métiers (3,11)
Metro Temple (3)
Metro République (11, 2, 9, 5, 8)
Les informations sur les risques auxquels ce bien est exposé sont disponibles sur le site Géorisques : www.georisques.gouv.fr
Voir plus
Afficher les consommations énergétiques
Localisation et transport aux alentours
Favoris
Exporter
Appeler
Contacter
Signaler cette annonce
