Créée en mai 2012, Wellstone est une société de conseil en immobilier d'entreprise qui accompagne ses clients propriétaires, investisseurs et utilisateurs dans leurs différents projets immobiliers ...
En savoir plus



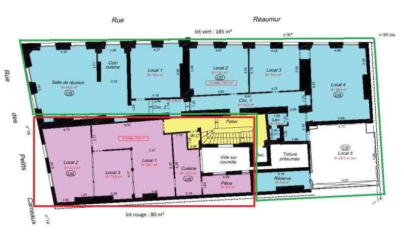
265 m² divisible dès 80 m²
HT HC
Location bureau - 265 m²
Paris 2 (75002)
Dernière mise à jour : Il y a 10 jours
Bureaux à louer - Paris 2
En plein coeur du quartier de Montorgueil, Wellstone vous propose à la location 185m² de bureaux en excellent état, entièrement refaits par un architecte et 80 m² livrés rénovés. Ces espaces conviendront parfaitement à toute activité liée au web, au digital, à la communication et au marketing, à visiter sans tarder!
Impôt Foncier : 9,13 €/m²/an
Régime Fiscal : T.V.A.
Dépôt de garantie : 3 mois de loyer HT/HC
Honoraires : A la charge du preneur.
Taxe Bureau : 25,77 €/m²/an
Information sur le Bail :
Le propriétaire envisage de réunir les deux lots afin d'en créer un seul et unique Taxe balayage : 1.80 euros/m²/an
Prestations :
Accessibilité:
Metro Bonne Nouvelle (8, 9)
Metro Réaumur-Sébastopol (3, 4)
Metro Sentier (3)
Les informations sur les risques auxquels ce bien est exposé sont disponibles sur le site Géorisques : www.georisques.gouv.fr
En plein coeur du quartier de Montorgueil, Wellstone vous propose à la location 185m² de bureaux en excellent état, entièrement refaits par un architecte et 80 m² livrés rénovés. Ces espaces conviendront parfaitement à toute activité liée au web, au digital, à la communication et au marketing, à visiter sans tarder!
| Étage | Type | Surfaces | Dispo | Loyer | Charges | Type de bailRév. annuelle |
|---|---|---|---|---|---|---|
| 2 | Bureaux | 185 | Immédiate | 550 m²/an HT HC | 25,29 m²/an HT | 3-6-9 ansILAT |
| 2 | Bureaux | 80 | Immédiate | 550 m²/an HT HC | 25,29 m²/an HT | 3-6-9 ansILAT |
Impôt Foncier : 9,13 €/m²/an
Régime Fiscal : T.V.A.
Dépôt de garantie : 3 mois de loyer HT/HC
Honoraires : A la charge du preneur.
Taxe Bureau : 25,77 €/m²/an
Information sur le Bail :
Le propriétaire envisage de réunir les deux lots afin d'en créer un seul et unique Taxe balayage : 1.80 euros/m²/an
Prestations :
- Parties communes de bon standing
- Lot 80 m² : Locaux livrés rénovés Surface organisée en espace ouvert Belle hauteur sous plafond Climatisation Câblage Fibre optique Idéal start-up
- Lot 185 m² : Locaux en excellent état Surface organisée en 1 grand open space, 4 bureaux, 2 salles de réunion, 1 coin kitchenette, réserve
Accessibilité:
Metro Bonne Nouvelle (8, 9)
Metro Réaumur-Sébastopol (3, 4)
Metro Sentier (3)
Les informations sur les risques auxquels ce bien est exposé sont disponibles sur le site Géorisques : www.georisques.gouv.fr
Voir plus
Afficher les consommations énergétiques
Localisation et transport aux alentours
- Sentier203m (3min à pied)3
- Etienne Marcel374m (6min à pied)4
- Bonne Nouvelle388m (6min à pied)89
- Réaumur Sébastopol502m (8min à pied)34
Favoris
Exporter
Appeler
Contacter
Signaler cette annonce
