Conseil en immobilier d'entreprise, Cushman & Wakefield est un acteur incontournable au rayonnement international. Cushman & Wakefield offre des solutions dans toutes les étapes que comporte un p ...
En savoir plus

200 m²
HT HC
Location bureau - 200 m²
Paris 2 (75002)
Dernière mise à jour : Il y a 2 jours
Bureaux / Rue Vivienne
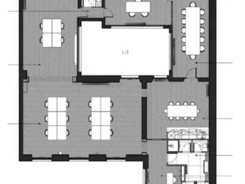
Cushman & Wakefield vous propose 200 m² de bureaux rénovés, idéalement situés à proximité immédiate de la Place de la Bourse et de la Place des Victoires, au coeur d'un quartier central et dynamique. Ces espaces bénéficient d'une excellente luminosité, de beaux volumes et d'une configuration offrant une grande flexibilité d'aménagement, permettant de s'adapter facilement à vos besoins opérationnels.
Parfaitement adaptés aux activités de communication, marketing, tech ou conseil, ces bureaux constituent un environnement de travail moderne et performant, propice à la collaboration comme à la concentration. Une opportunité rare pour implanter votre entreprise dans un cadre à la fois stratégique et valorisant.
Surface : 200 m²
Loyer : 680 euros/m²/an HT HC (+ charges 36 euros/m²/an)
Disponibilité : Immédiate
Bail : 3-6-9 ans (ILAT)
Accès : Métro Bourse (L3) / Grands Boulevards (L8-9)
Contactez-nous pour une visite !
Impôt Foncier : 15,25 €//m²/an
Régime Fiscal : T.V.A.
Dépôt de garantie : 3 mois de loyer HT/HC
Paiement Loyer : Trimestriel
Honoraires : à la charge du preneur
Prestations :
Accessibilité:
Métro Bourse (ligne 3)
Métro Richelieu - Drouot (lignes 8, 9)
Métro Pyramides (lignes 7, 14)
Bus Lignes 20, 31, 27, 29, 32, 39, 45, 68, 74, 85, 95
Les informations sur les risques auxquels ce bien est exposé sont disponibles sur le site Géorisques : www.georisques.gouv.fr
Cushman & Wakefield vous propose 200 m² de bureaux rénovés, idéalement situés à proximité immédiate de la Place de la Bourse et de la Place des Victoires, au coeur d'un quartier central et dynamique. Ces espaces bénéficient d'une excellente luminosité, de beaux volumes et d'une configuration offrant une grande flexibilité d'aménagement, permettant de s'adapter facilement à vos besoins opérationnels.
Parfaitement adaptés aux activités de communication, marketing, tech ou conseil, ces bureaux constituent un environnement de travail moderne et performant, propice à la collaboration comme à la concentration. Une opportunité rare pour implanter votre entreprise dans un cadre à la fois stratégique et valorisant.
Surface : 200 m²
Loyer : 680 euros/m²/an HT HC (+ charges 36 euros/m²/an)
Disponibilité : Immédiate
Bail : 3-6-9 ans (ILAT)
Accès : Métro Bourse (L3) / Grands Boulevards (L8-9)
Contactez-nous pour une visite !
| Étage | Type | Surfaces | Dispo | Loyer | Charges | Type de bailRév. annuelle |
|---|---|---|---|---|---|---|
| 2 | Bureaux | 200 | 680 HT/HC/m²/an | 36 HT/m²/an | 3-6-9 ansSur l'indice ILAT |
Impôt Foncier : 15,25 €//m²/an
Régime Fiscal : T.V.A.
Dépôt de garantie : 3 mois de loyer HT/HC
Paiement Loyer : Trimestriel
Honoraires : à la charge du preneur
Prestations :
- Immeuble ancien de caractère de bon standing
- Parties communes de très standing
- Jolie cour intérieure
- Gardien
- Interphone
- Chauffage collectif
- Ascenseur
- Fibre optique
- Locaux rénovés
- Accueil
- 2 espaces ouverts
- 2 bureaux
- Belle hauteur sous plafond
- Surface RDC : 0 m²
Accessibilité:
Métro Bourse (ligne 3)
Métro Richelieu - Drouot (lignes 8, 9)
Métro Pyramides (lignes 7, 14)
Bus Lignes 20, 31, 27, 29, 32, 39, 45, 68, 74, 85, 95
Les informations sur les risques auxquels ce bien est exposé sont disponibles sur le site Géorisques : www.georisques.gouv.fr
Voir plus
Afficher les consommations énergétiques
Localisation et transport aux alentours
- Bourse210m (3min à pied)3
- Quatre Septembre395m (6min à pied)3
- Richelieu Drouot450m (7min à pied)89
Favoris
Exporter
Appeler
Contacter
Signaler cette annonce










