Créée en mai 2012, Wellstone est une société de conseil en immobilier d'entreprise qui accompagne ses clients propriétaires, investisseurs et utilisateurs dans leurs différents projets immobiliers ...
En savoir plus

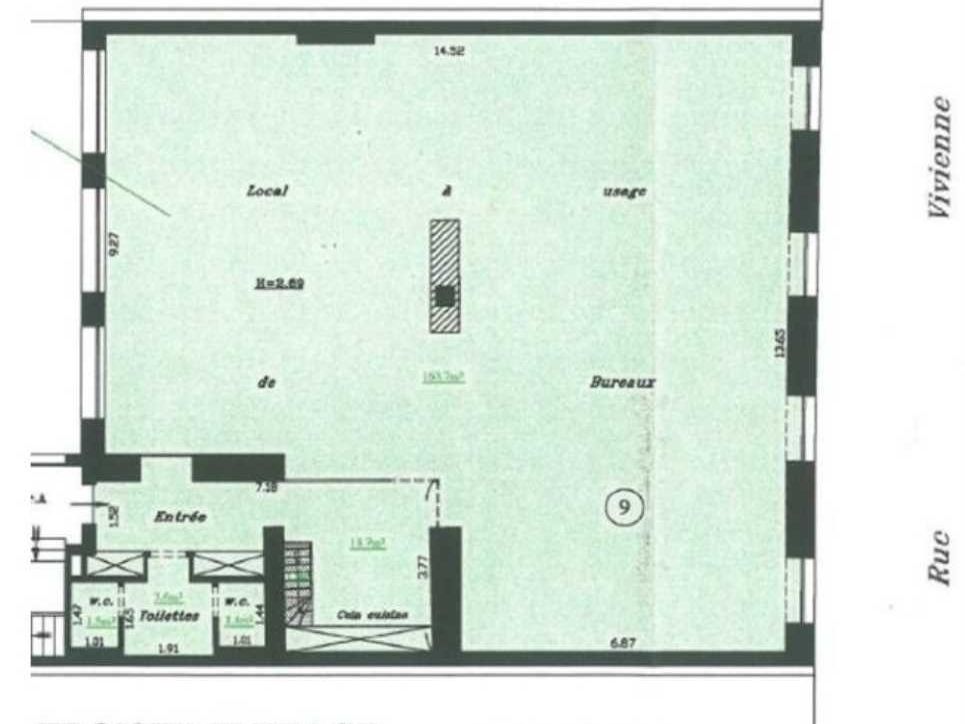
189 m²
HT HC
Location bureau - 189 m²
Paris 2 (75002)
Dernière mise à jour : Il y a 2 jours
A proximité immédiate de la Place de la Bourse et de la Place des Victoires, Wellstone vous propose à la location un bien d' environ 189m² situé rue Vivienne. Ce bien en excellent état, offrant une grande flexibilité d'aménagement et une belle luminosité conviendra parfaitement entres autres à toutes activités liées à la communication, au marketing, à la tech, et à toutes entreprises liées aux conseils.
Impôt Foncier : 25,51 €/m²/an
Régime Fiscal : T.V.A.
Dépôt de garantie : 3 mois de loyer HT/HC
Honoraires : A la charge du preneur.
Taxe Bureau : 25,77 €/m²/an
Information sur le Bail :
TEOM : inclus dans le foncier Honoraires suivi technique : 2,5% HT du montant du loyer
Prestations :
Accessibilité:
Metro 4 Septembre (3)
Metro Bourse (3)
Metro Pyramides (7, 14)
Les informations sur les risques auxquels ce bien est exposé sont disponibles sur le site Géorisques : www.georisques.gouv.fr
| Étage | Type | Surfaces | Dispo | Loyer | Charges | Type de bailRév. annuelle |
|---|---|---|---|---|---|---|
| 3 | Bureaux | 189 | Immédiate | 720 m²/an HT HC | 79,37 m²/an HT | 3-6-9 ansILAT |
Impôt Foncier : 25,51 €/m²/an
Régime Fiscal : T.V.A.
Dépôt de garantie : 3 mois de loyer HT/HC
Honoraires : A la charge du preneur.
Taxe Bureau : 25,77 €/m²/an
Information sur le Bail :
TEOM : inclus dans le foncier Honoraires suivi technique : 2,5% HT du montant du loyer
Prestations :
- Parties communes de bon standing
- Locaux en très bon état d'usage
- Surface organisée en 1 espace ouvert et 2 salles de réunion
- Parquet
Accessibilité:
Metro 4 Septembre (3)
Metro Bourse (3)
Metro Pyramides (7, 14)
Les informations sur les risques auxquels ce bien est exposé sont disponibles sur le site Géorisques : www.georisques.gouv.fr
Voir plus
Afficher les consommations énergétiques
Localisation et transport aux alentours
- Bourse252m (4min à pied)3
- Quatre Septembre395m (6min à pied)3
- Richelieu Drouot494m (7min à pied)89
Favoris
Exporter
Appeler
Contacter
Signaler cette annonce










