BNP Paribas Real Estate, N°1 de la transaction en immobilier d''entreprise en France, vous propose un accompagnement de qualité pour l''acquisition, la vente ou la location d''un bien immobilier.Vo ...
En savoir plus

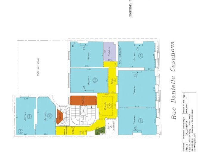
221 m²
Loyer sur demande
Location bureau - 221 m²
Paris 2 (75002)
Dernière mise à jour : Il y a 2 jours
BNPPRE vous propose une surface de locaux idéale pour du showroom proche de la Place Vendôme.
BNP vous propose une surface rénovée, avec une belle hauteur sous plafond, pose d'un nouveau parquet, 7 espaces dont 4 donnant sur rue et un espace accueil.
Disponibilité: 10/09/2026
Honoraires: Nous consulter. à la signature du bail
| Fiche technique du bien | |
|---|---|
| Métro | Station Opéra/Pyramides |
| RER | A Station Auber |
| Etat des locaux | Etat d'usage |
| Type chauffage | Individuel |
| Ascenseur(s) | 1 |
| Bureau(x) cloisonné(s) | 7 |
Afficher les consommations énergétiques
Surface divisible : 1
| Surface | LoyerHT/HC/m²/an | Étage / Batiment | Infos complémentaires |
| 221 m² | N.C | 1 | OLBUR2532482/1 |
Favoris
Exporter
Appeler
Contacter
Signaler cette annonce










