Alex Bolton, société de conseil en immobilier d’entreprise est spécialisée dans la transaction locative et la vente d’immeubles de bureaux.Dotée d’une équipe de collaborateurs expérimentés, la soci ...
En savoir plus

1 818 m² divisible dès 606 m²
HT HC
Location bureau - 1818 m²
Paris 19 (75019)
Dernière mise à jour : Il y a 12 jours
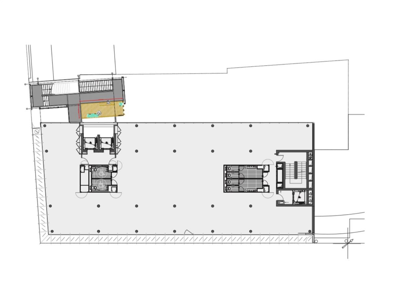
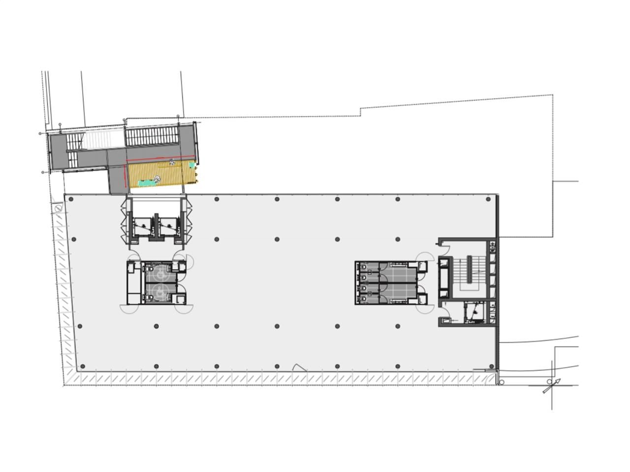
Alex Bolton vous propose des plateaux de bureaux efficients situés dans un immeuble de très bon standing offrant de nombreux services. Chaque surface bénéficie de son extérieur privatif, une terrasse.
Les locaux sont livrés entièrement rénovés.
Parties communes rénovées récemment. Nombreux parkings (vélo/voiture/2 roues) en sous sol.
Vues exceptionnelles sur Tout Paris au 7e étage.
Impôt Foncier : 13,21 €//m²/an
Régime Fiscal : T.V.A.
Dépôt de garantie : 3 mois de loyer HT/HC
Honoraires : A la charge du preneur.
Taxe Bureau : 21,7 €/m²/an
Information sur le Bail :
- Les charges incluent la maintenance multi technique des équipements et la gestion technique, les consommations d'électricité des parties communes, l'eau, l'entretien des espaces verts, les contrôles réglementaires, la gestion des déchets, le nettoyage et donc la prestation d'accueil et les coûts fixes des frigos connectés Foodles - Loyer archives : 200,00 euros HT/m²/an - Redevance nette (quote-part de stationnement vélos et véhicules électriques) : 2 000 euros HT HC/étage/an - Assurance immeuble : 2,5 euros HT/m²/an
Prestations :
Accessibilité:
Métro Stalingrad (Ligne 2, Ligne 5, Ligne 7), Jaurès (Ligne 7BIS)
RER Gare du Nord (Ligne B, Ligne D), Magenta (Ligne E)
Bus Jaurès (Ligne N41, Ligne Noctilien N13, Ligne N45), Jaurès - Stalingrad (Ligne 26), Quai de la Seine - Stalingrad (Ligne 54, Ligne N46), Place du Maroc (Ligne 45), Stalingrad (Ligne 48)
SNCF Magenta (France)
Les informations sur les risques auxquels ce bien est exposé sont disponibles sur le site Géorisques : www.georisques.gouv.fr
Les locaux sont livrés entièrement rénovés.
Parties communes rénovées récemment. Nombreux parkings (vélo/voiture/2 roues) en sous sol.
Vues exceptionnelles sur Tout Paris au 7e étage.
| Étage | Type | Surfaces | Dispo | Loyer | Charges | Type de bailRév. annuelle |
|---|---|---|---|---|---|---|
| 7 | Bureaux | 606 | Immédiate | 500 HT/HC/m²/an | 82 m²/an HT | 6-9 ansILAT |
| 2 | Bureaux | 606 | Immédiate | 450 HT/HC/m²/an | 82 m²/an HT | 6-9 ansILAT |
| 1 | Bureaux | 606 | Immédiate | 450 HT/HC/m²/an | 82 m²/an HT | 6-9 ansILAT |
| Parkings | Immédiate | 1500 HT/HC/U/an | 6-9 ansILAT |
Impôt Foncier : 13,21 €//m²/an
Régime Fiscal : T.V.A.
Dépôt de garantie : 3 mois de loyer HT/HC
Honoraires : A la charge du preneur.
Taxe Bureau : 21,7 €/m²/an
Information sur le Bail :
- Les charges incluent la maintenance multi technique des équipements et la gestion technique, les consommations d'électricité des parties communes, l'eau, l'entretien des espaces verts, les contrôles réglementaires, la gestion des déchets, le nettoyage et donc la prestation d'accueil et les coûts fixes des frigos connectés Foodles - Loyer archives : 200,00 euros HT/m²/an - Redevance nette (quote-part de stationnement vélos et véhicules électriques) : 2 000 euros HT HC/étage/an - Assurance immeuble : 2,5 euros HT/m²/an
Prestations :
- ERP : Catégorie non définie
- Certification BREEAM Very Good
- PC sécurité avec retour vidéo et accès sécurisé par badge
- Groupe froid / chauffage électrique
- Fibre optique
- Monte-charge
- Locaux livrés rénovés
- Bureaux lumineux et traversants vitrés toute hauteur
- Plateaux offrants une grande flexibilité d'aménagement (peu de contraintes porteuses)
- Possibilité d'aménagement en bureaux cloisonnés ou en open space
- Capacitaire des plateaux: 1/10
- Espaces extérieurs privatifs pour chaque plateau (15 m² environ de terrasse)
- Climatisation réversible
- Faux plancher technique
- Douches et vestiaires
- Vues imprenables au 7ème étage (Sacré Coeur, Tour Eiffel)
- Local vélos
- Frigos connectés FOODLES en RDJ
Accessibilité:
Métro Stalingrad (Ligne 2, Ligne 5, Ligne 7), Jaurès (Ligne 7BIS)
RER Gare du Nord (Ligne B, Ligne D), Magenta (Ligne E)
Bus Jaurès (Ligne N41, Ligne Noctilien N13, Ligne N45), Jaurès - Stalingrad (Ligne 26), Quai de la Seine - Stalingrad (Ligne 54, Ligne N46), Place du Maroc (Ligne 45), Stalingrad (Ligne 48)
SNCF Magenta (France)
Les informations sur les risques auxquels ce bien est exposé sont disponibles sur le site Géorisques : www.georisques.gouv.fr
Emplacement(s) de Parking: 18 places
Voir plus
Afficher les consommations énergétiques
Localisation et transport aux alentours
- Stalingrad55m (1min à pied)257
- Jaurès326m (5min à pied)257b
Favoris
Exporter
Appeler
Contacter
Signaler cette annonce










