Besoin d'un conseil en immobilier ? Nous sommes une équipe dédiée à 100% à nos clients utilisateurs avec des services variés (stratégie immobilière, recherche immobilière, renégociation de bail, dé ...
En savoir plus

4 592 m²
HT HC
VARIATION - Location bureau - 4592 m²
Paris 17 (75017)
Dernière mise à jour : Il y a 3 jours
Au coeur du quartier Clichy-Batignolles (Paris 17ème), Savills vous propose un bâtiment de bureaux indépendant de 4592 m² en cours de restructuration.
Immeuble VARIATION
16 07 2025 - Extrait CFNewsImmo :
105 Raspail, 121 Charonne : les garanties des créanciers activées
Parmi ces trois projets en cours de développement que porte GDG, seul celui du 2 Fragonard (4 560 m2, 17e) n'a, selon nos informations, pas encore vu sa garantie activée. Acquis en 2022 pour 41 M euros, à livrer en 2027, il est lui aussi sous tension. GDG travaille également à trouver de nouvelles ressources, notamment en opérant pour compte de tiers.
https://www.cfnewsimmo.net/L-actualite/Retournement/105-Raspail-121-Charonne-les-garanties-des-creanciers-activees-485889
Au coeur du quartier Clichy-Batignolles (Paris 17), dans un environnement vivant et dynamique, Savills vous propose un bâtiment de bureaux indépendant restructuré de 4 592 m² intégrant une forte dimension environnementale. Situé au pied des transports en commun (ligne 13 et 14,RER C) et à 5 minutes du parc des Batignolles, l'immeuble bénéficie d'une excellente visibilité. Ses deux configurations possibles (code du travail de 500 personnes et ERP 2 de 1 000 personnes ) permet de répondre aussi bien à des recherches de bureaux que d'enseignement et formation. L'ensemble des espaces sont en premier jour et il répond parfaitement aux attentes des utilisateurs en terme de confort (climatisation, faux plancher technique, hauteur libre de 2,70 mètres) d'efficience et d'image (Labels et Certifications HQE Excellent, WIRED SCORE Gold). Il dispose également de nombreux espaces extérieurs(terrasses, balcons et rooftop) accessibles, d'une cafétéria, de douches, vestiaires ainsi que des parkings voitures et vélos.
Disponibilité : décembre 2026
Régime Fiscal : T.V.A.
Dépôt de garantie : 3 mois de loyer HT HC
Honoraires : A la charge du preneur.
Taxe Bureau : 24,69 €/m²/an
Prestations :
Accessibilité:
Métro Porte de Clichy (METRO-13, METRO-14)
Bus Boulay (BUS-74, BUS, BUS-54, BUS-163), Porte de Clichy (BUS-173, BUS-28)
RER PORTE-DE-CLICHY (RER C)
Tramway Porte de Clichy - Tribunal de Paris (TRAMWAY)
Train Porte de Clichy (TRAIN), Pont Cardinet (TRAIN)
Train Porte-de-Clichy (France)
Les informations sur les risques auxquels ce bien est exposé sont disponibles sur le site Géorisques : www.georisques.gouv.fr
Immeuble VARIATION
16 07 2025 - Extrait CFNewsImmo :
105 Raspail, 121 Charonne : les garanties des créanciers activées
Parmi ces trois projets en cours de développement que porte GDG, seul celui du 2 Fragonard (4 560 m2, 17e) n'a, selon nos informations, pas encore vu sa garantie activée. Acquis en 2022 pour 41 M euros, à livrer en 2027, il est lui aussi sous tension. GDG travaille également à trouver de nouvelles ressources, notamment en opérant pour compte de tiers.
https://www.cfnewsimmo.net/L-actualite/Retournement/105-Raspail-121-Charonne-les-garanties-des-creanciers-activees-485889
Au coeur du quartier Clichy-Batignolles (Paris 17), dans un environnement vivant et dynamique, Savills vous propose un bâtiment de bureaux indépendant restructuré de 4 592 m² intégrant une forte dimension environnementale. Situé au pied des transports en commun (ligne 13 et 14,RER C) et à 5 minutes du parc des Batignolles, l'immeuble bénéficie d'une excellente visibilité. Ses deux configurations possibles (code du travail de 500 personnes et ERP 2 de 1 000 personnes ) permet de répondre aussi bien à des recherches de bureaux que d'enseignement et formation. L'ensemble des espaces sont en premier jour et il répond parfaitement aux attentes des utilisateurs en terme de confort (climatisation, faux plancher technique, hauteur libre de 2,70 mètres) d'efficience et d'image (Labels et Certifications HQE Excellent, WIRED SCORE Gold). Il dispose également de nombreux espaces extérieurs(terrasses, balcons et rooftop) accessibles, d'une cafétéria, de douches, vestiaires ainsi que des parkings voitures et vélos.
Disponibilité : décembre 2026
| Étage | Type | Surfaces | Dispo | Loyer | Charges | Type de bailRév. annuelle |
|---|---|---|---|---|---|---|
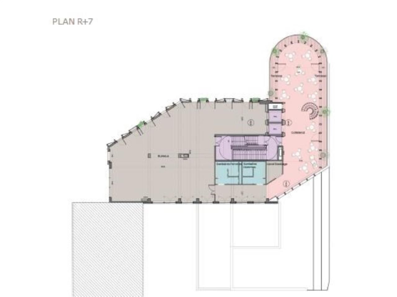
| 8 | Bureaux | 40 | 01/09/2027 | 680 HT/HC/m²/an | 9 ans fermesILAT Indice des Loyers des Activités Tertiaires | |
| 7 | Bureaux | 437 | 01/09/2027 | 680 HT/HC/m²/an | 9 ans fermesILAT Indice des Loyers des Activités Tertiaires | |
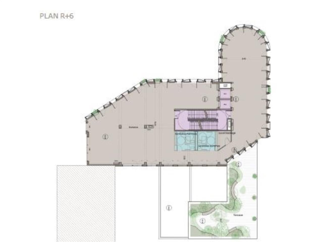
| 6 | Bureaux | 481 | 01/09/2027 | 680 HT/HC/m²/an | 9 ans fermesILAT Indice des Loyers des Activités Tertiaires | |
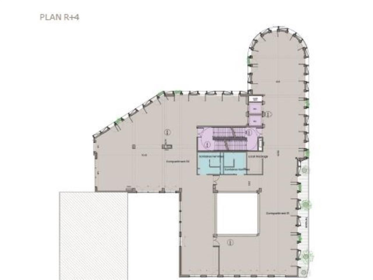
| 5 | Bureaux | 604 | 01/09/2027 | 680 HT/HC/m²/an | 9 ans fermesILAT Indice des Loyers des Activités Tertiaires | |
| 4 | Bureaux | 696 | 01/09/2027 | 680 HT/HC/m²/an | 9 ans fermesILAT Indice des Loyers des Activités Tertiaires | |
| 3 | Bureaux | 719 | 01/09/2027 | 680 HT/HC/m²/an | 9 ans fermesILAT Indice des Loyers des Activités Tertiaires | |
| 2 | Bureaux | 719 | 01/09/2027 | 680 HT/HC/m²/an | 9 ans fermesILAT Indice des Loyers des Activités Tertiaires | |
| 1 | Bureaux | 716 | 01/09/2027 | 680 HT/HC/m²/an | 9 ans fermesILAT Indice des Loyers des Activités Tertiaires | |
| RDC | Bureaux | 139 | 01/09/2027 | 680 HT/HC/m²/an | 9 ans fermesILAT Indice des Loyers des Activités Tertiaires | |
| 1SS | Bureaux | 41 | 01/09/2027 | 680 HT/HC/m²/an | 9 ans fermesILAT Indice des Loyers des Activités Tertiaires | |
| Parkings | 01/09/2027 | 2500 HT/HC/place/an | ILAT Indice des Loyers des Activités Tertiaires |
Régime Fiscal : T.V.A.
Dépôt de garantie : 3 mois de loyer HT HC
Honoraires : A la charge du preneur.
Taxe Bureau : 24,69 €/m²/an
Prestations :
- ERP : Catégorie non définie
- Au pied des transports en commun (lignes 13 et 14 du métro et RER C) et à 5 minutes à pied du Parc des Batignolles, l'immeuble qui bénéficie d'une excellente visibilité sera entièrement restructuré.
- Deux configurations possibles pour cet immeuble clés en main : une destination bureaux avec un capacitaire de 498 personnes ou EICSP (ex CINASPIC) ERP avec un capacitaire de 800 personnes
- Labels et certifications : HQE Excellent, WIRED SCORE Gold
- Principales prestations techniques : climatisation, faux plancher technique, hauteur libre de 2,70 m
- L'immeuble bénéficie de balcons à tous les niveaux (33 m²), ainsi que de terrasses végétalisées accessibles (R+1 : 74 m², R+4 : 25 m², R+5 : 95 m², R+6 : 131 m² et R+7 : 53 m²) et d'un roof-top de 401 m².
- Local vélo de 31 m² au rez-de-chaussée.
- Une restructuration de qualité intégrant une forte dimension environnementale
- L'immeuble bénéficie par ailleurs d'une surface d'activité d'environ 950 m² en sous-sol au 12 rue Fragonard (loyer de 150 euros/an HT HC)
- Parkings : 30 situés à l'angle de la rue Fragonard et de la rue Joncquière
- Local à vélo : 31 m² (loyer 250 euros/m²/an HT HC)
- Surface RDC : 139 m²
Accessibilité:
Métro Porte de Clichy (METRO-13, METRO-14)
Bus Boulay (BUS-74, BUS, BUS-54, BUS-163), Porte de Clichy (BUS-173, BUS-28)
RER PORTE-DE-CLICHY (RER C)
Tramway Porte de Clichy - Tribunal de Paris (TRAMWAY)
Train Porte de Clichy (TRAIN), Pont Cardinet (TRAIN)
Train Porte-de-Clichy (France)
Les informations sur les risques auxquels ce bien est exposé sont disponibles sur le site Géorisques : www.georisques.gouv.fr
Emplacement(s) de Parking: 40 places
Voir plus
Afficher les consommations énergétiques
Localisation et transport aux alentours
- Porte de Clichy91m (1min à pied)13C14N14
Favoris
Exporter
Appeler
Contacter
Signaler cette annonce










