BNP Paribas Real Estate, N°1 de la transaction en immobilier d''entreprise en France, vous propose un accompagnement de qualité pour l''acquisition, la vente ou la location d''un bien immobilier.Vo ...
En savoir plus

1 038 m² divisible dès 170 m²
HT HC
Location bureau - 1038 m²
Paris 16 (75016)
Dernière mise à jour : Il y a 22 jours
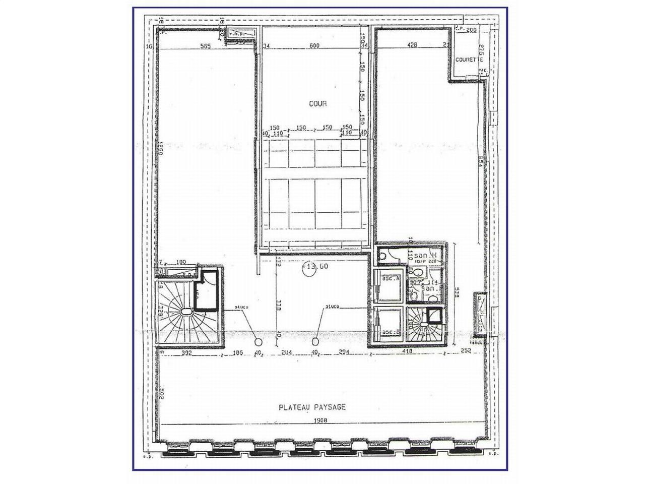
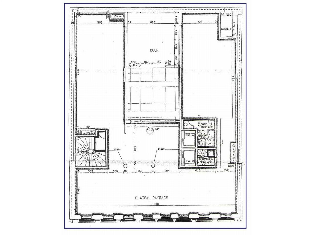
BNP Paribas RE vous propose deux surfaces de bureaux à louer au RDC et 1er étage du 16 avenue Kleber 75016 PARIS. L'immeuble bénéficie des services d'une hôtesse d'accueil. Les locaux sont rénovés et climatisés.
Disponibilité: Immédiate
Honoraires: Nous consulter. à la signature du bail
Honoraires: Nous consulter. à la signature du bail
| Fiche technique du bien | |
|---|---|
| Métro | kléber au pied de l'immeuble |
| RER | Etoile |
| Etat de l'immeuble | Neuf |
| Climatisation | Oui |
| Accueil | Hôtesses |
| Ascenseur(s) | Oui |
| Orientation façade | RUE & COUR |
Afficher les consommations énergétiques
Surfaces divisibles : 3
| Surface | LoyerHT/HC/m²/an | Étage / Batiment | Infos complémentaires |
| 513 m² | N.C | RDC | RDC |
| 355 m² | N.C | R+1 | 1er étage |
| 170 m² | N.C | R-1 | RDC |
Localisation et transport aux alentours
Favoris
Exporter
Appeler
Contacter
Signaler cette annonce










