L’équipe Bureaux Rive Gauche Sud Ouest vous accompagne dans tous vos projets immobiliers. Comme une centaine de clients l’an dernier, laissez-vous guider par nos 23 consultants spécialistes du sect ...
En savoir plus

Location bureau - 4486 m²
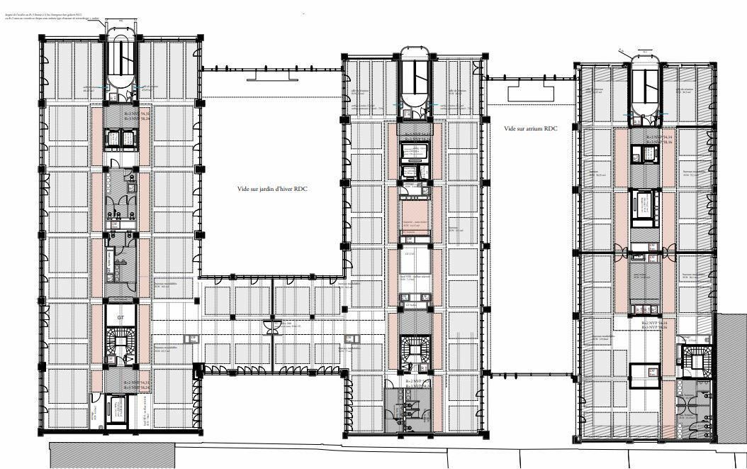
Un bel espace de services au RDJ est dédié aux Utilisateurs de l'immeuble avec des salles de réunions, un auditorium, un espace accueil, un atrium et un jardin d'hiver donnant accès aux deux autres btiments. Un parking attenant sur 3 niveaux de sous-sol sera dédié aux utilisateurs.
Dans cet ensemble immobilier, il y a une zone classée "ERP 3" comprenant, entre autres, un auditorium de 199 places et une salle de réunion annexe de 80 places.
Les plateaux de bureaux seront flexibles, lumineux et efficaces. La restructuration du site est géré par l'architecte RUDY RICCIOTTI.
Eléments généraux de programmation ;
L'immeuble est classé Code du Travail excepté l'auditorium, les salles de réunion et l'espace accueil.
Les plateaux de bureaux sont concus de manière très efficaces afin de permettre à l'Utilisateur d'organiser ses aménagements en paysage ou avec un cloisonnement dans le cadre de la réglementation.
Les niveaux sont pourvus d'un faux-plancher technique, présentant une hauteur libre comprise entre 36 et 53 cm sous dalle permettant, outre le réseau, d'amener l'air neuf, la distribution électrique et informatique en faux-plancher.
Tous les plateaux sont accessibles aux personnes handicapées.
Surfaces et effectifs ;
La distribution intérieure des bureaux est prévue selon les règles du compartimentage et la réglementation en vigueur ; pour les plateaux de bureau, le principe de désenfumage naturel par balayage de facade à facade a été retenu. Les espaces communs sont équipés d'un système de désenfumage mécanique.
Certifications environnementales ;
Les btiments sont concus, réalisés et gérés selon une démarche de haute qualité environnementale (HQE). L'objectif de certification et de labellisation est la certification HQE Btiment Durable 2016, niveau " Excellent ", et classe C pour la partie acoustique (référentiel V3 de janvier 2019). En outre, les critères de certification BREEAM et WIREDSCORE sont pris en compte dans la conception et l'exécution des travaux.
Disponibilité: Immédiate
Honoraires: Nous consulter. à la signature du bail
| Fiche technique du bien | |
|---|---|
| Métro | M12 Station VAUGIRARD |
Surfaces divisibles : 6
| Surface | LoyerHT/HC/m²/an | Étage / Batiment | Infos complémentaires |
| 717 m² | N.C | 0 | OLBUR2117828/1 |
| 816 m² | N.C | 1 | OLBUR2117828/1 |
| 816 m² | N.C | 2 | OLBUR2117828/1 |
| 818 m² | N.C | 3 | OLBUR2117828/1 |
| 760 m² | N.C | 4 | OLBUR2117828/1 |
| 560 m² | N.C | 5 | OLBUR2117828/1 |










