Conseil en immobilier d'entreprise, Cushman & Wakefield est un acteur incontournable au rayonnement international. Cushman & Wakefield offre des solutions dans toutes les étapes que comporte un p ...
En savoir plus

1 597 m² divisible dès 120 m²
HT HC
Location bureau - 1597 m²
Paris 15 (75015)
Dernière mise à jour : Il y a 2 jours
Situé au 28-28 bis rue du Docteur Finlay, dans le dynamique quartier de Dupleix, à proximité immédiate de la Tour Eiffel et du Champ de Mars, ce programme de bureaux à louer offre un environnement de travail exceptionnel, parfaitement connecté et adapté aux attentes des entreprises d'aujourd'hui.
Avec une surface totale de 1 065 m², répartie sur plusieurs niveaux et divisible à partir de 212 m², cette offre s'adresse aussi bien à des grandes entreprises qu'à des structures plus modestes recherchant des bureaux modernes, fonctionnels et immédiatement disponibles dans un secteur stratégique de la capitale.
Un immeuble aux prestations haut de gamme dans un quartier prestigieux
Implanté dans un immeuble moderne de bon standing, ce site bénéficie d'une architecture élégante et fonctionnelle, pensée pour optimiser la lumière naturelle et le confort des occupants. L'immeuble est équipé de prestations de qualité : accès sécurisé, contrôle d'accès extérieur, interphone, accès pour les personnes à mobilité réduite (PMR), et présence d'une hôtesse d'accueil.
La présence de trois ascenseurs, d'un escalier de secours, ainsi que la fibre optique et des parkings à proximité (Yespark Dupleix), complètent les atouts de ce lieu conçu pour conjuguer performance, sécurité et accessibilité.
Des bureaux rénovés, lumineux et rationnels
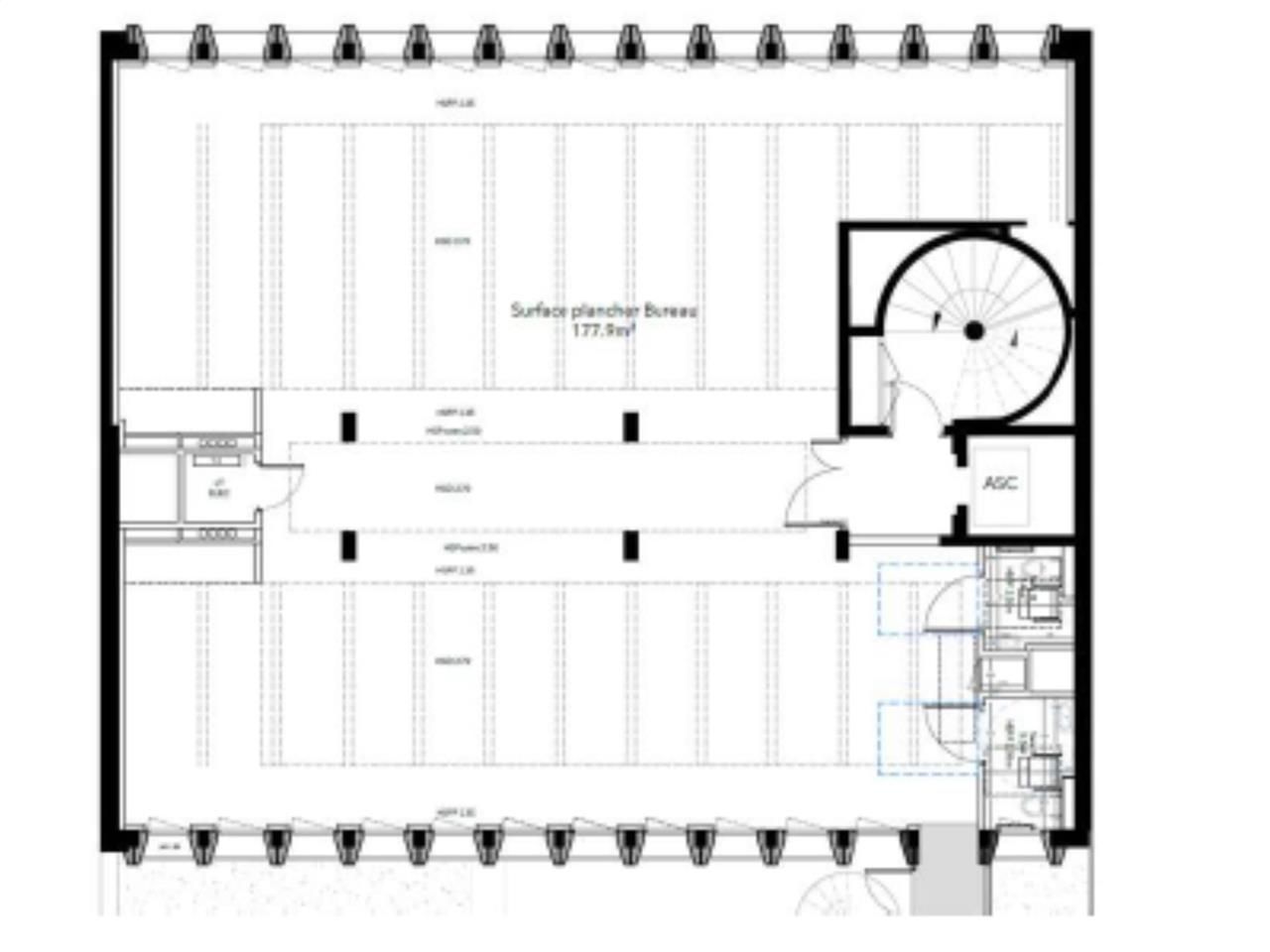
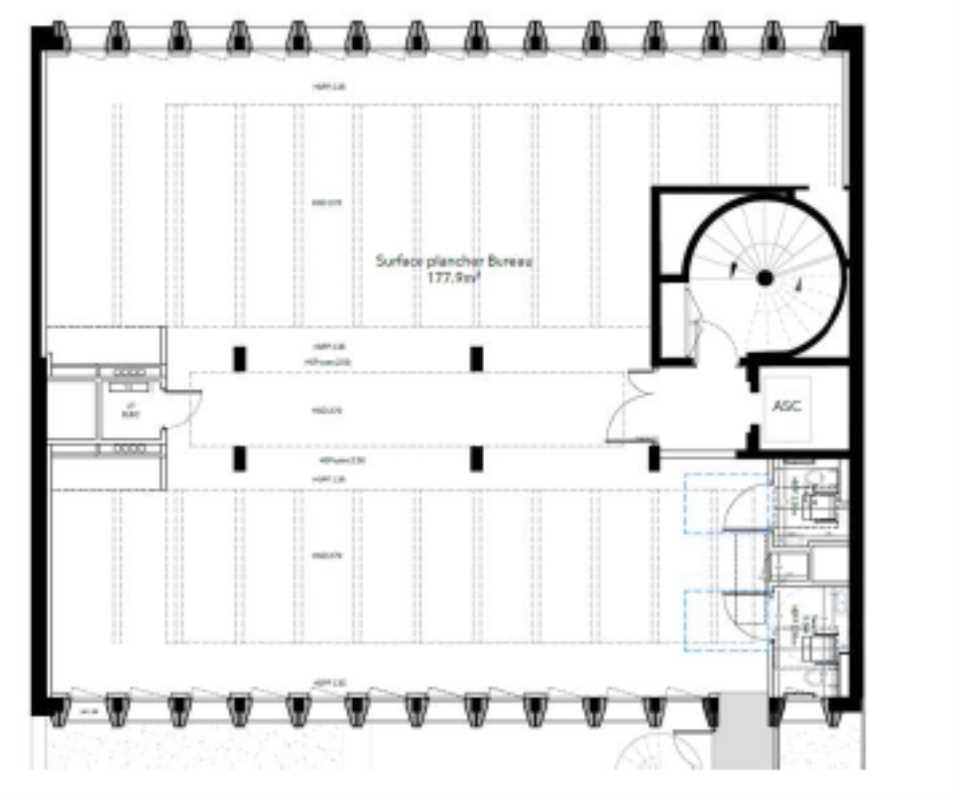
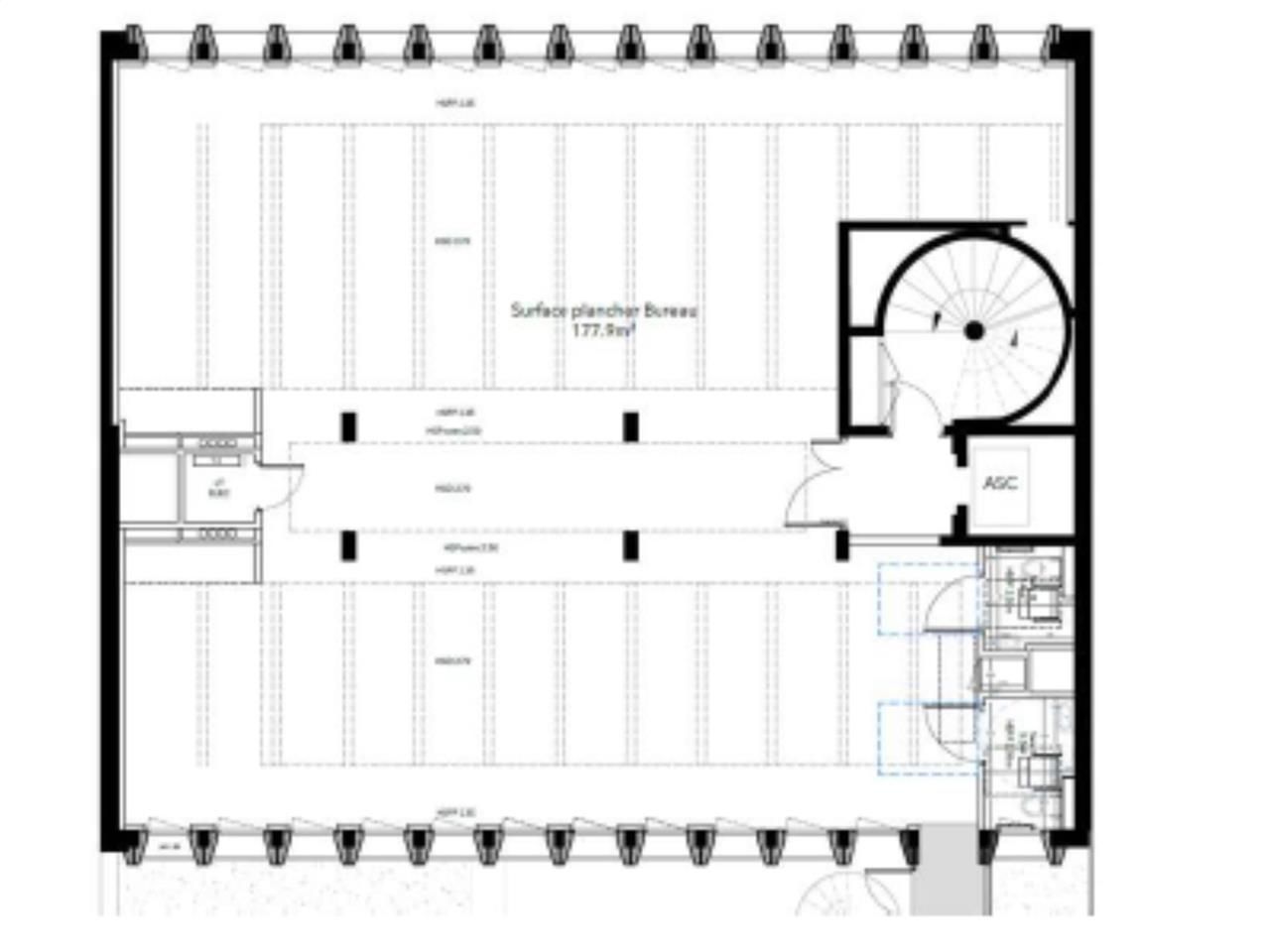
Les plateaux proposés ont été entièrement rénovés pour répondre aux standards contemporains. Traversants, ils sont particulièrement lumineux et rationnels, permettant un aménagement flexible selon les besoins : espaces ouverts, bureaux cloisonnés, ou espaces collaboratifs.
Le revêtement de sol est laissé au choix du futur locataire, pour une personnalisation optimale. De plus, les bureaux sont climatisés, câblés en catégorie 6, et disposent de salles de réunion mutualisées au rez-de-chaussée, idéales pour favoriser la collaboration tout en maîtrisant l'espace.
Une accessibilité remarquable, au coeur de Paris
Situé à quelques pas de la station Dupleix (ligne 6), du RER C (Avenue du Président Kennedy) et desservi par la ligne de bus 42, l'emplacement bénéficie d'une accessibilité exceptionnelle, facilitant les déplacements des collaborateurs comme des visiteurs.
Le quartier, vivant et attractif, propose également une large offre de services, commerces, restaurants, hôtels et infrastructures facilitant le quotidien des entreprises.
Impôt Foncier : 20,02 €//m²/an
Régime Fiscal : T.V.A.
Dépôt de garantie : 3 mois de loyer TTC
Paiement Loyer : Trimestriel
Honoraires : à la charge du preneur
Taxe Bureau : 17,68 €/m²/an
Information sur le Bail :
Garantie à première demande : selon le dossier 6 à 12 mois Assurance Bailleur et honoraires de gestion à la charge du Preneur Frais d'acte Notarié à la charge du Preneur : 1 500 euros HT / 1 800 euros TTC : loyers annuels jusqu'à 150 000 euros 2 000 euros HT / 2 400 euros TTC : loyers annuels entre 150.001 et 300 000 euros 3 000 euros HT / 3 600 euros TTC : loyers annuels entre 300 001 et 500 000 euros 5 000 euros HT / 6 000 euros TTC : loyers annuels à partir de 500 001 euros
Prestations :
Accessibilité:
Métro Dupleix (ligne 6)
Bus Ligne 42
RER Avenue du Président Kennedy (RER C)
Les informations sur les risques auxquels ce bien est exposé sont disponibles sur le site Géorisques : www.georisques.gouv.fr
Avec une surface totale de 1 065 m², répartie sur plusieurs niveaux et divisible à partir de 212 m², cette offre s'adresse aussi bien à des grandes entreprises qu'à des structures plus modestes recherchant des bureaux modernes, fonctionnels et immédiatement disponibles dans un secteur stratégique de la capitale.
Un immeuble aux prestations haut de gamme dans un quartier prestigieux
Implanté dans un immeuble moderne de bon standing, ce site bénéficie d'une architecture élégante et fonctionnelle, pensée pour optimiser la lumière naturelle et le confort des occupants. L'immeuble est équipé de prestations de qualité : accès sécurisé, contrôle d'accès extérieur, interphone, accès pour les personnes à mobilité réduite (PMR), et présence d'une hôtesse d'accueil.
La présence de trois ascenseurs, d'un escalier de secours, ainsi que la fibre optique et des parkings à proximité (Yespark Dupleix), complètent les atouts de ce lieu conçu pour conjuguer performance, sécurité et accessibilité.
Des bureaux rénovés, lumineux et rationnels
Les plateaux proposés ont été entièrement rénovés pour répondre aux standards contemporains. Traversants, ils sont particulièrement lumineux et rationnels, permettant un aménagement flexible selon les besoins : espaces ouverts, bureaux cloisonnés, ou espaces collaboratifs.
Le revêtement de sol est laissé au choix du futur locataire, pour une personnalisation optimale. De plus, les bureaux sont climatisés, câblés en catégorie 6, et disposent de salles de réunion mutualisées au rez-de-chaussée, idéales pour favoriser la collaboration tout en maîtrisant l'espace.
Une accessibilité remarquable, au coeur de Paris
Situé à quelques pas de la station Dupleix (ligne 6), du RER C (Avenue du Président Kennedy) et desservi par la ligne de bus 42, l'emplacement bénéficie d'une accessibilité exceptionnelle, facilitant les déplacements des collaborateurs comme des visiteurs.
Le quartier, vivant et attractif, propose également une large offre de services, commerces, restaurants, hôtels et infrastructures facilitant le quotidien des entreprises.
| Étage | Type | Surfaces | Dispo | Loyer | Charges | Type de bailRév. annuelle |
|---|---|---|---|---|---|---|
| 3 | Bureaux | 212 | 530 HT/HC/m²/an | 80 HT/m²/an | 3-6-9 ansSur l'indice ILAT | |
| 2 | Bureaux | 240 | 530 HT/HC/m²/an | 80 HT/m²/an | 3-6-9 ansSur l'indice ILAT | |
| 1 | Bureaux | 350 | 530 HT/HC/m²/an | 80 HT/m²/an | 3-6-9 ansSur l'indice ILAT | |
| R+6 | Bureaux | 423 | 590 HT/HC/m²/an | 80 HT/m²/an | 3-6-9 ansSur l'indice ILAT | |
| RdC | Bureaux | 120 | 430 HT/HC/m²/an | 80 HT/m²/an | 3-6-9 ansSur l'indice ILAT | |
| 5 | Bureaux | 252 | 530 HT/HC/m²/an | 80 HT/m²/an | 3-6-9 ansSur l'indice ILAT | |
| Sous-Sol | Parkings | 2500 HT/HC/place/an | 3-6-9 ansSur l'indice ILAT |
Impôt Foncier : 20,02 €//m²/an
Régime Fiscal : T.V.A.
Dépôt de garantie : 3 mois de loyer TTC
Paiement Loyer : Trimestriel
Honoraires : à la charge du preneur
Taxe Bureau : 17,68 €/m²/an
Information sur le Bail :
Garantie à première demande : selon le dossier 6 à 12 mois Assurance Bailleur et honoraires de gestion à la charge du Preneur Frais d'acte Notarié à la charge du Preneur : 1 500 euros HT / 1 800 euros TTC : loyers annuels jusqu'à 150 000 euros 2 000 euros HT / 2 400 euros TTC : loyers annuels entre 150.001 et 300 000 euros 3 000 euros HT / 3 600 euros TTC : loyers annuels entre 300 001 et 500 000 euros 5 000 euros HT / 6 000 euros TTC : loyers annuels à partir de 500 001 euros
Prestations :
- Immeuble moderne de bon standing
- Accès Personnes Mobilités Réduites
- Contrôle d'accès extérieur
- Interphone
- Accès sécurisé
- Hôtesse d'accueil
- 3 ascenseurs
- Escalier de secours
- Fibre optique
- Parkings de proximité (Yespark Dupleix)
- Bureaux rénovés
- Plateaux traversants, lumineux et rationnels
- Revetment sols ,au choix du future locataire
- Salle de réunion mutualisée au RDC Climatisation
- Câblage informatique cat 6
- Surface RDC : 120 m²
Accessibilité:
Métro Dupleix (ligne 6)
Bus Ligne 42
RER Avenue du Président Kennedy (RER C)
Les informations sur les risques auxquels ce bien est exposé sont disponibles sur le site Géorisques : www.georisques.gouv.fr
Voir plus
Afficher les consommations énergétiques
Localisation et transport aux alentours
- Bir-Hakem308m (5min à pied)6
- Champ de Mars - Tour Eiffel430m (6min à pied)CC
- Dupleix447m (7min à pied)6
Favoris
Exporter
Appeler
Contacter
Signaler cette annonce










