L’équipe Bureaux Rive Gauche Sud Ouest vous accompagne dans tous vos projets immobiliers. Comme une centaine de clients l’an dernier, laissez-vous guider par nos 23 consultants spécialistes du sect ...
En savoir plus

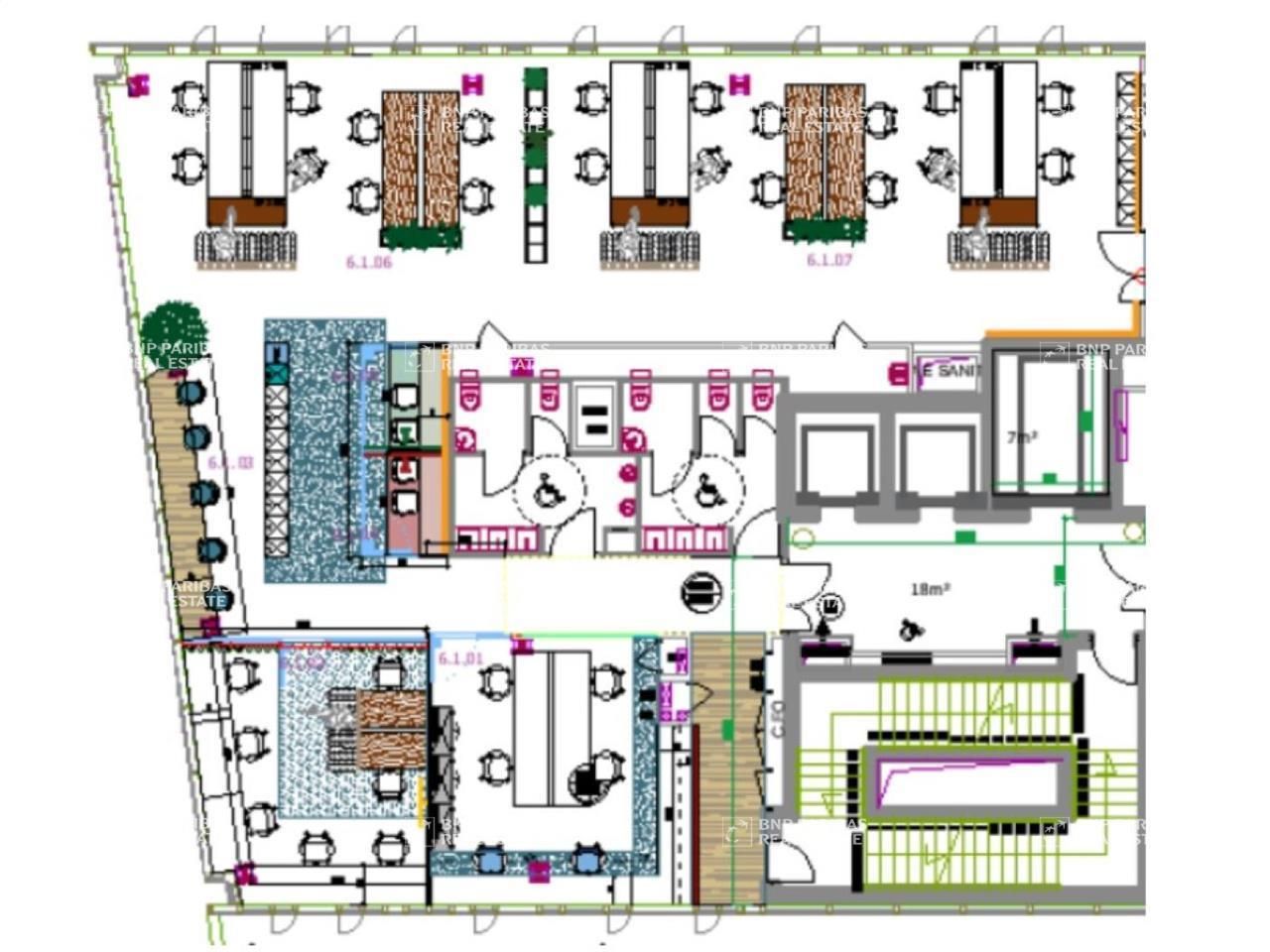
Location bureau - 307 m²
BNP PARIBAS REAL ESTATE vous propose à la sous-location (prochaine échéance le 31/08/2028) une magnifique surface Plug & Play de 307m² dans l'immeuble emblématique MEMPHIS, environ 31 postes : 1 grand open space, 2 grands bureaux, une salle de réunion pour 2 personnes, un espaces collaboratif, tisanerie. L'aménagement est modulable, mobilier inclus.
>> 6ème étage, très lumineux, climatisation réversible, un aménagement qualitatif, au sein d'un immeuble de bureaux bénéficiant de nombreux services :
hôte d'accueil,
Cafétaria
Espace de cool-working
Salles de réunions partagées, espaces de travail collaboratifs
Rooftop.
Memphis a été construit en 2004 par Jean-Paul Viguier Architecture. La rénovation est concue par Ory Architecture et designée par Saguez & Partners.
Au pied du métro ligne 14 et du RER C, station BNF, ligne 6 avec les stations Quai de la Gare ou Chevaleret à moins de 10 minutes.Au coeur d'un environnement très commercant, un quartier culturel, artistique et gourmand. La Station F, fabrique à Start-ups est à proximité.
Disponibilité aout 2026.
Disponibilité: 03/08/2026Honoraires: Nous consulter. à la signature du bail
| Fiche technique du bien | |
|---|---|
| Métro | M14 Bibliothèque François Mitterrand |
| RER | C Bibliothèque François Mitterrand |
| Bus | 62, 89, 132 |
| Accès Pers. Mobilité Réduite | Ascenseur |
| Label actuel | Breeam Excellent |
| Immeuble | Oui |
| Etat de l'immeuble | Rénové |
| Etat des locaux | Rénové |
| Immeuble indépendant | Oui |
| Climatisation | Réversible Double flux |
| Accueil | Espace d'attente |
| Restauration | Oui |
| Gestion technique centralisée | Oui |
| Sécurité | PC Sécurité |
| Ascenseur(s) | Oui |
| Aménagement des bureaux | Espaces Ouverts |
| Eclairage Bureaux | Luminaires encastrés |
| Sol bureaux | Moquette |










