Size Real Estate est une société de conseil en immobilier d’entreprise. Nous vous accompagnons dans tous vos projets immobiliers à Paris ou en première couronne. De la recherche de bureaux à la loc ...
En savoir plus

351 m²
HT HC
Location bureau - 351 m²
Paris 11 (75011)
Dernière mise à jour : Il y a 3 jours
Bureaux à louer de 351m2
SIZE REAL ESTATE vous propose des locaux atypiques et à l'esprit industriel situés dans le 11e arrondissement à quelques dizaines de mètres du Père Lachaise.
Bâtiment indépendant situé dans une impasse calme et bucolique, typique de l'est parisien.
Locaux bénéficiant de deux accès de plein pied sur l'impasse et d'un accès PMR.
Rafraichissement à venir / bureaux disponibles au printemps 2026.
Extérieur semi privatif (partagé avec un particulier absent en journée).
Locaux climatisés
Erpabilité 5ème catégorie possible
Idéal pour toute société dans le production, show room, architectes, start up, événementiel, organismes de formation...etc
Contactez Matthieu Robert ([email protected] / 01 85 53 45 10) pour organiser rapidement une visite.
Construction :
Date (dernière mise à jour) : 2026-01-14
Disponibilité : Nous consulter
Bail : Commercial 3 6 9
Honoraires / Location: 20 % HT du loyer annuel HT HC À la charge du preneur
Prestations :
- État des locaux : Bon état
- - Locaux indépendants situés dans une impasse calme et bucolique
- - 2 accès directs sur l'impasse
- - Bureaux atypiques à l'esprit industriel
- - Verrière
-
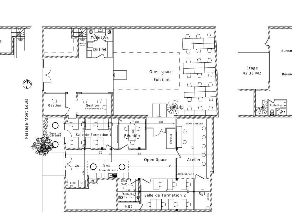
- - Organisation actuelle : 1 grand open space sous verrière / / 7 bureaux ou salles de réunion / 4 sanitaires (dont un PMR) / 3 kitchenette / 1 douche
-
- - Espace extérieur semi privatif
-
- Climatisation réversible
- Câblage informatique et fibre optique
-
- Locaux ERPAbles : 5e catégorie
- Accès PMR
Tableau de Surfaces :
SIZE REAL ESTATE vous propose des locaux atypiques et à l'esprit industriel situés dans le 11e arrondissement à quelques dizaines de mètres du Père Lachaise.
Bâtiment indépendant situé dans une impasse calme et bucolique, typique de l'est parisien.
Locaux bénéficiant de deux accès de plein pied sur l'impasse et d'un accès PMR.
Rafraichissement à venir / bureaux disponibles au printemps 2026.
Extérieur semi privatif (partagé avec un particulier absent en journée).
Locaux climatisés
Erpabilité 5ème catégorie possible
Idéal pour toute société dans le production, show room, architectes, start up, événementiel, organismes de formation...etc
Contactez Matthieu Robert ([email protected] / 01 85 53 45 10) pour organiser rapidement une visite.
Construction :
Date (dernière mise à jour) : 2026-01-14
Disponibilité : Nous consulter
Bail : Commercial 3 6 9
Honoraires / Location: 20 % HT du loyer annuel HT HC À la charge du preneur
Prestations :
- État des locaux : Bon état
- - Locaux indépendants situés dans une impasse calme et bucolique
- - 2 accès directs sur l'impasse
- - Bureaux atypiques à l'esprit industriel
- - Verrière
-
- - Organisation actuelle : 1 grand open space sous verrière / / 7 bureaux ou salles de réunion / 4 sanitaires (dont un PMR) / 3 kitchenette / 1 douche
-
- - Espace extérieur semi privatif
-
- Climatisation réversible
- Câblage informatique et fibre optique
-
- Locaux ERPAbles : 5e catégorie
- Accès PMR
Tableau de Surfaces :
| Etage | Type de bien | Surface | Dispo | |
| 1er | Bureaux | 42 m² | Nous consulter | |
| RDC | Bureaux | 309 m² | Nous consulter |
Voir plus
Afficher les consommations énergétiques
Localisation et transport aux alentours
Favoris
Exporter
Appeler
Contacter
Signaler cette annonce










