BNP Paribas Real Estate, N°1 de la transaction en immobilier d''entreprise en France, vous propose un accompagnement de qualité pour l''acquisition, la vente ou la location d''un bien immobilier.Vo ...
En savoir plus

Location bureau - 275 m²
Services et Prestations :
- Immeuble Haussmannien
- Parties communes : rénovation prévue
- Gardien
- Ascenseur
- Surfaces rénovées et lumineuses principalement en espaces ouverts
- Belle hauteur sous plafond
- Parkings vélos
Travaux RDC/R-1 :
Moquette neuve au rdc
Remise en peinture complète (blanc)
Révision sanitaires
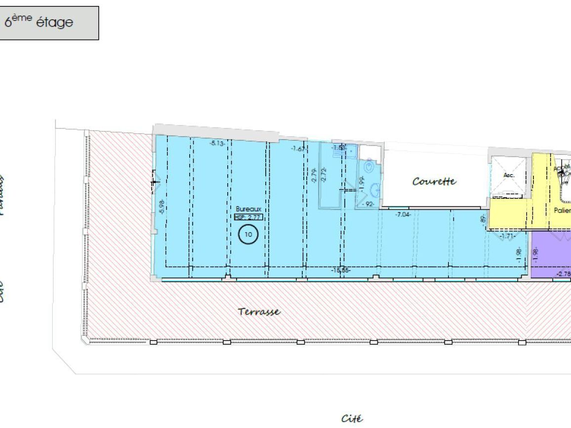
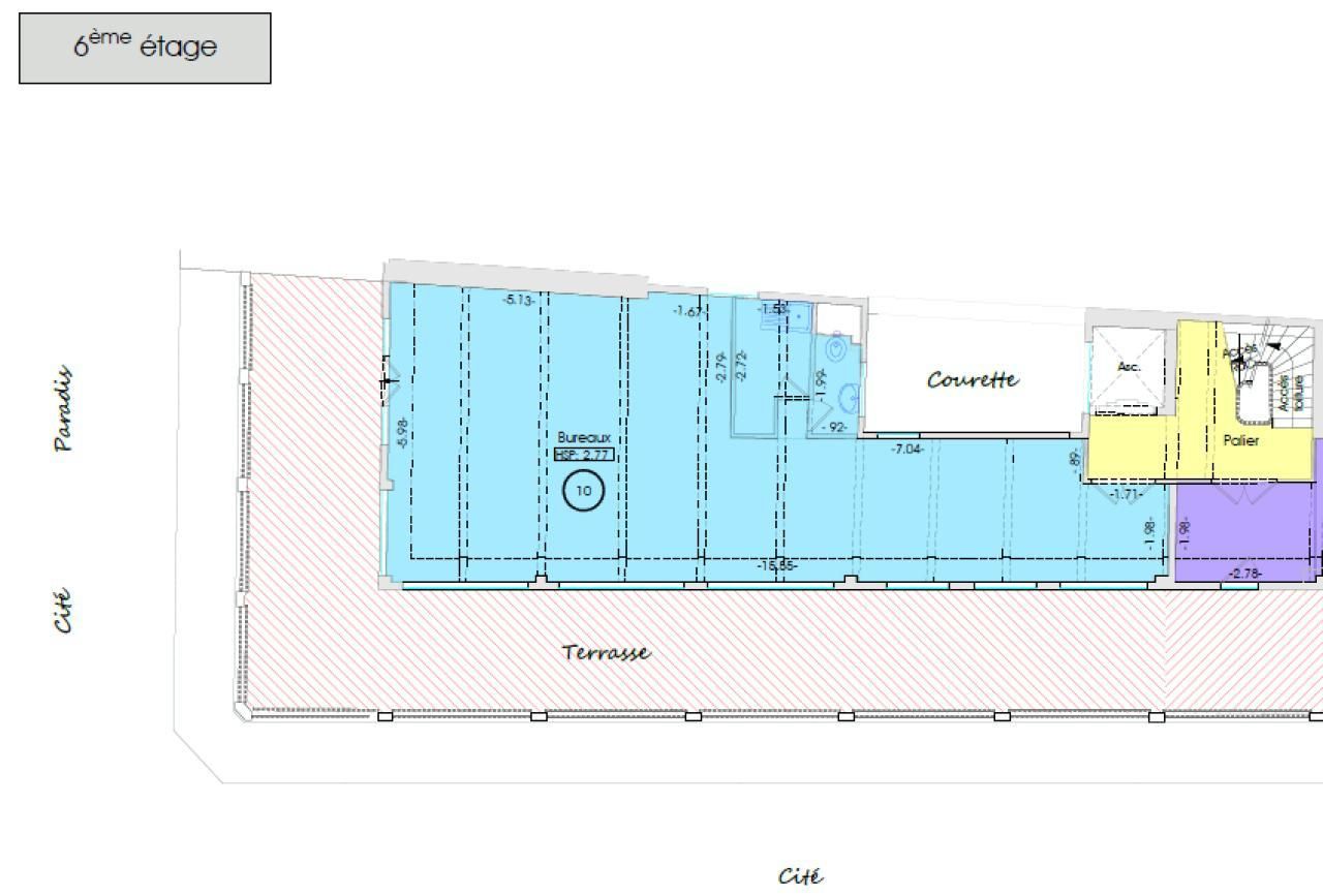
Travaux R+6 :
Rénovation si possible du parquet massif actuel
Remise en peinture blanche et noire
Changement des huisseries en double vitrage
Réfection globale des sanitaires
Desserte :
- "Poissonnière" : métro lignes 7 à 250 mètres
- "Bonne Nouvelle" métro lignes 8 et 9 à 650 mètres
- "Gare de l'Est" : ligne 4,5 et 7 à 800 m
Surfaces : 71,90 à 202,80 m²
Bail commercial : 3/6/9 ans
Loyer annuel : selon les lots
Provisions pour charges : 65€/m²/an HT HC
Impôt foncier : 15,19€/m²/an
Taxe bureaux : 24,36€/m²/an
Honoraires de gestion : 2,5% HT des loyers
Dépôt de garantie : 3 mois de loyer HT HC
Loyer payable par trimestre d'avance
Honoraires de commercialisation BNP Paribas Real Estate : 15% du loyer annuel HT HC à la charge du preneur
Quentin Thoré
07 85 63 05 18
01 72 37 29 55
Disponibilité: ImmédiateHonoraires: 15% HT du loyer HT/HC. à la signature du bail
| Fiche technique du bien | |
|---|---|
| Métro | M7 4, 8, 9 - POISSONNIERE, BONNE NOUVELLE |
| Bus | Lignes 26, 32, 42, 43, 48 |
| Gare | Gare de l'Est |
| Etat des locaux | Rénové |
| Etat des locaux | Etat d'usage |
| Type chauffage | Collectif |
| Climatisation | Oui |
| Ascenseur(s) | 1 |
| Fenêtres | toute hauteur |
| Câblage informatique | existant, goulottes périphériques RJ45 |
| Faux plancher | technique |
| Sol bureaux | Moquette ou PVC / en fonction des niveaux |
| Sanitaire(s) | 1 au 6ème, 2 au 2ème et 3 au rdc |
| Autre élément bureau | parkings extérieurs |
Surfaces divisibles : 2
| Surface | LoyerHT/HC/m²/an | Étage / Batiment | Infos complémentaires |
| 203 m² | N.C | 0 | OLBUR2313847/1 |
| 72 m² | N.C | 6 | OLBUR2313847/2 |
Localisation et transport aux alentours
- Poissonnière275m (4min à pied)7
- Bonne Nouvelle526m (8min à pied)89
- Cadet646m (10min à pied)7
- Château d'eau711m (11min à pied)4
- Grands Boulevards752m (11min à pied)89
- Strasbourg Saint-Denis779m (12min à pied)489
- Gare du Nord816m (12min à pied)45BD
- Paris-Nord819m (12min à pied)HK
- Gare de l'Est891m (13min à pied)457
- Sentier926m (14min à pied)3
- Barbès Rochechouart963m (14min à pied)24
- Réaumur Sébastopol1km (15min à pied)34
- Paris-Est1km (15min à pied)P
- Magenta1.1km (16min à pied)E
- Anvers1.1km (16min à pied)2
- Le Peletier1.2km (17min à pied)7
- Bourse1.2km (18min à pied)3
- Richelieu Drouot1.2km (18min à pied)89
- Jacques Bonsergent1.2km (19min à pied)5
- Arts et Métiers1.2km (19min à pied)311
- Etienne Marcel1.3km (19min à pied)4
- Château rouge1.4km (20min à pied)4
- Notre-Dame de-Lorette1.4km (21min à pied)12
- Château Landon1.4km (21min à pied)7
- Saint-Georges1.5km (22min à pied)12
- Les Halles1.5km (22min à pied)4
- Châtelet - Les Halles1.5km (22min à pied)ABD
- Temple1.5km (23min à pied)3










