BNP Paribas Real Estate, N°1 de la transaction en immobilier d''entreprise en France, vous propose un accompagnement de qualité pour l''acquisition, la vente ou la location d''un bien immobilier.Vo ...
En savoir plus

312 m²
HT HC
Location bureau - 312 m²
Paris 1 (75001)
Dernière mise à jour : Hier
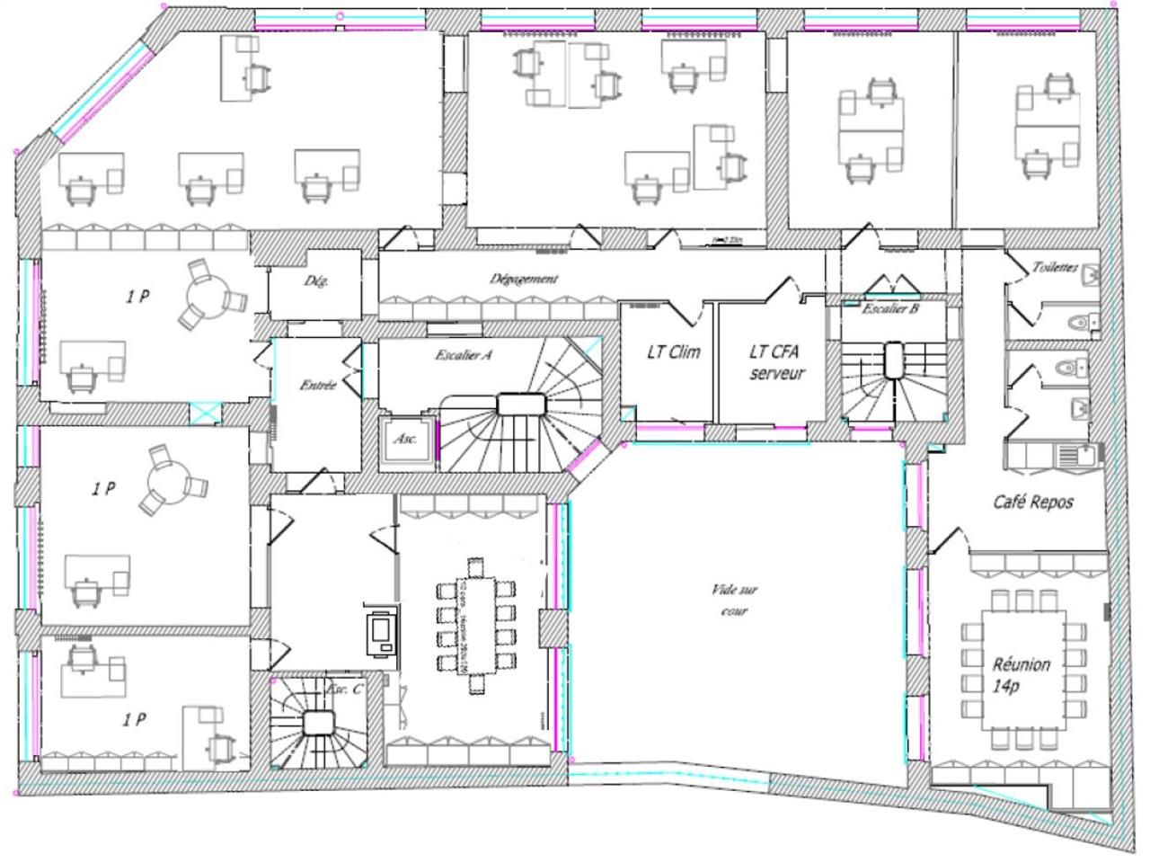
Bureaux à louer - Louvre x Bourse de Commerce
Au coeur d'un emplacement Premium, BNPP RE vous propose des bureaux parfaitement fonctionnels et exploitables.
Le plan optimisé offre une organisation efficace des espaces de travail, adaptée à une équipe exigeante recherchant rationalité et performance.
Localisation centrale, dynamique et très bien desservie, à proximité immédiate des commerces, transports et services.
Un atout supplémentaire : un loyer attractif pour le secteur, offrant un excellent rapport qualité / emplacement.
Immeuble d'angle de standing.
Accès sécurisé
Surface entièrement climatisée
Bureaux cloisonnés et espaces ouverts
Cuisine + espace déjeunatoire
Caves
Remise en état prévu par le locataire principal, sols, peintures et faux plafonds.
Disponibilité: Nous consulterHonoraires: 15% HT du loyer HT/HC. à la signature du bail
| Fiche technique du bien | |
|---|---|
| Métro | M4 Châtelet + M1 Louvre |
| RER | A Les Halles + B + D |
| Bus | 67.74.85 |
| Gare | Gare de Lyon accès direct par la ligne 1 |
| Etat de l'immeuble | Etat d'usage |
| Etat des locaux | Rénové |
| Parking(s) | Moins de 5mn à pied |
| Type chauffage | Individuel |
| Ascenseur(s) | 1 |
| Salle informatique | Oui |
| Câblage informatique | Oui |
| Aménagement des bureaux | Cloisonnés/Ouverts Open et bureaux doubles |
| Faux plafond | Dal. fibres minéral. |
| Sol bureaux | Moquette |
| Autre élément bureau | Cuisine |
| Autre élément bureau | Locaux livrés rafraichis |
| Orientation façade | SUR RUE |
Afficher les consommations énergétiques
Localisation et transport aux alentours
Favoris
Exporter
Appeler
Contacter
Signaler cette annonce










