Conseil en immobilier d'entreprise, Cushman & Wakefield est un acteur incontournable au rayonnement international. Cushman & Wakefield offre des solutions dans toutes les étapes que comporte un p ...
En savoir plus

94 m²
HT HC
Location bureau - 94 m²
Paris 9 (75009)
Dernière mise à jour : Il y a 3 jours
Bureaux à louer rue Vignon
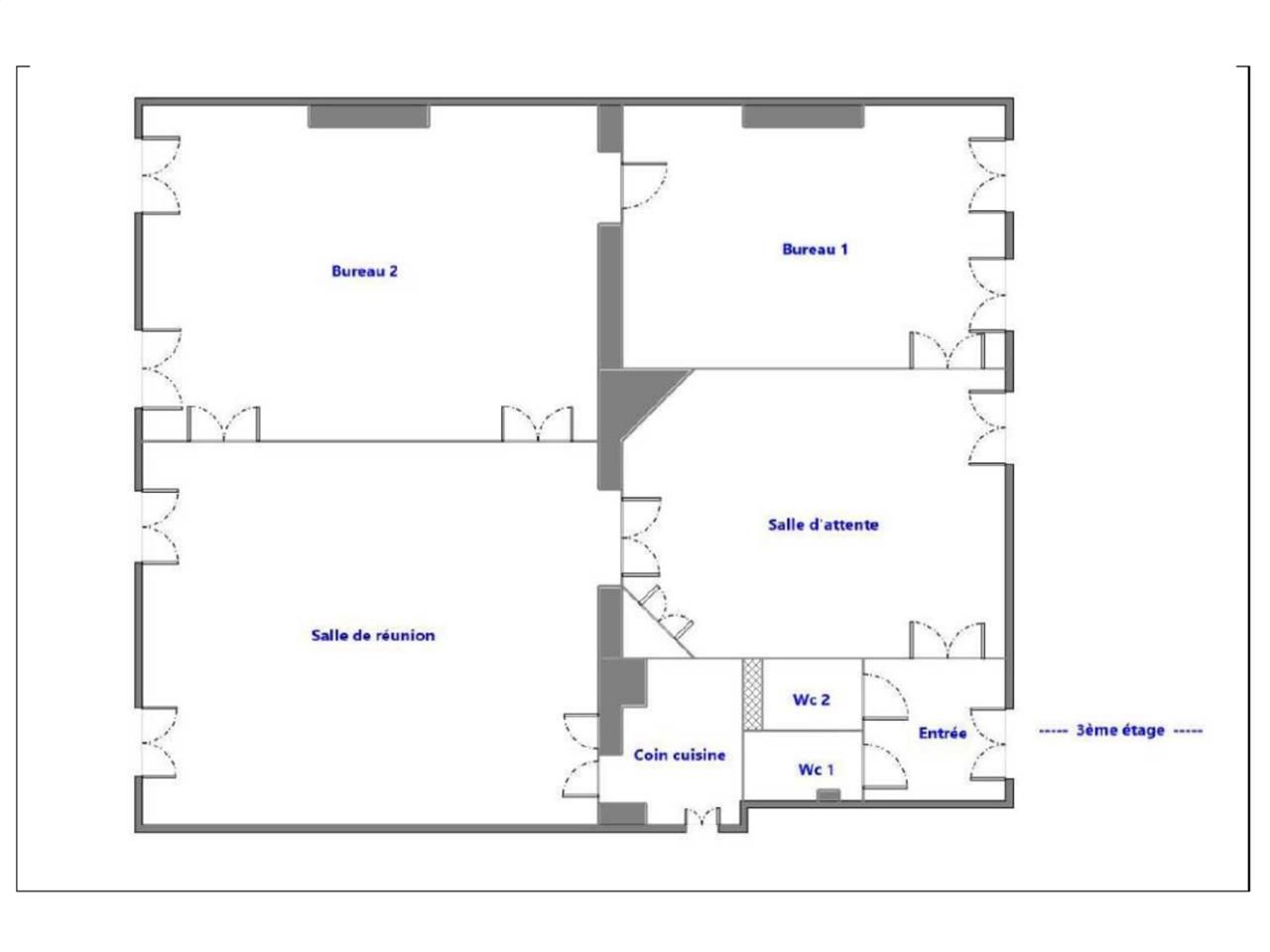
Cushman & Wakefield vous propose à la location une surface de bureaux de 94 m², située au 3ème étage avec ascenseur d'un immeuble de standing, en plein coeur de Paris, à deux pas de l'Opéra.
Bénéficiant d'un emplacement stratégique et d'une excellente accessibilité, ces bureaux offrent un environnement de travail prestigieux et lumineux grâce à de nombreuses fenêtres.
La surface se compose d'une entrée, de deux grands bureaux sur rue, de deux bureaux sur cour, d'une cuisine et de deux sanitaires, assurant un confort optimal pour vos équipes.
Une opportunité idéale pour toute entreprise à la recherche de bureaux flexibles, fonctionnels et parfaitement situés.
La surface est fibrée pour le confort de vos employés.
Contactez nous dès maintenant pour organiser une visite.
Disponibilité immédiate.
Impôt Foncier : 19 €//m²/an
Régime Fiscal : T.V.A.
Dépôt de garantie : 3 mois de loyer HT/HC
Paiement Loyer : Trimestriel
Honoraires : à la charge du preneur
Prestations :
Accessibilité:
Métro Havre- Caumartin (lignes 3-9)
Métro Madeleine (lignes 8-12-14)
RER Auber (RER A)
RER Haussmann Saint-Lazare (RER E)
Bus Lignes 20-21-27-29-32-42-43-45-52-66-68-80-84-94-95-Roissybus
Les informations sur les risques auxquels ce bien est exposé sont disponibles sur le site Géorisques : www.georisques.gouv.fr
Cushman & Wakefield vous propose à la location une surface de bureaux de 94 m², située au 3ème étage avec ascenseur d'un immeuble de standing, en plein coeur de Paris, à deux pas de l'Opéra.
Bénéficiant d'un emplacement stratégique et d'une excellente accessibilité, ces bureaux offrent un environnement de travail prestigieux et lumineux grâce à de nombreuses fenêtres.
La surface se compose d'une entrée, de deux grands bureaux sur rue, de deux bureaux sur cour, d'une cuisine et de deux sanitaires, assurant un confort optimal pour vos équipes.
Une opportunité idéale pour toute entreprise à la recherche de bureaux flexibles, fonctionnels et parfaitement situés.
La surface est fibrée pour le confort de vos employés.
Contactez nous dès maintenant pour organiser une visite.
Disponibilité immédiate.
| Étage | Type | Surfaces | Dispo | Loyer | Charges | Type de bailRév. annuelle |
|---|---|---|---|---|---|---|
| 3 | Bureaux | 94 | 690 HT/HC/m²/an | 41 HT/m²/an | 3-6-9 ansSur l'indice ICL |
Impôt Foncier : 19 €//m²/an
Régime Fiscal : T.V.A.
Dépôt de garantie : 3 mois de loyer HT/HC
Paiement Loyer : Trimestriel
Honoraires : à la charge du preneur
Prestations :
- Immeuble ancien de bon standing
- Façade en pierres de taille
- Parties communes de qualité
- Contrôle d'accès
- Digicode
- Interphone
- Ascenseur
- Cour intérieure pavée
- Fibre optique
- Accueil
- Bureaux cloisonnés
- Salle de réunion
- Parquet, moulures, cheminées
- Belle hauteur sous plafond
- Sanitaires
- Cuisine
- Surface RDC : 0 m²
Accessibilité:
Métro Havre- Caumartin (lignes 3-9)
Métro Madeleine (lignes 8-12-14)
RER Auber (RER A)
RER Haussmann Saint-Lazare (RER E)
Bus Lignes 20-21-27-29-32-42-43-45-52-66-68-80-84-94-95-Roissybus
Les informations sur les risques auxquels ce bien est exposé sont disponibles sur le site Géorisques : www.georisques.gouv.fr
Voir plus
Afficher les consommations énergétiques
Localisation et transport aux alentours
Favoris
Exporter
Appeler
Contacter
Signaler cette annonce










