Créée en mai 2012, Wellstone est une société de conseil en immobilier d'entreprise qui accompagne ses clients propriétaires, investisseurs et utilisateurs dans leurs différents projets immobiliers ...
En savoir plus

82 m²
HT HC
Location bureau - 82 m²
Paris 11 (75011)
Dernière mise à jour : Il y a 2 jours
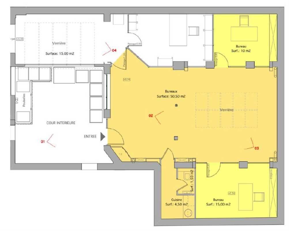
A proximité du métro Voltaire, Wellstone vous propose à la location des bureaux de 82m² en rez-de-chaussée sur cour. La surface s'organise en un espace ouvert, deux bureaux cloisonnés et dispose d'une kitchenette. Ces bureaux conviendront parfaitement aux entreprises du secteur de la communication, digital, marketing.
Impôt Foncier : 10,61 €/m²/an
Régime Fiscal : T.V.A.
Dépôt de garantie : 3 mois de loyer HT/HC
Honoraires : A la charge du preneur.
Taxe Bureau : 21,7 €/m²/an
Prestations :
Accessibilité:
Metro Charonne (9)
Metro Voltaire (9)
Les informations sur les risques auxquels ce bien est exposé sont disponibles sur le site Géorisques : www.georisques.gouv.fr
| Étage | Type | Surfaces | Dispo | Loyer | Charges | Type de bailRév. annuelle |
|---|---|---|---|---|---|---|
| RDC | Bureaux | 82 | Immédiate | 420 m²/an HT HC | 42 m²/an HT | 3-6-9 ansILAT |
Impôt Foncier : 10,61 €/m²/an
Régime Fiscal : T.V.A.
Dépôt de garantie : 3 mois de loyer HT/HC
Honoraires : A la charge du preneur.
Taxe Bureau : 21,7 €/m²/an
Prestations :
- Entrée indépendante sur cour
- Locaux en très bon état
- Surface organisée en :
- 1 espace ouvert
- 2 bureaux cloisonnés
- 1 kitchenette
- 1 sanitaire
- Câblage
- Surface RDC : 82 m²
Accessibilité:
Metro Charonne (9)
Metro Voltaire (9)
Les informations sur les risques auxquels ce bien est exposé sont disponibles sur le site Géorisques : www.georisques.gouv.fr
Voir plus
Afficher les consommations énergétiques
Localisation et transport aux alentours
Favoris
Exporter
Appeler
Contacter
Signaler cette annonce
