Conseil en immobilier d'entreprise, Cushman & Wakefield est un acteur incontournable au rayonnement international. Cushman & Wakefield offre des solutions dans toutes les étapes que comporte un p ...
En savoir plus

94 m²
HT HC
Location bureau - 94 m²
Paris 1 (75001)
Dernière mise à jour : Hier
Bureaux equipes, 4 av. Opera, 90m²
(Info surface Explore)
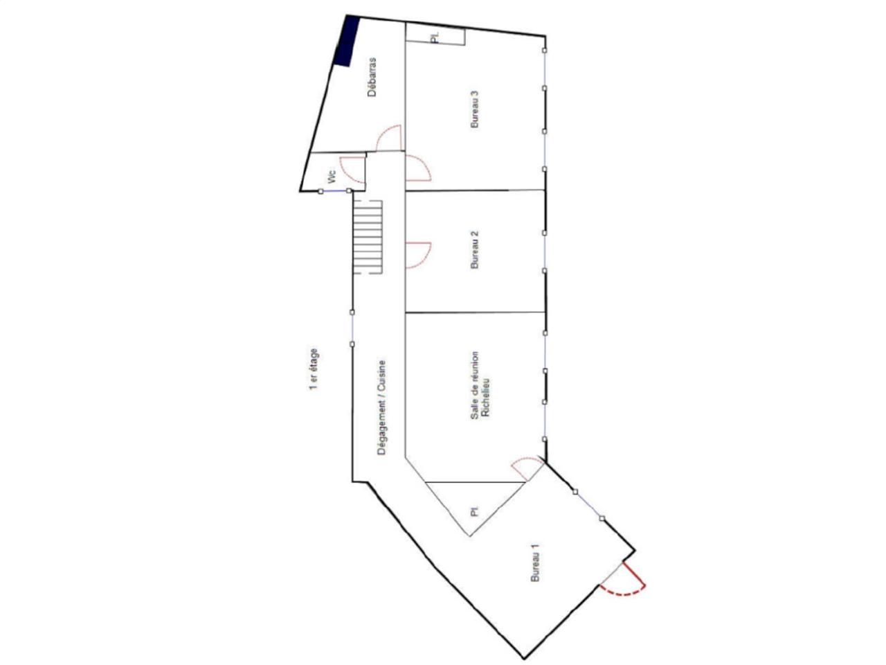
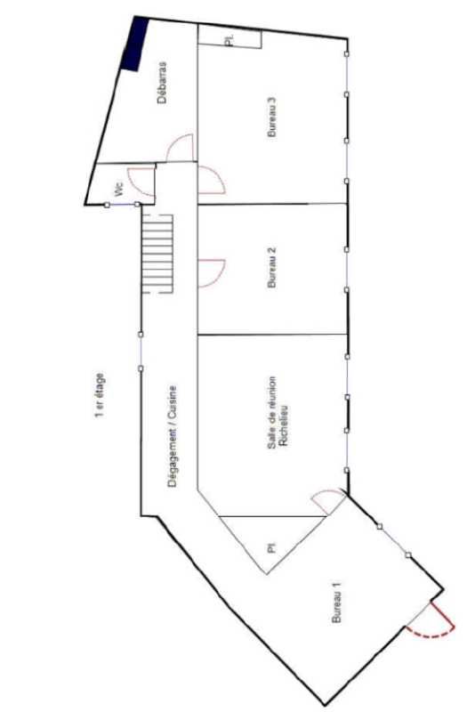
Au 2eme étage d'un immeuble haussmannien de très bon standing, à deux pas du Palais Royal et de l'Opéra, Cushman vous propose un espace de bureaux de 93 m².
L'adresse, prestigieuse - 4 avenue de l'Opéra, Paris 1er - offre un cadre de travail raffiné, au coeur d'un quartier vivant et parfaitement desservi.
Les lieux, élégamment aménagés, mêlent le cachet de l'ancien - moulures, belle hauteur sous plafond - à la fonctionnalité moderne : fibre optique, mobilier, cuisine équipée, câblage informatique. Le tout est prêt à accueillir une activité sans délai, dans un environnement calme et lumineux.
La sous-location est proposée à 666 euros HT/HC/m²/an, soit 5200 euros/mois Tout inclus avec un dépôt de garantie équivalent à trois mois de loyer. Le paiement s'effectue par trimestre, sous régime TVA.
Régime Fiscal : T.V.A.
Dépôt de garantie : 3 mois de loyer HT/HC
Paiement Loyer : Trimestriel
Honoraires : à la charge du preneur
Prestations :
Accessibilité:
Métro Pyramides (lignes 7-14)
Métro Palais Royal - Musée du Louvre (lignes 1-7)
Bus Lignes 21-27-39-68 -81-95
Les informations sur les risques auxquels ce bien est exposé sont disponibles sur le site Géorisques : www.georisques.gouv.fr
(Info surface Explore)
Au 2eme étage d'un immeuble haussmannien de très bon standing, à deux pas du Palais Royal et de l'Opéra, Cushman vous propose un espace de bureaux de 93 m².
L'adresse, prestigieuse - 4 avenue de l'Opéra, Paris 1er - offre un cadre de travail raffiné, au coeur d'un quartier vivant et parfaitement desservi.
Les lieux, élégamment aménagés, mêlent le cachet de l'ancien - moulures, belle hauteur sous plafond - à la fonctionnalité moderne : fibre optique, mobilier, cuisine équipée, câblage informatique. Le tout est prêt à accueillir une activité sans délai, dans un environnement calme et lumineux.
La sous-location est proposée à 666 euros HT/HC/m²/an, soit 5200 euros/mois Tout inclus avec un dépôt de garantie équivalent à trois mois de loyer. Le paiement s'effectue par trimestre, sous régime TVA.
| Étage | Type | Surfaces | Dispo | Loyer | Charges | Type de bailRév. annuelle |
|---|---|---|---|---|---|---|
| 2 | Bureaux | 93,73 | 666,38 HT/HC/m²/an | Sous location |
Régime Fiscal : T.V.A.
Dépôt de garantie : 3 mois de loyer HT/HC
Paiement Loyer : Trimestriel
Honoraires : à la charge du preneur
Prestations :
- Immeuble ancien de très bon standing
- Parties communes de standing
- Contrôle d'accès
- Digicode
- Gardienne
- Fibre optique
- Ménage
- Mobilier
- Cuisine
- Moulure
- Câblage
- Surface RDC : 0 m²
Accessibilité:
Métro Pyramides (lignes 7-14)
Métro Palais Royal - Musée du Louvre (lignes 1-7)
Bus Lignes 21-27-39-68 -81-95
Les informations sur les risques auxquels ce bien est exposé sont disponibles sur le site Géorisques : www.georisques.gouv.fr
Voir plus
Afficher les consommations énergétiques
Localisation et transport aux alentours
Favoris
Exporter
Appeler
Contacter
Signaler cette annonce










