Depuis 2003, KEOPS Toulouse accompagne les entreprises dans leurs projets immobiliers sur toute l’aire urbaine toulousaine.Notre équipe de professionnels passionnés met à votre service sa connaissa ...
En savoir plus

84 m²
Local commercial à vendre - 84 m²
Toulouse (31000)
Dernière mise à jour : Il y a 4 jours
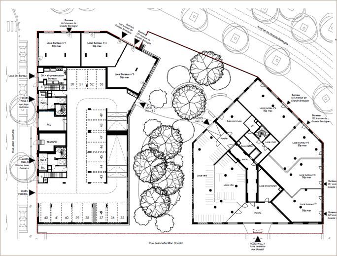
Locaux commerciaux / professionels au coeur de la Cartoucherie à Toulouse
Tramway ( face résidence ) : Ligne T1 / T2 Bus à 50 m : Ligne 45
Locaux commerciaux / professionels neufs, disponibles à la vente sur le secteur de la Cartoucherie à ToulouseIdéalement situés, directement sur l'avenue "grande bretagne", ils profitent d'une excellente visibilité Au rez-de-chaussé d'une résidence en cours de construction ( 114 logements ), les locaux sont au coeur d'une zone économique qui rassemble bureaux, commerces et services Les surfaces disposent d'une très belle hauteur sous-plafond, et de vitrines importantes directement sur rue Les locaux commerciaux sont livrés brutes, fluides en attentes ( 300 VA/m²)Classement ERP 3 ( Code du travail )
(2) prix de vente selon la fiscalité en Euros HD HC ou Euros HT HC
Tramway ( face résidence ) : Ligne T1 / T2 Bus à 50 m : Ligne 45
Locaux commerciaux / professionels neufs, disponibles à la vente sur le secteur de la Cartoucherie à ToulouseIdéalement situés, directement sur l'avenue "grande bretagne", ils profitent d'une excellente visibilité Au rez-de-chaussé d'une résidence en cours de construction ( 114 logements ), les locaux sont au coeur d'une zone économique qui rassemble bureaux, commerces et services Les surfaces disposent d'une très belle hauteur sous-plafond, et de vitrines importantes directement sur rue Les locaux commerciaux sont livrés brutes, fluides en attentes ( 300 VA/m²)Classement ERP 3 ( Code du travail )
| Bâtiment | Libellé | Etage | Surface | Surface Totale | Type de locaux | Prix de vente(2) | Disponibilité |
|---|---|---|---|---|---|---|---|
| BATIMENT A | Local 7 | RDC | 84,55 m² | 84,55 m² | Locaux commerciaux | 2 850,00 | Immédiate |
Locaux disponibles BATIMENT A
Voir plus
Afficher les consommations énergétiques
Localisation et transport aux alentours
- Cartoucherie192m (3min à pied)12
- Casselardit447m (7min à pied)12
Favoris
Exporter
Appeler
Contacter
Signaler cette annonce
