Depuis 2003, KEOPS Toulouse accompagne les entreprises dans leurs projets immobiliers sur toute l’aire urbaine toulousaine.Notre équipe de professionnels passionnés met à votre service sa connaissa ...
En savoir plus

193 m²
HT HC
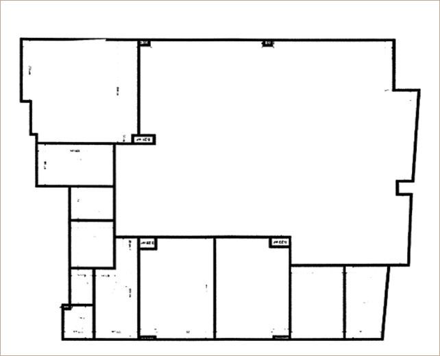
Location local commercial - 193 m²
Toulouse (31000)
Dernière mise à jour : Hier
Local commercial / professionnel à louer au cœur du quartier Saint Agne à Toulouse
Au cœur du quartier SAINT AGNE / ST MICHEL à Toulouse, local commercial / professionnel à louer d'une superficie de 193 m²Surface en excellent état, entièrement aménagée, elle dispose de 5 bureaux, un open space, sanitaires et un espace réserveExcellente visibilité depuis l'avenue large linéaire de vitrinesEmplacement stratégique, proche des transports en commun et de l'accès rocade au Sud de Toulouse
(1) loyer en Euros HT HC / m² / an
Au cœur du quartier SAINT AGNE / ST MICHEL à Toulouse, local commercial / professionnel à louer d'une superficie de 193 m²Surface en excellent état, entièrement aménagée, elle dispose de 5 bureaux, un open space, sanitaires et un espace réserveExcellente visibilité depuis l'avenue large linéaire de vitrinesEmplacement stratégique, proche des transports en commun et de l'accès rocade au Sud de Toulouse
| Libellé | Etage | Surface | Surface Totale | Type de locaux | Loyer(1) | Disponibilité |
|---|---|---|---|---|---|---|
| Local commercial | RDC | 193,00 m² | 193 m² | Commerce | 209,00 | Immédiate |
Local commercial disponible
Voir plus
Afficher les consommations énergétiques
Localisation et transport aux alentours
Favoris
Exporter
Appeler
Contacter
Signaler cette annonce
