Créée en mai 2012, Wellstone est une société de conseil en immobilier d'entreprise qui accompagne ses clients propriétaires, investisseurs et utilisateurs dans leurs différents projets immobiliers ...
En savoir plus

330 m² divisible dès 150 m²
HT HC
Location bureau - 330 m²
Paris 2 (75002)
Dernière mise à jour : Il y a 2 mois
Bureaux à sous-louer - Paris 2
Dans un immeuble ancien de grand standing, Wellstone vous propose de venir découvrir des surfaces de bureaux à sous-louer, à deux pas de la place de l'Opéra Garnier.
Régime Fiscal : T.V.A.
Dépôt de garantie : 3 mois de loyer HT/HC
Honoraires : A la charge du preneur.
Taxe Bureau : 25,77 €/m²/an
Prestations :
Accessibilité:
Metro 4 Septembre (3)
Metro Opéra (3, 7, 8)
Les informations sur les risques auxquels ce bien est exposé sont disponibles sur le site Géorisques : www.georisques.gouv.fr
Dans un immeuble ancien de grand standing, Wellstone vous propose de venir découvrir des surfaces de bureaux à sous-louer, à deux pas de la place de l'Opéra Garnier.
| Étage | Type | Surfaces | Dispo | Loyer | Charges | Type de bailRév. annuelle |
|---|---|---|---|---|---|---|
| 5 | Bureaux | 150 | Immédiate | 650 m²/an HT HC | 74,5 m²/an HT | 3-6-9 ansILAT |
| 4 | Bureaux | 180 | Immédiate | 700 m²/an HT HC | 74,5 m²/an HT | 3-6-9 ansILAT |
Régime Fiscal : T.V.A.
Dépôt de garantie : 3 mois de loyer HT/HC
Honoraires : A la charge du preneur.
Taxe Bureau : 25,77 €/m²/an
Prestations :
- ERP : 1ère catégorie
- Parties communes de très bon standing
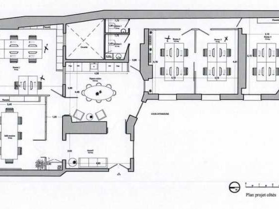
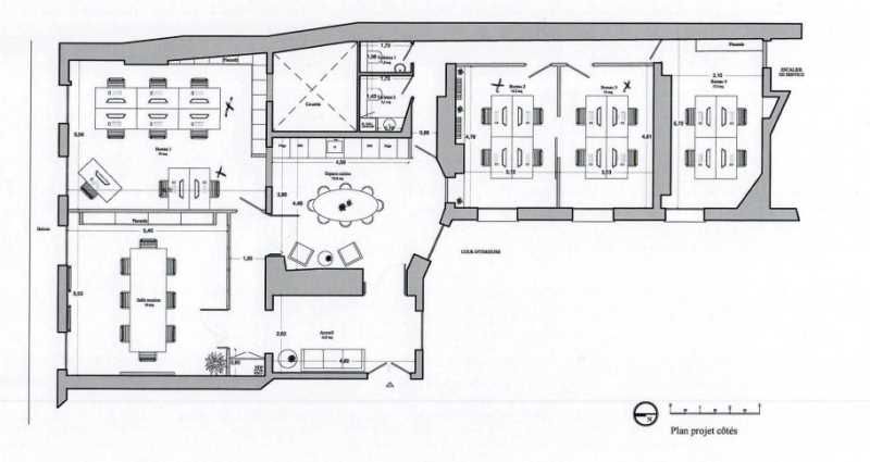
- Locaux atypiques en très bon état livrés meublés Surfaces organisées en espaces ouverts, bureaux cloisonnés et 1 kitchenette Belle hauteur sous plafond Parquet, moulures et cheminées dans certains bureaux
Accessibilité:
Metro 4 Septembre (3)
Metro Opéra (3, 7, 8)
Les informations sur les risques auxquels ce bien est exposé sont disponibles sur le site Géorisques : www.georisques.gouv.fr
Voir plus
Afficher les consommations énergétiques
Localisation et transport aux alentours
- Quatre Septembre122m (2min à pied)3
- Richelieu Drouot351m (5min à pied)89
- Bourse437m (7min à pied)3
- Pyramides545m (8min à pied)714
Favoris
Exporter
Appeler
Contacter
Signaler cette annonce










