Créée en mai 2012, Wellstone est une société de conseil en immobilier d'entreprise qui accompagne ses clients propriétaires, investisseurs et utilisateurs dans leurs différents projets immobiliers ...
En savoir plus

1 245 m² divisible dès 39 m²
HT HC
Location bureau - 1245 m²
Paris 8 (75008)
Dernière mise à jour : Il y a 2 mois
Au coeur du Triangle d'Or, et au sein d'un immeuble moderne de standing, Wellstone vous propose de venir découvrir des bureaux à louer avec une vue exceptionnelle sur le Grand Palais.
Locaux lumineux et climatisés avec une grande flexibilité d'aménagement.
Le 9ème étage bénéficie d'une grande terrasse avec une vue exceptionnelle sur le Grand Palais.
Impôt Foncier : 71,68 €/m²/an
Régime Fiscal : T.V.A.
Dépôt de garantie : 3 mois de loyer HT/HC
Honoraires : A la charge du preneur.
Information sur le Bail :
Les charges incluent: - les honoraires de gestion technique - Assurance immeuble et bailleur - L'ensemble des frais afférent à l'immeuble (eau / électricité / hôtesses / PC Sécurité etc...)
Prestations :
Accessibilité:
Metro Franklin D. Roosevelt (1,9)
Les informations sur les risques auxquels ce bien est exposé sont disponibles sur le site Géorisques : www.georisques.gouv.fr
Locaux lumineux et climatisés avec une grande flexibilité d'aménagement.
Le 9ème étage bénéficie d'une grande terrasse avec une vue exceptionnelle sur le Grand Palais.
| Étage | Type | Surfaces | Dispo | Loyer | Charges | Type de bailRév. annuelle |
|---|---|---|---|---|---|---|
| 9 | Bureaux | 39 | Immédiate | 1500 m²/an HT HC | 128,94 m²/an HT | DérogatoireILAT |
| 6 | Bureaux | 177 | 750 m²/an HT HC | 128,94 m²/an HT | DérogatoireILAT | |
| 5 | Bureaux | 178 | Immédiate | 750 m²/an HT HC | 128,94 m²/an HT | DérogatoireILAT |
| 4 | Bureaux | 175 | Immédiate | 750 m²/an HT HC | 128,94 m²/an HT | DérogatoireILAT |
| 1 | Bureaux | 159 | Immédiate | 750 m²/an HT HC | 128,94 m²/an HT | DérogatoireILAT |
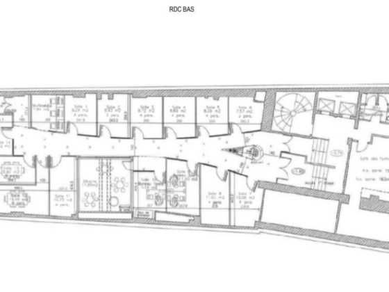
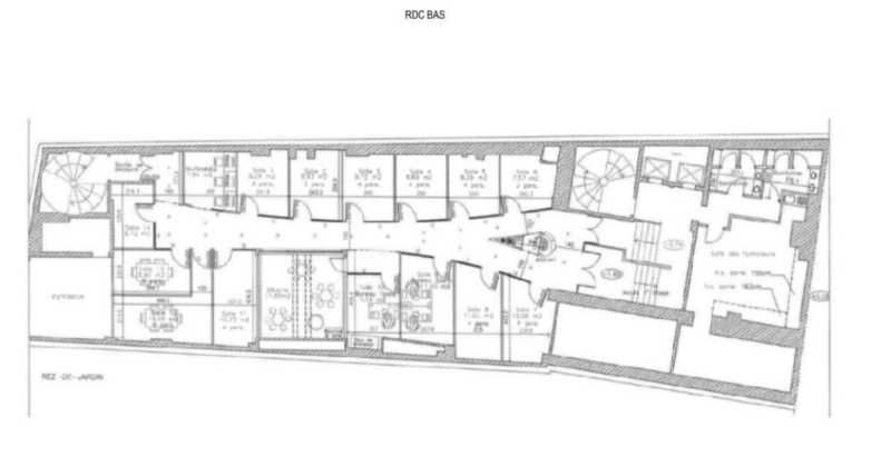
| RDCH | Bureaux | 230 | Immédiate | 550 m²/an HT HC | 128,94 m²/an HT | DérogatoireILAT |
| RDCB | Bureaux | 287 | Immédiate | 450 m²/an HT HC | 128,94 m²/an HT | DérogatoireILAT |
Impôt Foncier : 71,68 €/m²/an
Régime Fiscal : T.V.A.
Dépôt de garantie : 3 mois de loyer HT/HC
Honoraires : A la charge du preneur.
Information sur le Bail :
Les charges incluent: - les honoraires de gestion technique - Assurance immeuble et bailleur - L'ensemble des frais afférent à l'immeuble (eau / électricité / hôtesses / PC Sécurité etc...)
Prestations :
- Parties communes rénovées récemment
- Hôtesse d'accueil
- 9ème étage:
- Espace ouvert
- Vue Tour Eiffel / Montmartre et Grand Palais
- Grande terrasse privative
- 1er étage:
- Locaux livrés rénovés
- Grand flexibilité d'aménagement
- Climatisation
- Fibre optique dans l'immeuble
- Vue dégagée sur le Grand Palais
- Parking dans l'immeuble
- Surface RDC : 517 m²
Accessibilité:
Metro Franklin D. Roosevelt (1,9)
Les informations sur les risques auxquels ce bien est exposé sont disponibles sur le site Géorisques : www.georisques.gouv.fr
Voir plus
Afficher les consommations énergétiques
Localisation et transport aux alentours
- Franklin D. Roosevelt153m (2min à pied)19
- Champs Elysées Clémenceau402m (6min à pied)113
- Saint-Philippe du Roule519m (8min à pied)9
Favoris
Exporter
Appeler
Contacter
Signaler cette annonce










