Conseil en immobilier d'entreprise, Cushman & Wakefield est un acteur incontournable au rayonnement international. Cushman & Wakefield offre des solutions dans toutes les étapes que comporte un p ...
En savoir plus

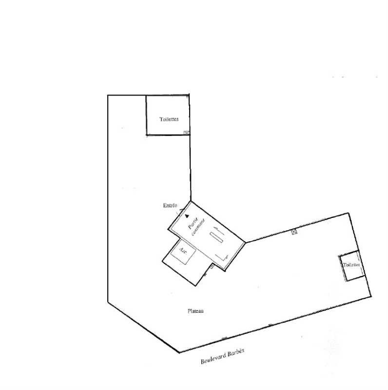
225 m²
HT HC
Location bureau - 225 m²
Paris 18 (75018)
Dernière mise à jour : Il y a 4 jours
Cushman & Wakefield vous propose 225 m2 de bureaux à louer sur le Boulevard Barbès dans le 18 ème arrondissement de Paris, proche du hub de transport Marcadet Poissonier
Dans un immeuble moderne, au 1ème étage, profitez de bureaux en espaces ouvert sur rue, l'ensemble de la surface a été rénovée et climatisée.
Disponible immédiatement
Bail Commercial 3/6/9
Contactez-nous vite pour visiter.
Impôt Foncier : 1000 €//an
Régime Fiscal : T.V.A.
Dépôt de garantie : 3 mois de loyer HT/HC
Paiement Loyer : Trimestriel
Honoraires : à la charge du preneur
Taxe Bureau : 5700 €/m²/an
Prestations :
Accessibilité:
MétroMarcadet-Poissonniers (lignes 2 et 4)
Métro Simplon (ligne 4)
Métro Jules Joffrin (ligne 12)
Les informations sur les risques auxquels ce bien est exposé sont disponibles sur le site Géorisques : www.georisques.gouv.fr
Dans un immeuble moderne, au 1ème étage, profitez de bureaux en espaces ouvert sur rue, l'ensemble de la surface a été rénovée et climatisée.
Disponible immédiatement
Bail Commercial 3/6/9
Contactez-nous vite pour visiter.
| Étage | Type | Surfaces | Dispo | Loyer | Charges | Type de bailRév. annuelle |
|---|---|---|---|---|---|---|
| 1 | Bureaux | 225 | 488,89 HT/HC/m²/an | 11000 HT/an | 3-6-9 ansSur l'indice ILAT |
Impôt Foncier : 1000 €//an
Régime Fiscal : T.V.A.
Dépôt de garantie : 3 mois de loyer HT/HC
Paiement Loyer : Trimestriel
Honoraires : à la charge du preneur
Taxe Bureau : 5700 €/m²/an
Prestations :
- Immeuble à l'angle du Boulevard Barbès et de la rue Ordener et en plein coeur du quartier commerçant et populaire
- Climatisation réversible
- Belle luminosité
- Surface RDC : 0 m²
Accessibilité:
MétroMarcadet-Poissonniers (lignes 2 et 4)
Métro Simplon (ligne 4)
Métro Jules Joffrin (ligne 12)
Les informations sur les risques auxquels ce bien est exposé sont disponibles sur le site Géorisques : www.georisques.gouv.fr
Voir plus
Afficher les consommations énergétiques
Localisation et transport aux alentours
Favoris
Exporter
Appeler
Contacter
Signaler cette annonce
