Créée en mai 2012, Wellstone est une société de conseil en immobilier d'entreprise qui accompagne ses clients propriétaires, investisseurs et utilisateurs dans leurs différents projets immobiliers ...
En savoir plus



1 388 m² divisible dès 252 m²
HT HC
Location bureau - 1388 m²
Paris 9 (75009)
Dernière mise à jour : Il y a 2 mois
Bureaux à louer - Paris 9
Dans un immeuble de bureaux à deux pas des Grands Boulevards et au pied du métro, Wellstone vous propose 3 étages de bureaux en bon état d'usage et climatisés. Les surfaces sont climatisées, elles bénéficient d'une bonne luminosité et de peu de contraintes porteuses. Idéal start-up, activités administratives ou de conseil, . A visiter sans tarder!
Impôt Foncier : 25,11 €/m²/an
Régime Fiscal : T.V.A.
Dépôt de garantie : 3 mois de loyer HT/HC
Honoraires : A la charge du preneur.
Taxe Bureau : 25,77 €/m²/an
Information sur le Bail :
Assurance : 1.09 euros/m²/an
Prestations :
Accessibilité:
Metro Bourse (3)
Metro Grands Boulevards (8, 9)
Les informations sur les risques auxquels ce bien est exposé sont disponibles sur le site Géorisques : www.georisques.gouv.fr
Dans un immeuble de bureaux à deux pas des Grands Boulevards et au pied du métro, Wellstone vous propose 3 étages de bureaux en bon état d'usage et climatisés. Les surfaces sont climatisées, elles bénéficient d'une bonne luminosité et de peu de contraintes porteuses. Idéal start-up, activités administratives ou de conseil, . A visiter sans tarder!
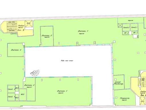
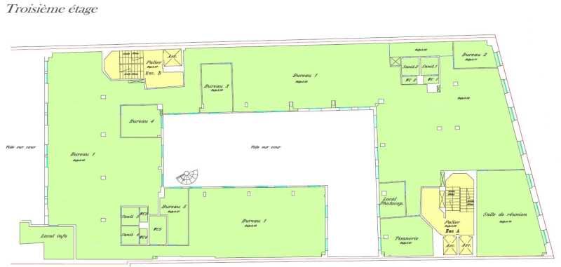
| Étage | Type | Surfaces | Dispo | Loyer | Charges | Type de bailRév. annuelle |
|---|---|---|---|---|---|---|
| 5 | Coworking | 252 | Immédiate | 650 m²/an HT HC | 63,27 m²/an HT | 3-6-9 ansILAT |
| 4 | Coworking | 300,6 | Immédiate | 650 m²/an HT HC | 63,27 m²/an HT | 3-6-9 ansILAT |
| 3 | Bureaux | 835,4 | Immédiate | 650 m²/an HT HC | 63,27 m²/an HT | 3-6-9 ansILAT |
Impôt Foncier : 25,11 €/m²/an
Régime Fiscal : T.V.A.
Dépôt de garantie : 3 mois de loyer HT/HC
Honoraires : A la charge du preneur.
Taxe Bureau : 25,77 €/m²/an
Information sur le Bail :
Assurance : 1.09 euros/m²/an
Prestations :
- Parties communes de bon standing
- Locaux actuellement en état d'usage Surfaces organisées majoritairement en espaces ouverts Peu de contraintes porteuses/cloisonnement amovible Climatisation et chauffage CPCU Câblage
Accessibilité:
Metro Bourse (3)
Metro Grands Boulevards (8, 9)
Les informations sur les risques auxquels ce bien est exposé sont disponibles sur le site Géorisques : www.georisques.gouv.fr
Voir plus
Afficher les consommations énergétiques
Localisation et transport aux alentours
- Grands Boulevards187m (3min à pied)89
- Richelieu Drouot419m (6min à pied)89
- Cadet431m (6min à pied)7
- Bourse457m (7min à pied)3
- Le Peletier477m (7min à pied)7
Favoris
Exporter
Appeler
Contacter
Signaler cette annonce










