BNP Paribas Real Estate, N°1 de la transaction en immobilier d''entreprise en France, vous propose un accompagnement de qualité pour l''acquisition, la vente ou la location d''un bien immobilier.Vo ...
En savoir plus

1 246 m² divisible dès 147 m²
HT HC
Location bureau - 1246 m²
Paris 9 (75009)
Dernière mise à jour : Il y a 12 jours
BNPRE vous propose des surfaces de bureaux dans un bel immeuble de standing. A deux pas de la Place St Georges, BNPRE vous propose à la location 1246 m² de bureaux divisibles à partir de 210 m², en excellent état disponibles immédiatement. - une surface au RDC de 277 m² avec une très belle hauteur sous plafond et une vitrine sur rue. - un lot de 3 plateaux 4ème, 5ème et 6ème étage, modernes, climatisés et avec des plans offrant une réelle flexibilité d'aménagement - ainsi que le 2ème et 3ème étage Très bon rapport qualité prix !
Disponibilité: Immédiate
Honoraires: 15% HT du loyer HT/HC. à la signature du bail
Honoraires: 15% HT du loyer HT/HC. à la signature du bail
| Fiche technique du bien | |
|---|---|
| Métro | M2 + LIGNE 12 - "STATION PIGALLE" |
| Bus | 68 - 74 |
| Etat de l'immeuble | Rénové |
| Type chauffage | Collectif |
| Climatisation | Oui |
| Aménagement des bureaux | Espaces Ouverts |
| Hauteur sous-plafond | belle hauteur sous plafond |
| Sol bureaux | sol stratifié |
| Autre élément bureau | mix espaces cloisonnés et bureaux fermés |
| Autre élément bureau | très lumineux |
| Orientation façade | SUR RUE |
Voir plus
Afficher les consommations énergétiques
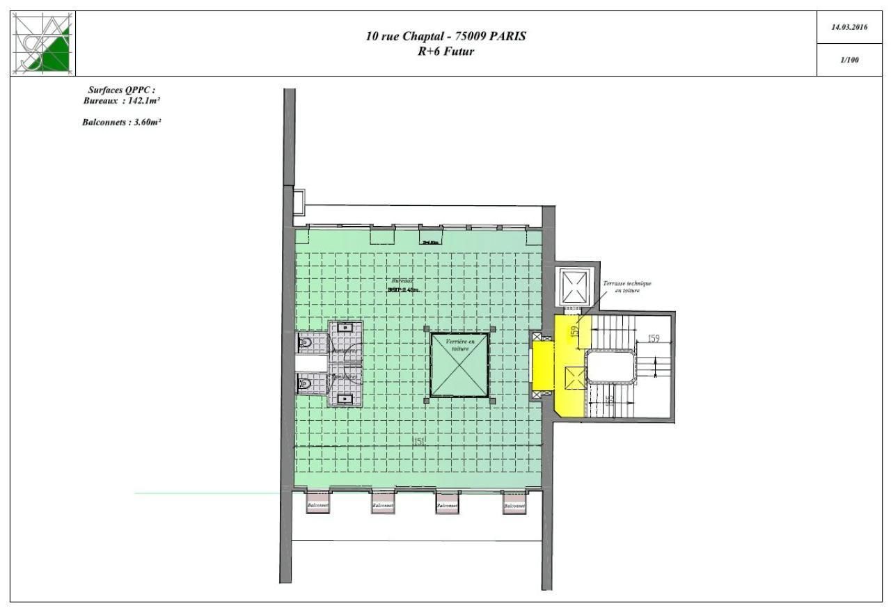
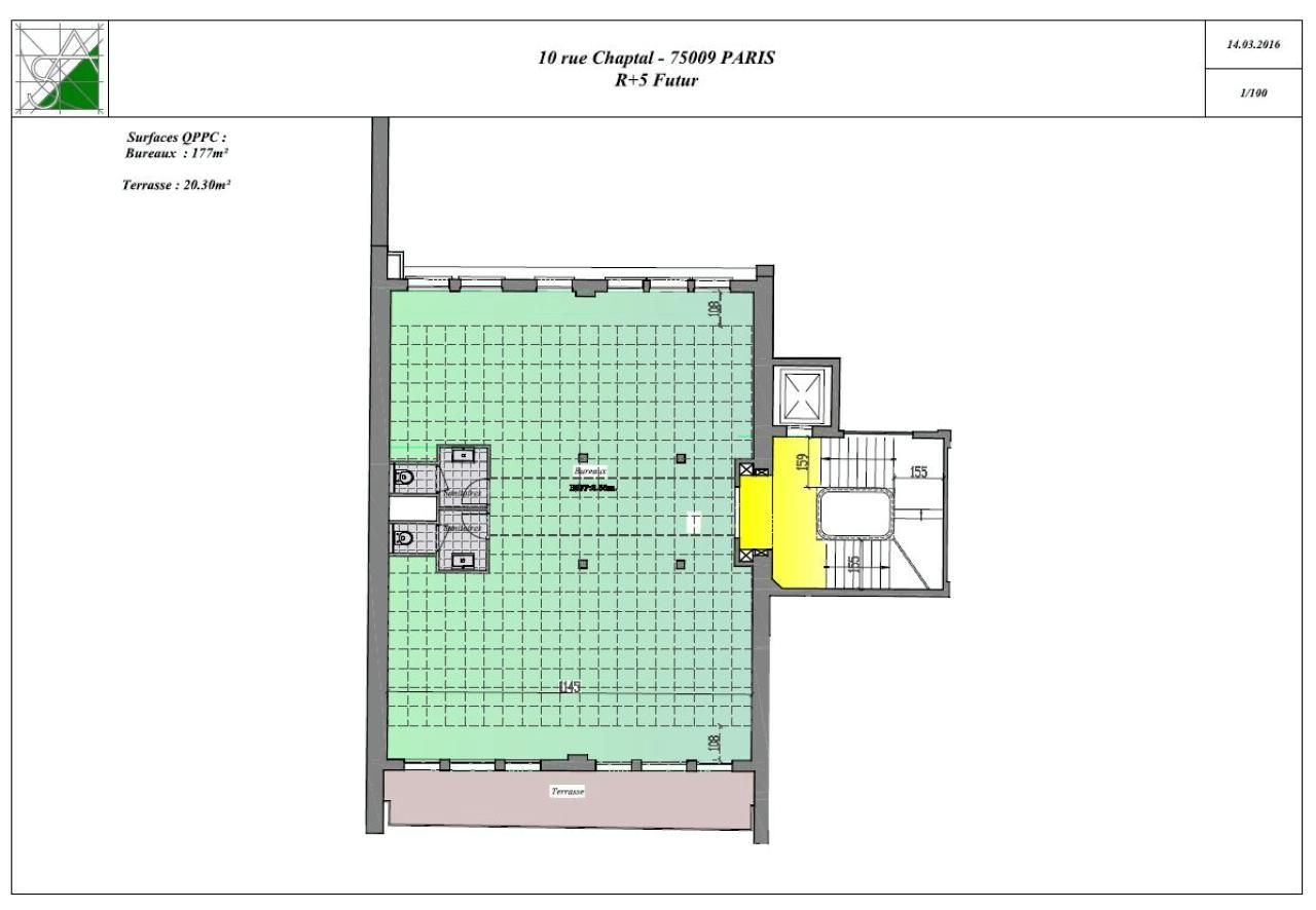
Surfaces divisibles : 6
| Surface | LoyerHT/HC/m²/an | Étage / Batiment | Infos complémentaires |
| 277 m² | N.C | RDC | OLBUR2427560/1 |
| 210 m² | N.C | R+2 | OLBUR2427560/1 |
| 211 m² | N.C | R+3 | OLBUR2427560/1 |
| 216 m² | N.C | R+4 | OLBUR2427560/1 |
| 185 m² | N.C | R+5 | OLBUR2427560/1 |
| 147 m² | N.C | R+6 | OLBUR2427560/1 |
Localisation et transport aux alentours
- Blanche322m (5min à pied)2
- Pigalle436m (7min à pied)212
- Saint-Georges467m (7min à pied)12
- Trinité d'Estienne d'Orves517m (8min à pied)12
- Abbesses642m (10min à pied)12
- Notre-Dame de-Lorette687m (10min à pied)12
- Place de Clichy768m (12min à pied)213
- Liège776m (12min à pied)13
- Haussmann - Saint-Lazare813m (12min à pied)E
- Chaussée d'Antin La Fayette878m (13min à pied)79
- Le Peletier939m (14min à pied)7
- Saint-Lazare993m (15min à pied)312131414N
- Havre Caumartin999m (15min à pied)39
- Auber1km (15min à pied)A
- Paris Saint-Lazare1.1km (16min à pied)JL
- Lamarck Caulaincourt1.1km (17min à pied)12
- Opéra1.1km (17min à pied)378
- Richelieu Drouot1.2km (17min à pied)89
- Anvers1.2km (18min à pied)2
- La Fourche1.2km (18min à pied)13
- Quatre Septembre1.3km (19min à pied)3
- Cadet1.3km (19min à pied)7
- Europe1.3km (20min à pied)3
- Rome1.3km (20min à pied)2
- Madeleine1.5km (22min à pied)81214
Favoris
Exporter
Appeler
Contacter
Signaler cette annonce










