BNP Paribas Real Estate, N°1 de la transaction en immobilier d''entreprise en France, vous propose un accompagnement de qualité pour l''acquisition, la vente ou la location d''un bien immobilier.Vo ...
En savoir plus

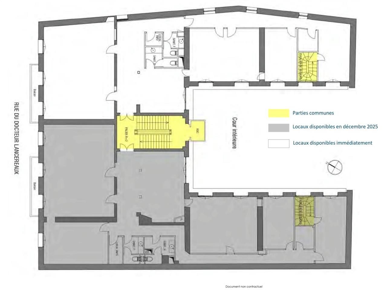
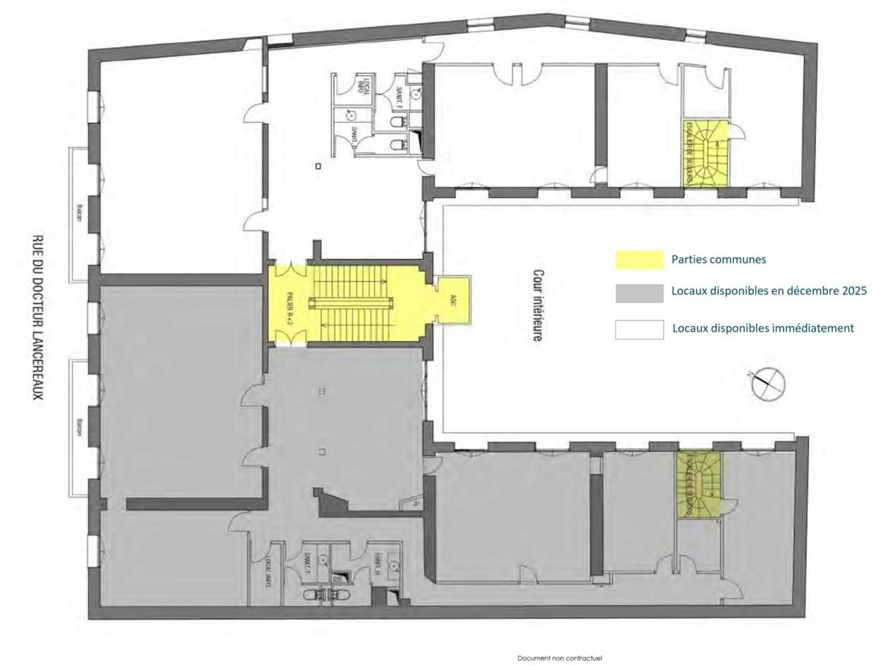
921 m² divisible dès 223 m²
HT HC
Location bureau - 921 m²
Paris 8 (75008)
Dernière mise à jour : Il y a 22 jours
A toute proximité du Parc Monceau dans un immeuble Haussmannien de très bon standing, nous vous proposons à la location plusieurs surfaces de bureaux divisibles. Locaux en excellent état, prestations haut de gamme sur l'ensemble de l'immeuble. Plan efficace et rationnel.
A toute proximité du Parc Monceau dans un immeuble Haussmannien de très bon standing, nous vous proposons à la location plusieurs surfaces de bureaux divisibles. Locaux en excellent état, prestations haut de gamme sur l'ensemble de l'immeuble. Plan efficace et rationnel.
Disponibilité: ImmédiateHonoraires: Nous consulter. à la signature du bail
| Fiche technique du bien | |
|---|---|
| Métro | M9 MIROMESNIL + M13 |
| Bus | 22.43 |
| Gare | Saint Lazare |
| Immeuble | Pierre de Taille |
| Etat de l'immeuble | Etat d'usage |
| Climatisation | Réversible |
| Accueil | une entrée |
| Sécurité | Contrôle d'accès Interphone |
| Ascenseur(s) | Oui |
| Fenêtres | Double vitrage |
| Aménagement des bureaux | Cloisonnés Beaux volumes |
| Bureau(x) cloisonné(s) | 6 |
| Sol bureaux | Parquet |
| Sanitaire(s) | Oui |
| Autre élément bureau | Moulures et cheminées |
Afficher les consommations énergétiques
Surfaces divisibles : 2
| Surface | LoyerHT/HC/m²/an | Étage / Batiment | Infos complémentaires |
| 457 m² | N.C | 1 | OLBUR2202730/3 |
| 464 m² | N.C | 2 | OLBUR2202730/3 |
Favoris
Exporter
Appeler
Contacter
Signaler cette annonce










