Conseil en immobilier d'entreprise, Cushman & Wakefield est un acteur incontournable au rayonnement international. Cushman & Wakefield offre des solutions dans toutes les étapes que comporte un p ...
En savoir plus

680 m² divisible dès 151 m²
HT HC
Location bureau - 680 m²
Paris 8 (75008)
Dernière mise à jour : Il y a 2 mois
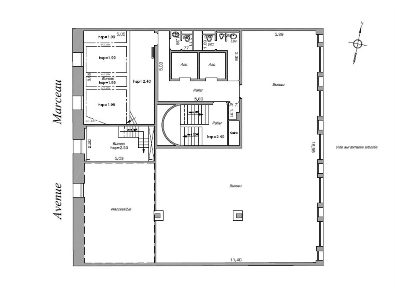
700m² de bureaux divisibles à Partir de 150m² Avenue Marceau - Vue Tour Eiffel
Cushman & Wakefield vous propose de découvrir une opportunité locative de bureaux à proximité immédiate du Pont de l'Alma.
Situés Avenue Marceau, dans le 8 arrondissement de Paris, ces locaux bénéficient d'une excellente desserte grâce aux différents hubs de transport tels que Charles de Gaule Etoile & Alma.
Les bureaux sont rénovés et climatisés et développent environ 150m² au 1er étage et deux fois 264m² au 2ème et 4ème étage
Nichés dans un immeuble moderne, ces bureaux offrent des parties communes de très bon standing ainsi qu'une charmante vue sur un patio végétalisé.
Cette offre est disponible immédiatement sous bail commercial 3-6-9.
Pour toutes visites : 06 35 88 46 50 / [email protected]
Impôt Foncier : 43,85 €//m²/an
Régime Fiscal : T.V.A.
Dépôt de garantie : 3 mois de loyer HT/HC
Paiement Loyer : Trimestriel
Honoraires : à la charge du preneur
Taxe Bureau : 19,97 €/m²/an
Information sur le Bail :
Travaux d'exploitation : 34,15 euros/m² Assurance : 1,35 euros/m²
Prestations :
Accessibilité:
Métro Alma-Marceau (ligne 9)
RER Pont de l'Alma (RER C)
Bus Lignes 32-42-63-72-80-92
Les informations sur les risques auxquels ce bien est exposé sont disponibles sur le site Géorisques : www.georisques.gouv.fr
Cushman & Wakefield vous propose de découvrir une opportunité locative de bureaux à proximité immédiate du Pont de l'Alma.
Situés Avenue Marceau, dans le 8 arrondissement de Paris, ces locaux bénéficient d'une excellente desserte grâce aux différents hubs de transport tels que Charles de Gaule Etoile & Alma.
Les bureaux sont rénovés et climatisés et développent environ 150m² au 1er étage et deux fois 264m² au 2ème et 4ème étage
Nichés dans un immeuble moderne, ces bureaux offrent des parties communes de très bon standing ainsi qu'une charmante vue sur un patio végétalisé.
Cette offre est disponible immédiatement sous bail commercial 3-6-9.
Pour toutes visites : 06 35 88 46 50 / [email protected]
| Étage | Type | Surfaces | Dispo | Loyer | Charges | Type de bailRév. annuelle |
|---|---|---|---|---|---|---|
| 4 | Bureaux | 264,1 | 620 HT/HC/m²/an | 86,46 HT/m²/an | 3-6-9 ansSur l'indice ILAT | |
| 2 | Bureaux | 264,6 | 620 HT/HC/m²/an | 86,46 HT/m²/an | 3-6-9 ansSur l'indice ILAT | |
| 1 | Bureaux | 150,8 | 500 HT/HC/m²/an | 86,46 HT/m²/an | 3-6-9 ansSur l'indice ILAT | |
| 1 | Arch./Reser. | 36,1 | 200 HT/HC/m²/an | 3-6-9 ansSur l'indice ILAT | ||
| Etage -1 | Arch./Reser. | 11,2 | 200 HT/HC/m²/an | 3-6-9 ansSur l'indice ILAT | ||
| SS | Parkings | 2500 HT/HC/place/an | 3-6-9 ansSur l'indice ILAT |
Impôt Foncier : 43,85 €//m²/an
Régime Fiscal : T.V.A.
Dépôt de garantie : 3 mois de loyer HT/HC
Paiement Loyer : Trimestriel
Honoraires : à la charge du preneur
Taxe Bureau : 19,97 €/m²/an
Information sur le Bail :
Travaux d'exploitation : 34,15 euros/m² Assurance : 1,35 euros/m²
Prestations :
- Vue sur la tour Eiffel
- Immeuble de très bon standing
- 2 ascenseurs
- Contrôle d'accès par badge
- Visiophone
- Climatisation
- Fibre optique
- Surface rénovée
- Décloisonnement possible
- Kitchenette
- Surface Traversante
- Faux plancher technique
- Fibre
- Climatisation
- Possibilité de faire une dizaine de bureaux fermés
- Sanitaires doubles
- Ascenseurs
- Parkings
Accessibilité:
Métro Alma-Marceau (ligne 9)
RER Pont de l'Alma (RER C)
Bus Lignes 32-42-63-72-80-92
Les informations sur les risques auxquels ce bien est exposé sont disponibles sur le site Géorisques : www.georisques.gouv.fr
Voir plus
Afficher les consommations énergétiques
Localisation et transport aux alentours
- Alma Marceau129m (2min à pied)9
- Pont de l'Alma354m (5min à pied)C
- Georges V711m (11min à pied)1
- Iéna751m (11min à pied)9
- Kléber989m (15min à pied)6
- Charles de Gaulle Etoile1.1km (17min à pied)126A
- Boissière1.1km (17min à pied)6
- Franklin D. Roosevelt1.2km (17min à pied)19
- Saint-Philippe du Roule1.3km (20min à pied)9
- Ecole Militaire1.4km (21min à pied)8
- Ternes1.4km (21min à pied)2
- La Tour Maubourg1.5km (22min à pied)8
- Trocadéro1.5km (22min à pied)69
- Invalides1.5km (22min à pied)813C
Favoris
Exporter
Appeler
Contacter
Signaler cette annonce










