Size Real Estate est une société de conseil en immobilier d’entreprise. Nous vous accompagnons dans tous vos projets immobiliers à Paris ou en première couronne. De la recherche de bureaux à la loc ...
En savoir plus

320 m²
HT HC
Location bureau - 320 m²
Paris 8 (75008)
Dernière mise à jour : Il y a 2 jours
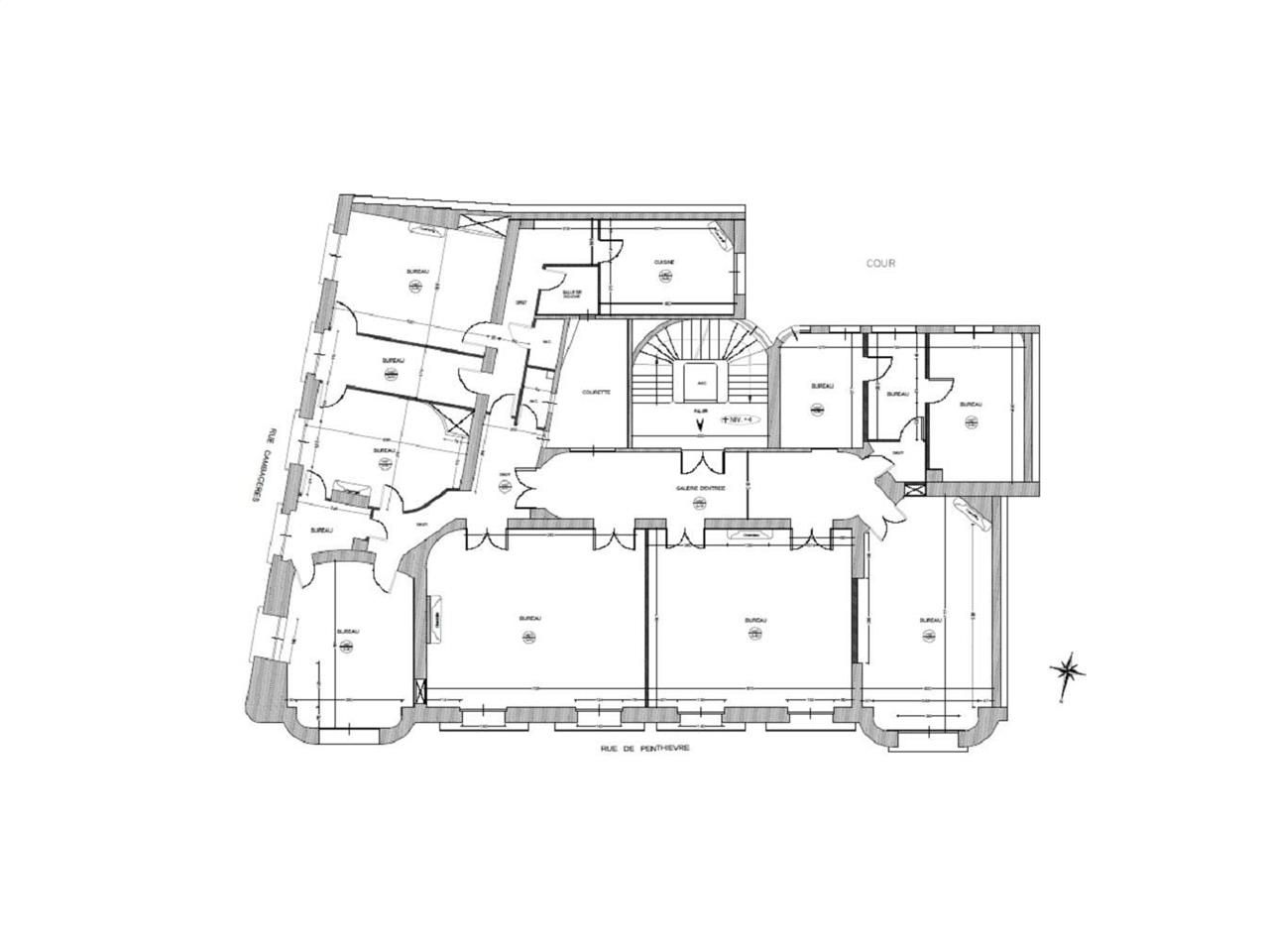
Bureaux à louer de 320m2
En plein coeur du 8e arrondissement et à proximité immédiate de plusieurs métros, SIZE RE vous propose un plateau de 320m² très lumineux. Dans un très bel immeuble d'angle Haussmannien, ces bureaux composés de 2 grands open spaces, 6 bureaux, une cuisine et deux sanitaires. Ces locaux climatisés et exonérés de TVA correspondront parfaitement à toute activité d'assurance, comptable ou encore aux cabinets d'avocats. A visiter au plus vite !
Construction :
Date (dernière mise à jour) : 2026-02-23
Bail : Commercial 3 6 9
Honoraires / Location: 30 % HT du loyer annuel HT HC À la charge du preneur
Prestations :
- Très bel immeuble d'angle Haussmannien
- Parties communes de très bon standing
- Ascenseur
- Gardienne
- Chauffage immeuble fuel
- Fibre optique
- Balcons
-
- État des locaux : Très bon état
- Locaux lumineux
- Moulures, cheminées
- Belle hauteur sous plafond
- Nombreux rangements
- Câblage informatique
- Prises RJ45
- Local technique
Tableau de Surfaces :
Conditions juridiques et financères :
Charges : 3200
Accessibilité :
Métro : Miromesnil (9, 13), Saint-Augustin (9)
- RER : Haussmann Saint-Lazare (E)
- SNCF : Gare Saint-Lazare
En plein coeur du 8e arrondissement et à proximité immédiate de plusieurs métros, SIZE RE vous propose un plateau de 320m² très lumineux. Dans un très bel immeuble d'angle Haussmannien, ces bureaux composés de 2 grands open spaces, 6 bureaux, une cuisine et deux sanitaires. Ces locaux climatisés et exonérés de TVA correspondront parfaitement à toute activité d'assurance, comptable ou encore aux cabinets d'avocats. A visiter au plus vite !
Construction :
Date (dernière mise à jour) : 2026-02-23
Bail : Commercial 3 6 9
Honoraires / Location: 30 % HT du loyer annuel HT HC À la charge du preneur
Prestations :
- Très bel immeuble d'angle Haussmannien
- Parties communes de très bon standing
- Ascenseur
- Gardienne
- Chauffage immeuble fuel
- Fibre optique
- Balcons
-
- État des locaux : Très bon état
- Locaux lumineux
- Moulures, cheminées
- Belle hauteur sous plafond
- Nombreux rangements
- Câblage informatique
- Prises RJ45
- Local technique
Tableau de Surfaces :
| Etage | Type de bien | Surface | Dispo | |
| 4 | Bureaux | 320 m² | Immédiate |
Conditions juridiques et financères :
Charges : 3200
Accessibilité :
Métro : Miromesnil (9, 13), Saint-Augustin (9)
- RER : Haussmann Saint-Lazare (E)
- SNCF : Gare Saint-Lazare
Voir plus
Afficher les consommations énergétiques
Localisation et transport aux alentours
Favoris
Exporter
Appeler
Contacter
Signaler cette annonce










