Créée en mai 2012, Wellstone est une société de conseil en immobilier d'entreprise qui accompagne ses clients propriétaires, investisseurs et utilisateurs dans leurs différents projets immobiliers ...
En savoir plus

238 m²
HT HC
Location bureau - 238 m²
Paris 8 (75008)
Dernière mise à jour : Il y a 2 jours
Au sein d'un magnifique immeuble haussmanien, et à proximité immédiate de
la Place de l'Etoile, Wellstone vous propose de venir découvrir une surface de bureaux à louer sur la prestigieuse avenue des Champs Elysées.
Locaux en état irréprochable et flexibles d'aménagements.
Idéal professions libérales, sociétés de finance, fonds d'investissements, etc..
Impôt Foncier : 35 €//m²/an HT
Régime Fiscal : T.V.A.
Dépôt de garantie : 3 mois de loyer HT/HC
Honoraires : A la charge du preneur.
Information sur le Bail :
Les charges comprennent les fluides, le contrat de maintenance de l'ascenseur, le service d'hôtesse, les honoraires de gestion du PM, l'entretien des parties communes
Prestations :
Accessibilité:
Metro Charles de Gaulle-Etoile (1, 2, 6, A)
Metro George V (1)
Les informations sur les risques auxquels ce bien est exposé sont disponibles sur le site Géorisques : www.georisques.gouv.fr
la Place de l'Etoile, Wellstone vous propose de venir découvrir une surface de bureaux à louer sur la prestigieuse avenue des Champs Elysées.
Locaux en état irréprochable et flexibles d'aménagements.
Idéal professions libérales, sociétés de finance, fonds d'investissements, etc..
| Étage | Type | Surfaces | Dispo | Loyer | Charges | Type de bailRév. annuelle |
|---|---|---|---|---|---|---|
| 3 | Bureaux | 238 | Immédiate | 720 m²/an HT HC | 75 m²/an HT | 3-6-9 ansILAT |
Impôt Foncier : 35 €//m²/an HT
Régime Fiscal : T.V.A.
Dépôt de garantie : 3 mois de loyer HT/HC
Honoraires : A la charge du preneur.
Information sur le Bail :
Les charges comprennent les fluides, le contrat de maintenance de l'ascenseur, le service d'hôtesse, les honoraires de gestion du PM, l'entretien des parties communes
Prestations :
- Parties communes de très bon standing récemment rénovées
- Espace d'accueil pour attente des clients
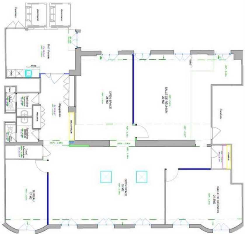
- 3ème étage :
- Surface organisée en 1 entrée donnant sur une tisanerie / coworking, 1 vaste open space de 55 m², 2 bureaux partagés de 28 et 29 m², 1 bureau de direction de 17 m², 1 salle de réunion de 21,5 m² et 1 local informatique
- Climatisation réversible
- Câblage
- Fibre optique COLT
- Emplacements de parking en sous-sol
- Parkings à proximité immédiate (rue Vernet)
Accessibilité:
Metro Charles de Gaulle-Etoile (1, 2, 6, A)
Metro George V (1)
Les informations sur les risques auxquels ce bien est exposé sont disponibles sur le site Géorisques : www.georisques.gouv.fr
Voir plus
Afficher les consommations énergétiques
Localisation et transport aux alentours
- Georges V295m (4min à pied)1
- Charles de Gaulle Etoile374m (6min à pied)126A
- Kléber549m (8min à pied)6
Favoris
Exporter
Appeler
Contacter
Signaler cette annonce
