Conseil en immobilier d'entreprise, Cushman & Wakefield est un acteur incontournable au rayonnement international. Cushman & Wakefield offre des solutions dans toutes les étapes que comporte un p ...
En savoir plus

1 135 m²
Loyer sur demande
Location bureau - 1135 m²
Paris 6 (75006)
Dernière mise à jour : Il y a 2 jours
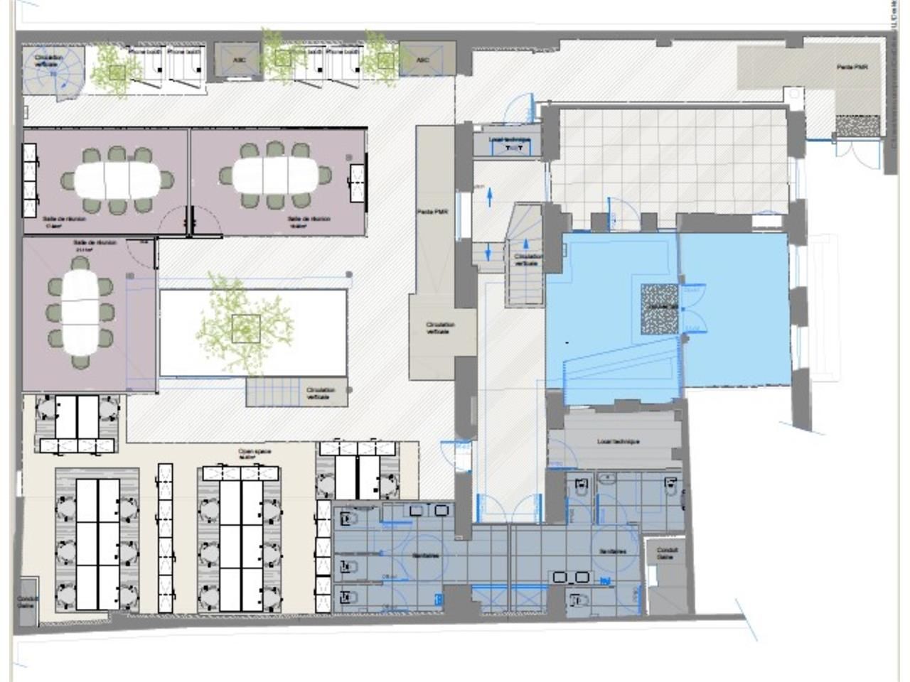
Bureaux atypiques proposés à la location situés entre l'Eglise Saint Sulpice et le Jardin du Luxembourg.
Ces bureaux sont organisés autour d'un atrium avec une structure Eiffel et ont bénéficié d'une rénovation lourde.
Régime Fiscal : T.V.A.
Dépôt de garantie : 3 mois de loyer HT/HC
Paiement Loyer : Trimestriel
Honoraires : à la charge du preneur
Taxe Bureau : 19,93 €/m²/an
Information sur le Bail :
Loyer annuel : 965 000 euros HT/HC/an GAPD : 12 mois de loyer HT
Prestations :
Accessibilité:
Métro Mabillon (ligne 10) à 500 m
Métro Rennes (ligne 12) à 650 m
Métro Saint Sulpice (ligne 4) à 240 m
RER Luxembourg (RER B) à 850 m
Bus Lignes 58 - 84 - 89 - 63 - 96 - 70 - 86
Les informations sur les risques auxquels ce bien est exposé sont disponibles sur le site Géorisques : www.georisques.gouv.fr
Ces bureaux sont organisés autour d'un atrium avec une structure Eiffel et ont bénéficié d'une rénovation lourde.
| Étage | Type | Surfaces | Dispo | Loyer | Charges | Type de bailRév. annuelle |
|---|---|---|---|---|---|---|
| 3 | Bureaux | 64 | 6-9 ansSur l'indice ILAT | |||
| 2 | Bureaux | 207 | 6-9 ansSur l'indice ILAT | |||
| 1 | Bureaux | 209 | 6-9 ansSur l'indice ILAT | |||
| RdC Haut | Bureaux | 368 | 6-9 ansSur l'indice ILAT | |||
| RdC Bas | Bureaux | 287 | 6-9 ansSur l'indice ILAT |
Régime Fiscal : T.V.A.
Dépôt de garantie : 3 mois de loyer HT/HC
Paiement Loyer : Trimestriel
Honoraires : à la charge du preneur
Taxe Bureau : 19,93 €/m²/an
Information sur le Bail :
Loyer annuel : 965 000 euros HT/HC/an GAPD : 12 mois de loyer HT
Prestations :
- Situé entre l'église Saint Sulpice et le Jardin du Luxembourg
- Immeuble ancien en structure Eiffel et éclairés par une verrière
- Ce bâtiment climatisé dont la rénovation respecte l'architecture originale offre un cadre unique et moderne
- Accès livraison avec un monte-charge
- Bureaux rénovés
- Locaux atypiques
- Capacitaire : 300 personnes
- Max 300 au RDC haut
- 100 par autre niveau ((soit une personne pour 4m²)
- Surface RDC : 655 m²
Accessibilité:
Métro Mabillon (ligne 10) à 500 m
Métro Rennes (ligne 12) à 650 m
Métro Saint Sulpice (ligne 4) à 240 m
RER Luxembourg (RER B) à 850 m
Bus Lignes 58 - 84 - 89 - 63 - 96 - 70 - 86
Les informations sur les risques auxquels ce bien est exposé sont disponibles sur le site Géorisques : www.georisques.gouv.fr
Voir plus
Afficher les consommations énergétiques
Localisation et transport aux alentours
Favoris
Exporter
Appeler
Contacter
Signaler cette annonce










