Nous sommes Immprove, une grande équipe de plus de 200 experts en immobilier d’entreprise, implantés localement avec plus de 20 agences sur tout le territoire.Depuis 2009, notre proximité, notre ét ...
En savoir plus



160 m²
HT HC
Location bureau - 160 m²
Paris 4 (75004)
Dernière mise à jour : Hier
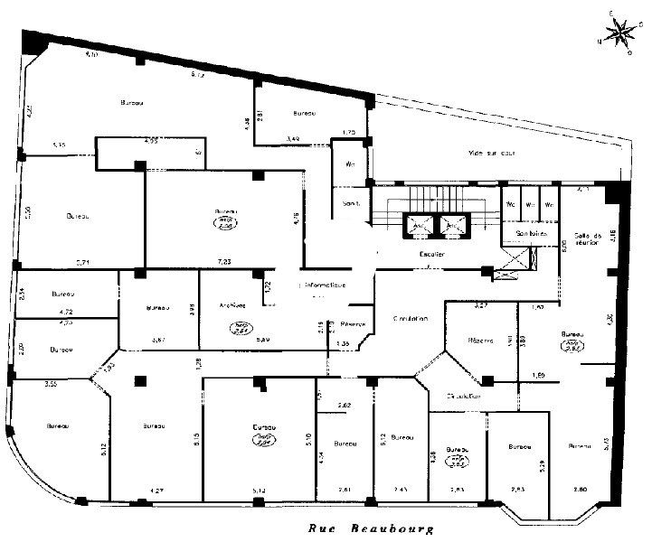
IMMPROVE vous propose à la location une surface de bureaux de 160 m², située au 5e étage d'un bel immeuble ancien, au coeur du 4 eme arrondissement.
Cet espace lumineux offre une belle hauteur sous plafond et se compose d'un espace d'accueil, de quatre bureaux cloisonnés et modulables, d'une grande salle de réunion, de sanitaires privatifs, ainsi que d'une cuisine équipée avec un espace de détente.
À visiter rapidement !
Impôt Foncier : 23,26 €/m²/an
Régime Fiscal : T.V.A. (20%)
Dépôt de garantie : 3 mois de loyer HT HC
Honoraires : 30% HT du loyer annuel HT HC A la charge du preneur
Taxe Bureau : 14,75 €/m²/an
Information sur le Bail :
Assurance PNO : 0.50/m²/an HT
Prestations :
Accessibilité:
Metro Rambuteau (11)
Metro Chatelet (1, 4, 7 11, 14)
RER Chatelet les Halles (A, B, D)
Les informations sur les risques auxquels ce bien est exposé sont disponibles sur le site Géorisques : www.georisques.gouv.fr
Cet espace lumineux offre une belle hauteur sous plafond et se compose d'un espace d'accueil, de quatre bureaux cloisonnés et modulables, d'une grande salle de réunion, de sanitaires privatifs, ainsi que d'une cuisine équipée avec un espace de détente.
À visiter rapidement !
| Étage | Type | Surfaces | Dispo | Loyer | Charges | Type de bailRév. annuelle |
|---|---|---|---|---|---|---|
| 5 | Bureaux | 160 | Nous consulter | 650 m²/an HT HC | 26,7 m²/an HT | Bail Commercial 3-6-9 ansselon l'indice des loyers des activités tertiaires (ILAT) |
Impôt Foncier : 23,26 €/m²/an
Régime Fiscal : T.V.A. (20%)
Dépôt de garantie : 3 mois de loyer HT HC
Honoraires : 30% HT du loyer annuel HT HC A la charge du preneur
Taxe Bureau : 14,75 €/m²/an
Information sur le Bail :
Assurance PNO : 0.50/m²/an HT
Prestations :
- Immeuble ancien
- Façade en pierres de taille
- Double accès
- Télésurveillance
- Digicode
- Interphone
- Fibre optique
- Accueil
- Espace ouvert
- 4 Bureaux cloisonnés
- Salle de réunion
- Espace détente
- Local technique
- Cuisine
- Sanitaires privatifs
- Locaux lumineux
- Faux plafonds
- Sol PVC
- Pré-câblage informatique et téléphonique
- Prises RJ45
Accessibilité:
Metro Rambuteau (11)
Metro Chatelet (1, 4, 7 11, 14)
RER Chatelet les Halles (A, B, D)
Les informations sur les risques auxquels ce bien est exposé sont disponibles sur le site Géorisques : www.georisques.gouv.fr
Voir plus
Afficher les consommations énergétiques
Favoris
Exporter
Appeler
Contacter
Signaler cette annonce










