Size Real Estate est une société de conseil en immobilier d’entreprise. Nous vous accompagnons dans tous vos projets immobiliers à Paris ou en première couronne. De la recherche de bureaux à la loc ...
En savoir plus

278 m²
HT HC
Location bureau - 278 m²
Paris 3 (75003)
Dernière mise à jour : Il y a 2 jours
Bureaux à louer au sein d'un magnifique immeuble d'angle - Paris 3
A proximité immédiate du métro Arts et Métiers (3 et 11), SIZE Real Estate vous propose une surface de bureaux modulables, à la location, au sein d'un magnifique immeuble d'angle de bon standing.
Les bureaux sont lumineux et ils bénéficient de très bons fondamentaux, belle hauteur sous-plafond, plateau en angle d'immeuble, peu de contraintes porteuses, climatisation, ...
Disponible le 1er avril 2026.
Construction : Immeuble ancien de bon standing
Immeuble d'angle offrant sur ses différents niveaux des plateaux efficaces avec une très belle luminosité
État de l'immeuble : Bon état
Parking intérieur : 2
Date (dernière mise à jour) : 2026-02-02
Bail : Commercial 3 6 9
Honoraires / Location: 15 % HT du loyer annuel HT HC À la charge du preneur
Commentaires: ? Provisions de Travaux d'exploitation 2026 : 9,18 EUR/m2/an HT
? Provisions de Primes d'assurance 2026 : 1,17 EUR/m2/an HT
? Taxe Bureaux / Parkings 2026: 2,92 EUR/m2/an HT;
Prestations :
- Immeuble ancien de bon standing
- Immeuble d'angle offrant sur ses différents niveaux des plateaux efficaces avec une très belle luminosité
-
- Contrôle d'accès par badge / Digicode
- Gardien
- Accueil
- Batterie de 2 ascenseurs
-
- État des locaux : Bon état
- Double entrée palière
- Locaux très lumineux
- Bureaux cloisonnés / Open space
- Très peu de contraintes porteuses
- Belle hauteur sous plafond
- Câblage informatique
- Chauffage individuel
- Espace cuisine
- Local technique
- Grands ouvrants
- Archives en sous-sol
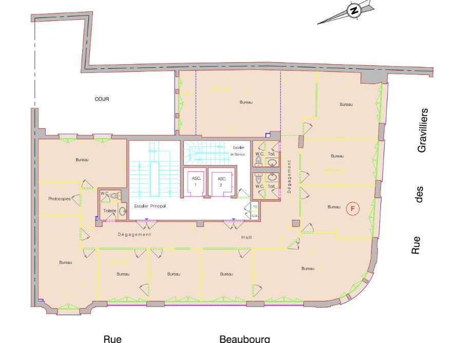
Tableau de Surfaces :
Conditions juridiques et financères :
Charges : 1892.346
Accessibilité :
Métro : Arts et Métiers ( 3, et 11) à 120 m
- Bus: 2 à 240 m
A proximité immédiate du métro Arts et Métiers (3 et 11), SIZE Real Estate vous propose une surface de bureaux modulables, à la location, au sein d'un magnifique immeuble d'angle de bon standing.
Les bureaux sont lumineux et ils bénéficient de très bons fondamentaux, belle hauteur sous-plafond, plateau en angle d'immeuble, peu de contraintes porteuses, climatisation, ...
Disponible le 1er avril 2026.
Construction : Immeuble ancien de bon standing
Immeuble d'angle offrant sur ses différents niveaux des plateaux efficaces avec une très belle luminosité
État de l'immeuble : Bon état
Parking intérieur : 2
Date (dernière mise à jour) : 2026-02-02
Bail : Commercial 3 6 9
Honoraires / Location: 15 % HT du loyer annuel HT HC À la charge du preneur
Commentaires: ? Provisions de Travaux d'exploitation 2026 : 9,18 EUR/m2/an HT
? Provisions de Primes d'assurance 2026 : 1,17 EUR/m2/an HT
? Taxe Bureaux / Parkings 2026: 2,92 EUR/m2/an HT;
Prestations :
- Immeuble ancien de bon standing
- Immeuble d'angle offrant sur ses différents niveaux des plateaux efficaces avec une très belle luminosité
-
- Contrôle d'accès par badge / Digicode
- Gardien
- Accueil
- Batterie de 2 ascenseurs
-
- État des locaux : Bon état
- Double entrée palière
- Locaux très lumineux
- Bureaux cloisonnés / Open space
- Très peu de contraintes porteuses
- Belle hauteur sous plafond
- Câblage informatique
- Chauffage individuel
- Espace cuisine
- Local technique
- Grands ouvrants
- Archives en sous-sol
Tableau de Surfaces :
| Etage | Type de bien | Surface | Dispo | |
| 3 | Bureaux | 278 m² | 01/04/2026 |
Conditions juridiques et financères :
Charges : 1892.346
Accessibilité :
Métro : Arts et Métiers ( 3, et 11) à 120 m
- Bus: 2 à 240 m
2 parking(s) extérieur
Voir plus
Afficher les consommations énergétiques
Localisation et transport aux alentours
Favoris
Exporter
Appeler
Contacter
Signaler cette annonce










