Créée en mai 2012, Wellstone est une société de conseil en immobilier d'entreprise qui accompagne ses clients propriétaires, investisseurs et utilisateurs dans leurs différents projets immobiliers ...
En savoir plus

130 m²
HT HC
Location bureau - 130 m²
Paris 2 (75002)
Dernière mise à jour : Il y a 2 jours
Dans un immeuble en pierre de taille, Wellstone vous propose des bureaux à louer dans le quartier Réaumur/Sébastopol.
Régime Fiscal : T.V.A.
Dépôt de garantie : 3 mois de loyer HT/HC
Honoraires : A la charge du preneur.
Information sur le Bail :
Durée d'engagement minimum de 12 mois hors période de préavis Préavis 3 mois
Prestations :
Accessibilité:
Metro Réaumur-Sébastopol (3, 4)
Metro Strasbourg Saint-Denis (4, 8, 9)
Les informations sur les risques auxquels ce bien est exposé sont disponibles sur le site Géorisques : www.georisques.gouv.fr
| Étage | Type | Surfaces | Dispo | Loyer | Charges | Type de bailRév. annuelle |
|---|---|---|---|---|---|---|
| RDC | Bureaux | 130 | Après accord | 600 m²/an HT HC | 46,15 m²/an HT | Prestation de serviceILAT |
Régime Fiscal : T.V.A.
Dépôt de garantie : 3 mois de loyer HT/HC
Honoraires : A la charge du preneur.
Information sur le Bail :
Durée d'engagement minimum de 12 mois hors période de préavis Préavis 3 mois
Prestations :
- Parties communes de bon standing
- Locaux en bon état
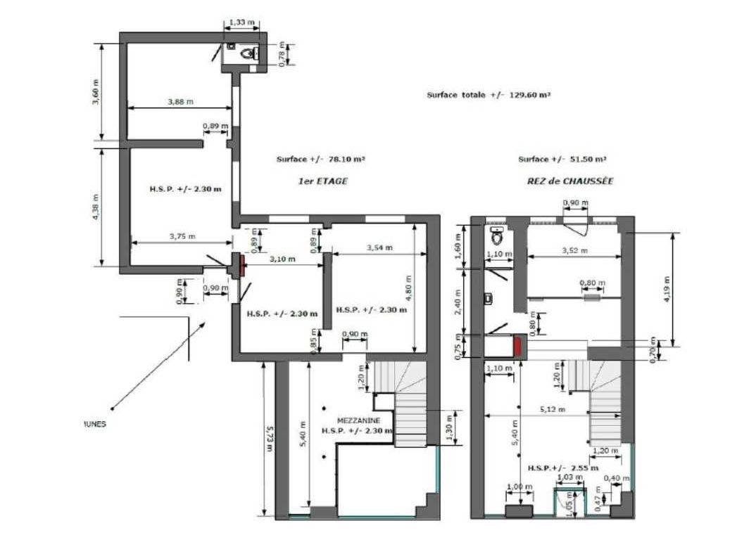
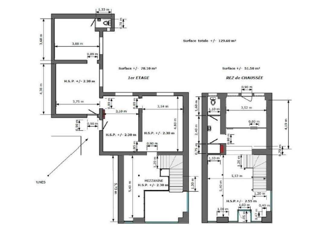
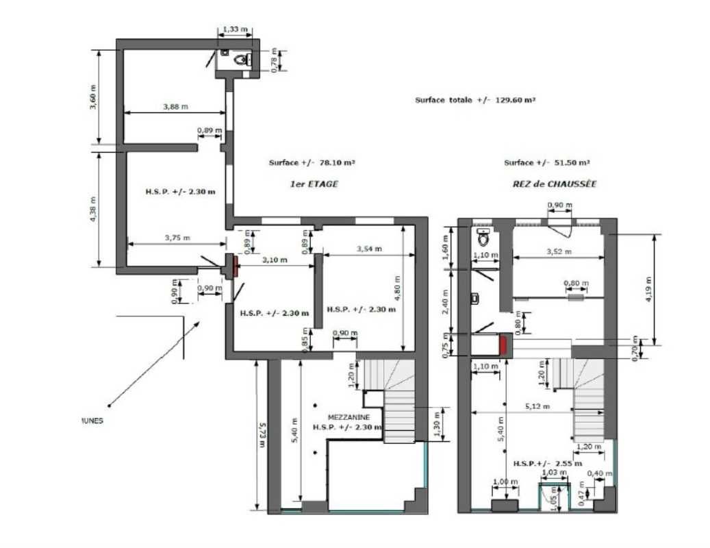
- Un espace indépendant de 130 m2 composé de 18 postes (possibilité d'ajouter des postes de travail) réparti comme suit :
- 130 m2 répartis sur 2 niveau (RDC + Mezzanine avec un 1er étage )
- RDC :
- Un espace de vie aménageable
- 1 espace Cuisine professionnel
- 1 wc
- Espace mezzanine
- 1er étage composé de 4 bureaux en enfilades dont une salle de réunion (possibilité d'accès plusieurs accès)
- 2 WC dont un au RDC et un second au 1er étage
- Contrat de prestation de services comprenant :
- Plug and Play
- Bureaux meublés de 20 postes ou plus (peut aller jusqu'à 25 postes si le client souhaite en ajouter)
- Toutes charges incluses
- Internet Fibré
- Câblage RJ45
- Bureaux climatisés
- Prestation de ménage 2 fois par semaine
- Surface RDC : 130 m²
Accessibilité:
Metro Réaumur-Sébastopol (3, 4)
Metro Strasbourg Saint-Denis (4, 8, 9)
Les informations sur les risques auxquels ce bien est exposé sont disponibles sur le site Géorisques : www.georisques.gouv.fr
Voir plus
Afficher les consommations énergétiques
Localisation et transport aux alentours
Favoris
Exporter
Appeler
Contacter
Signaler cette annonce










