Conseil en immobilier d'entreprise, Cushman & Wakefield est un acteur incontournable au rayonnement international. Cushman & Wakefield offre des solutions dans toutes les étapes que comporte un p ...
En savoir plus

118 m²
HT HC
Location bureau - 118 m²
Paris 2 (75002)
Dernière mise à jour : Il y a 3 jours
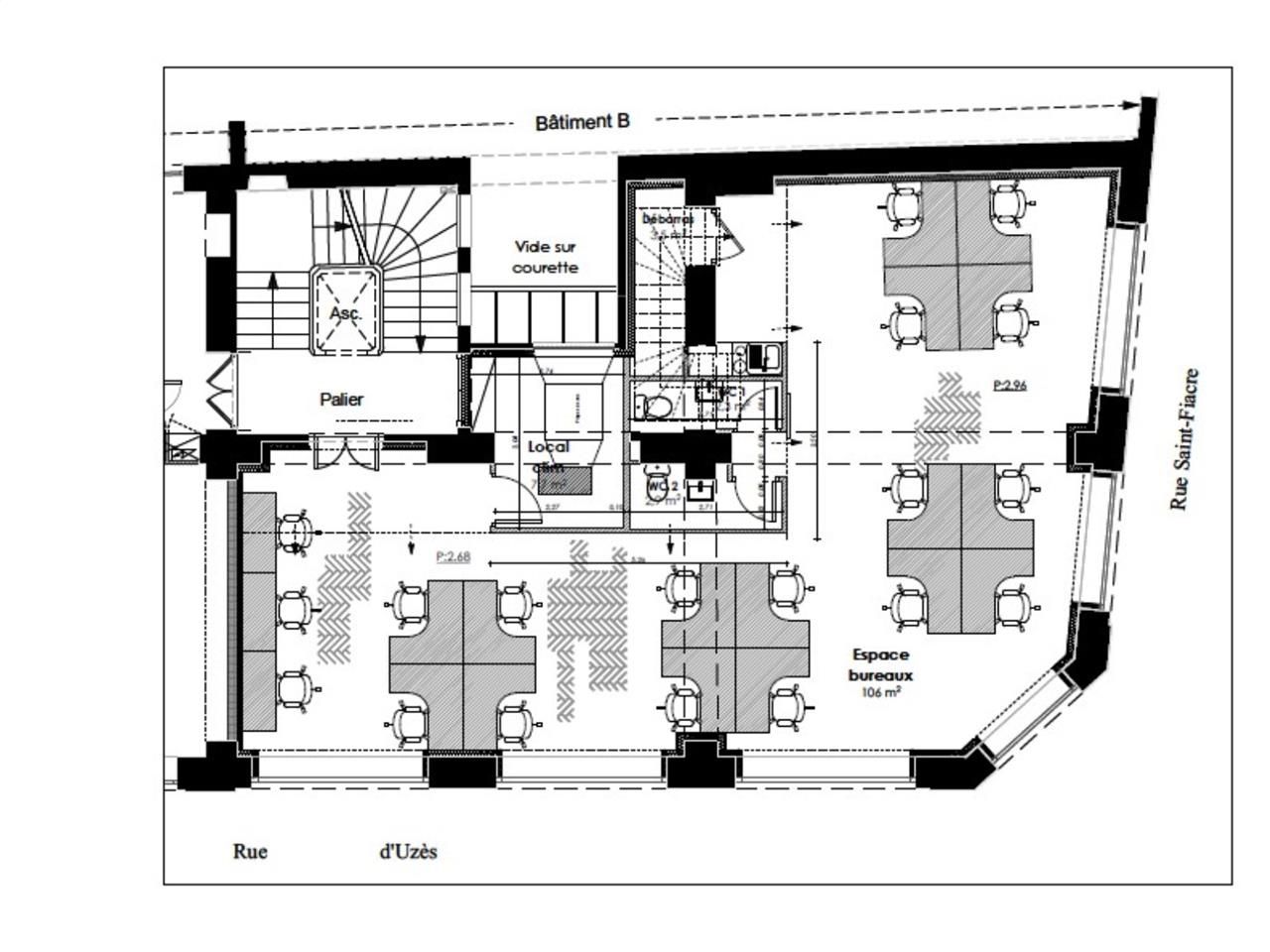
Bureaux lumineux, rénovés et climatisés de 118 m² au coeur de Paris.
Cushman & Wakefield vous propose une surface de bureaux rénovée et climatisée de 118 m², idéalement située au 1er étage d'un immeuble de standing avec ascenseur, à quelques pas de la Bourse.
Parfaitement desservis et implantés dans un emplacement stratégique, ces bureaux bénéficient d'un environnement de travail prestigieux et lumineux, grâce à de larges fenêtres en double hauteur.
L'espace comprend un vaste open space modulable, un espace cuisine et des sanitaires privatifs, offrant un cadre de travail confortable et adaptable aux besoins de vos équipes. La fibre est déjà installée pour une connectivité optimale.
Une belle opportunité pour toute entreprise recherchant des bureaux fonctionnels, flexibles et idéalement situés dans Paris.
Disponibilité immédiate - Contactez-nous pour organiser une visite.
Impôt Foncier : 2,75 €//m²/an
Régime Fiscal : T.V.A.
Dépôt de garantie : 3 mois de loyer HT/HC
Paiement Loyer : Trimestriel
Honoraires : à la charge du preneur
Prestations :
Accessibilité:
Métro Grands Boulevards (lignes 8 - 9)
Métro Bonne Nouvelle (lignes 8 - 9)
Métro Sentier (ligne 3)
Bus 20, 39, 67, 74, 85
Les informations sur les risques auxquels ce bien est exposé sont disponibles sur le site Géorisques : www.georisques.gouv.fr
Cushman & Wakefield vous propose une surface de bureaux rénovée et climatisée de 118 m², idéalement située au 1er étage d'un immeuble de standing avec ascenseur, à quelques pas de la Bourse.
Parfaitement desservis et implantés dans un emplacement stratégique, ces bureaux bénéficient d'un environnement de travail prestigieux et lumineux, grâce à de larges fenêtres en double hauteur.
L'espace comprend un vaste open space modulable, un espace cuisine et des sanitaires privatifs, offrant un cadre de travail confortable et adaptable aux besoins de vos équipes. La fibre est déjà installée pour une connectivité optimale.
Une belle opportunité pour toute entreprise recherchant des bureaux fonctionnels, flexibles et idéalement situés dans Paris.
Disponibilité immédiate - Contactez-nous pour organiser une visite.
| Étage | Type | Surfaces | Dispo | Loyer | Charges | Type de bailRév. annuelle |
|---|---|---|---|---|---|---|
| R+1 | Bureaux | 118 | 650 HT/HC/m²/an | 23,9 HT/m²/an | 3-6-9 ansSur l'indice ILAT |
Impôt Foncier : 2,75 €//m²/an
Régime Fiscal : T.V.A.
Dépôt de garantie : 3 mois de loyer HT/HC
Paiement Loyer : Trimestriel
Honoraires : à la charge du preneur
Prestations :
- Surface de bureaux entièrement rénovée et décloisonnée
- Lumineux et calme
- Actuellement aménagé : Open space - espace cuisine- sanitaire
- Plateau bénéficiant d'aucune contrainte porteuse
- Grande flexibilité d'aménagement
- Belle hauteur sous plafond
- Fenêtre double hauteur et double vitrage
- Parquet
- Climatisation
Accessibilité:
Métro Grands Boulevards (lignes 8 - 9)
Métro Bonne Nouvelle (lignes 8 - 9)
Métro Sentier (ligne 3)
Bus 20, 39, 67, 74, 85
Les informations sur les risques auxquels ce bien est exposé sont disponibles sur le site Géorisques : www.georisques.gouv.fr
Voir plus
Afficher les consommations énergétiques
Localisation et transport aux alentours
Favoris
Exporter
Appeler
Contacter
Signaler cette annonce










