Créée en mai 2012, Wellstone est une société de conseil en immobilier d'entreprise qui accompagne ses clients propriétaires, investisseurs et utilisateurs dans leurs différents projets immobiliers ...
En savoir plus

100 m²
HT HC
Location bureau - 100 m²
Paris 2 (75002)
Dernière mise à jour : Il y a 3 jours
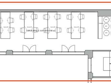
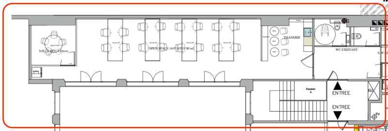
A proximité immédiate de la place des Victoires, entre les métros Bourse et Sentier, Wellstone vous propose des bureaux à sous-louer de 100 m² au 3ème étage. Il s'agit d'une surface totalement indépendante, plug and play et organisée en 1 open space, 1 cuisine, 1 salle de réunion et 2 sanitaires.
Régime Fiscal : T.V.A.
Dépôt de garantie : 3 mois de loyer HT/HC
Honoraires : A la charge du preneur.
Information sur le Bail :
Contrat de 12 ou 18 mois renouvelable
Prestations :
Accessibilité:
Metro Bourse (3)
Metro Sentier (3)
Les informations sur les risques auxquels ce bien est exposé sont disponibles sur le site Géorisques : www.georisques.gouv.fr
| Étage | Type | Surfaces | Dispo | Loyer | Charges | Type de bailRév. annuelle |
|---|---|---|---|---|---|---|
| 3 | Bureaux | 100 | Immédiate | 664 m²/an HT HC | 118 m²/an HT | Sous-locationILAT |
Régime Fiscal : T.V.A.
Dépôt de garantie : 3 mois de loyer HT/HC
Honoraires : A la charge du preneur.
Information sur le Bail :
Contrat de 12 ou 18 mois renouvelable
Prestations :
- Parties communes de bon standing
- Locaux en très bon état
- Surface indépendante, entièrement équipée, organisée en :
- 1 open space
- 1 salle de réunion
- 1 cuisine
- 2 WC
- Possibilité de retirer le mobilier
Accessibilité:
Metro Bourse (3)
Metro Sentier (3)
Les informations sur les risques auxquels ce bien est exposé sont disponibles sur le site Géorisques : www.georisques.gouv.fr
Voir plus
Afficher les consommations énergétiques
Localisation et transport aux alentours
Favoris
Exporter
Appeler
Contacter
Signaler cette annonce










