Alex Bolton, société de conseil en immobilier d’entreprise est spécialisée dans la transaction locative et la vente d’immeubles de bureaux.Dotée d’une équipe de collaborateurs expérimentés, la soci ...
En savoir plus

180 m²
HT HC
Location bureau - 180 m²
Paris 18 (75018)
Dernière mise à jour : Il y a 2 jours
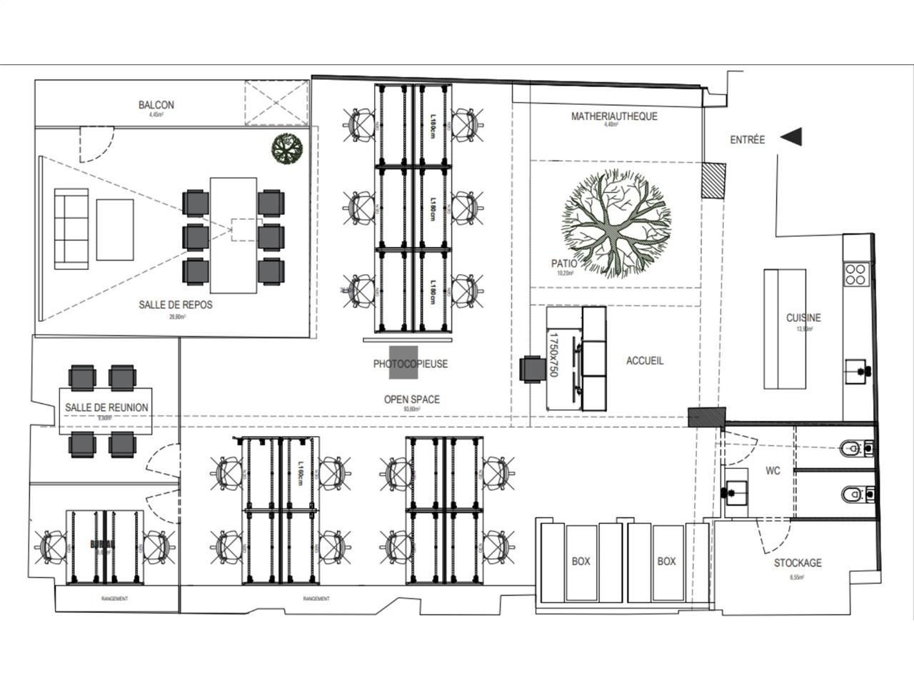
EXCLUSIVITE. Alex Bolton vous propose à la location un plateau de bureaux de 180 m² à l'esprit industriel situé dans un quartier vivant et dynamique du XVIIIe arrondissement. Grande flexibilité d'aménagement (très peu de contraintes porteuses) et extérieurs privatifs (patio et balcon). Idéal sociétés de production/communication, architectes, start-up...etc. L'emplacement bénéficie d'une excellente accessibilité en transports en commun : à quelques minutes à pied des stations de métro Jules Joffrin (ligne 12) et Simplon (ligne 4).
Impôt Foncier : 16,42 €//m²/an
Régime Fiscal : T.V.A.
Dépôt de garantie : 3 mois de loyer HT/HC
Honoraires : A la charge du preneur
Taxe Bureau : 21,31 €/m²/an
Prestations :
Accessibilité:
Bus Mairie du 18ème - Jules Joffrin (BUS-85), Duhesme - le Ruisseau (BUS-31, BUS-60)
Métro Jules Joffrin (METRO-12)
Tram Angélique Compoint - Porte de Montmartre (TRAMWAY)
Les informations sur les risques auxquels ce bien est exposé sont disponibles sur le site Géorisques : www.georisques.gouv.fr
| Étage | Type | Surfaces | Dispo | Loyer | Charges | Type de bailRév. annuelle |
|---|---|---|---|---|---|---|
| 1 | Bureaux | 180 | Après accord | 420 HT/HC/m²/an | 68 m²/an HT | 3-6-9 ansILAT |
Impôt Foncier : 16,42 €//m²/an
Régime Fiscal : T.V.A.
Dépôt de garantie : 3 mois de loyer HT/HC
Honoraires : A la charge du preneur
Taxe Bureau : 21,31 €/m²/an
Prestations :
- Ensemble entièrement rénové récemment: hall d'entrée, parties communes, ravalement de toutes les façades, ascenseur, chaufferie
- Accès sécurisé
- Ascenseur PMR
- Chauffage central
- Local vélos
- Esprit industriel
- Locaux calmes
- Grande flexibilité d'aménagement
- Cuisine ouverte + 2 sanitaires
- Balcon + patio intérieur
- Climatisation partielle
- Câblage informatique et fibre optique
Accessibilité:
Bus Mairie du 18ème - Jules Joffrin (BUS-85), Duhesme - le Ruisseau (BUS-31, BUS-60)
Métro Jules Joffrin (METRO-12)
Tram Angélique Compoint - Porte de Montmartre (TRAMWAY)
Les informations sur les risques auxquels ce bien est exposé sont disponibles sur le site Géorisques : www.georisques.gouv.fr
Voir plus
Afficher les consommations énergétiques
Localisation et transport aux alentours
Favoris
Exporter
Appeler
Contacter
Signaler cette annonce










