Conseil en immobilier d'entreprise, Cushman & Wakefield est un acteur incontournable au rayonnement international. Cushman & Wakefield offre des solutions dans toutes les étapes que comporte un p ...
En savoir plus

580 m²
HT HC
Location bureau - 580 m²
Paris 11 (75011)
Dernière mise à jour : Il y a 2 jours
Bureaux leon frot
Cushman & Wakefield vous propose à la location plusieurs surfaces de bureaux situées dans un immeuble résidentiel de caractère, au coeur du 11e arrondissement de Paris, entre Nation et Voltaire.
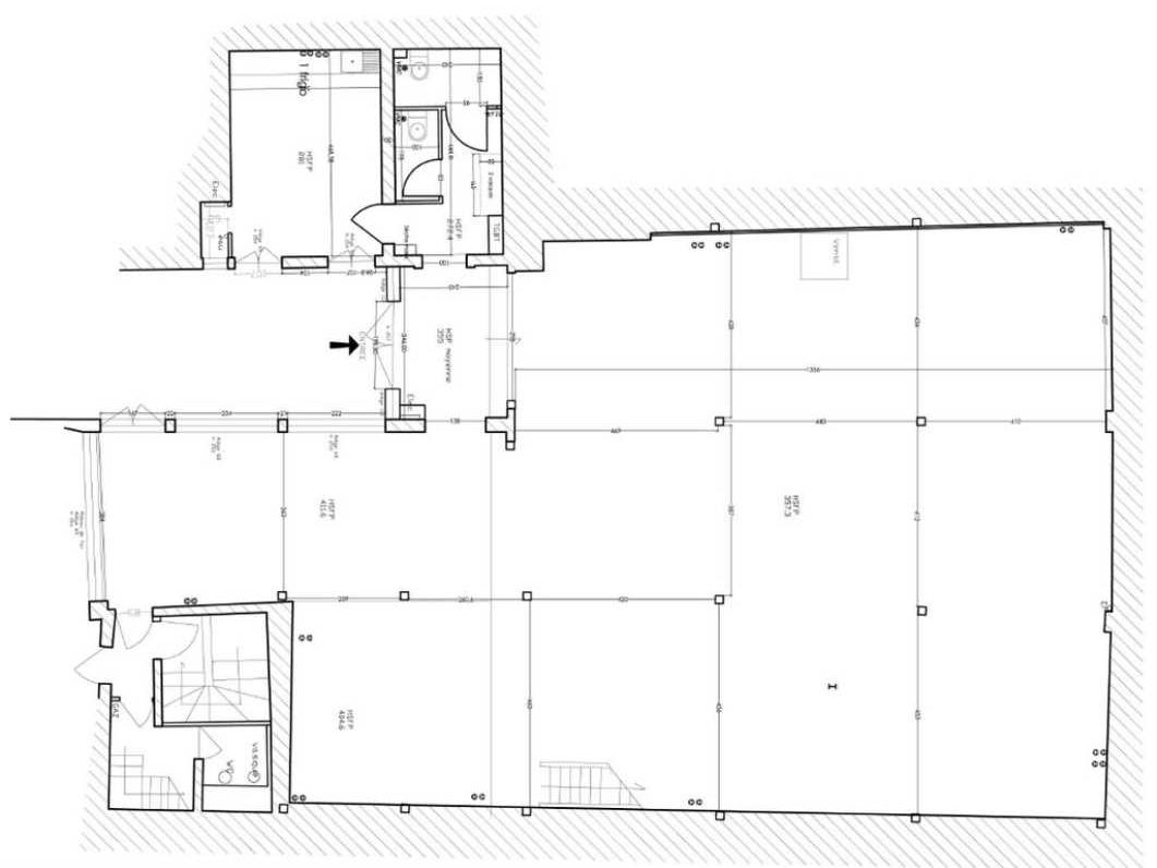
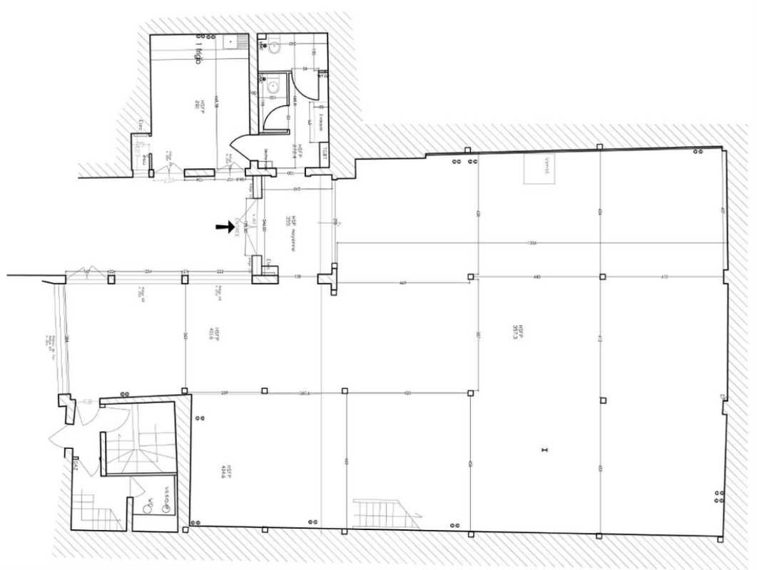
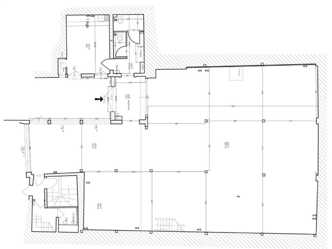
Ces bureaux, d'une surface totale de 500 m², sont répartis entre un lot de 220 m² au 1er étage, un lot de 280 m² en rez-de-chaussée et un lot de 80 m² en sous-sol. L'immeuble, construit en 1910, est implanté en fond de cour, ce qui garantit un environnement de travail calme, tout en bénéficiant de la dynamique du quartier. Les bureaux sont facilement accessibles grâce à la proximité des lignes de métro 2 et 9, ainsi que de nombreux commerces et services. Les espaces sont proposés à la location au loyer de 275 euros/m²/an HT HC, avec un bail 3-6-9 ans ou dérogatoire. Charges : nous consulter. Ces bureaux conviennent parfaitement à toute entreprise souhaitant s'implanter dans un quartier vivant tout en profitant d'un cadre professionnel agréable. Pour plus d'informations ou pour organiser une visite, n'hésitez pas à nous contacter.
Droit au bail 220 000 euros.
Régime Fiscal : T.V.A.
Dépôt de garantie : 3 mois de loyer HT/HC
Paiement Loyer : Mensuel
Honoraires : à la charge du preneur
Information sur le Bail :
Charges : 2 000 euros / an Taxe Foncière : 7 000 euros / an 250 000 euros de droit au bail
Prestations :
Accessibilité:
Métro Charonne (ligne 9)
Métro Philippe Auguste (ligne 2)
Bus Lignes 46-56-61-69-71-76
Les informations sur les risques auxquels ce bien est exposé sont disponibles sur le site Géorisques : www.georisques.gouv.fr
Cushman & Wakefield vous propose à la location plusieurs surfaces de bureaux situées dans un immeuble résidentiel de caractère, au coeur du 11e arrondissement de Paris, entre Nation et Voltaire.
Ces bureaux, d'une surface totale de 500 m², sont répartis entre un lot de 220 m² au 1er étage, un lot de 280 m² en rez-de-chaussée et un lot de 80 m² en sous-sol. L'immeuble, construit en 1910, est implanté en fond de cour, ce qui garantit un environnement de travail calme, tout en bénéficiant de la dynamique du quartier. Les bureaux sont facilement accessibles grâce à la proximité des lignes de métro 2 et 9, ainsi que de nombreux commerces et services. Les espaces sont proposés à la location au loyer de 275 euros/m²/an HT HC, avec un bail 3-6-9 ans ou dérogatoire. Charges : nous consulter. Ces bureaux conviennent parfaitement à toute entreprise souhaitant s'implanter dans un quartier vivant tout en profitant d'un cadre professionnel agréable. Pour plus d'informations ou pour organiser une visite, n'hésitez pas à nous contacter.
Droit au bail 220 000 euros.
| Étage | Type | Surfaces | Dispo | Loyer | Charges | Type de bailRév. annuelle |
|---|---|---|---|---|---|---|
| 1 | Bureaux | 220 | 3-6-9 ans ou DérogatoireSur l'indice ILAT | |||
| RdC | Bureaux | 280 | 3-6-9 ans ou DérogatoireSur l'indice ILAT | |||
| SS | Bureaux | 80 | 3-6-9 ans ou DérogatoireSur l'indice ILAT |
Régime Fiscal : T.V.A.
Dépôt de garantie : 3 mois de loyer HT/HC
Paiement Loyer : Mensuel
Honoraires : à la charge du preneur
Information sur le Bail :
Charges : 2 000 euros / an Taxe Foncière : 7 000 euros / an 250 000 euros de droit au bail
Prestations :
- Ancien bâtiment indépendant industriel entièrement rénové en 2011 situé en fond de cour
- Accès PMR
- ERP RDC uniquement
- Espace fonctionnel et contemporain, idéal pour y intégrer des bureaux et un espace showroom
- Climatisation au R+1 (possibilité d'installer la climatisation partout)
- Entrées indépendantes
- Belle hauteur sous plafond
- RDC : Open space et coin cuisine
- 1er étage : bureaux, salles de réunion, toilettes, local technique
- Sous-sol aménagé et fonctionnel
- Chauffage par impulsion d'air chaud
- Surface RDC : 280 m²
Accessibilité:
Métro Charonne (ligne 9)
Métro Philippe Auguste (ligne 2)
Bus Lignes 46-56-61-69-71-76
Les informations sur les risques auxquels ce bien est exposé sont disponibles sur le site Géorisques : www.georisques.gouv.fr
Voir plus
Afficher les consommations énergétiques
Localisation et transport aux alentours
Favoris
Exporter
Appeler
Contacter
Signaler cette annonce










