BNP Paribas Real Estate, N°1 de la transaction en immobilier d''entreprise en France, vous propose un accompagnement de qualité pour l''acquisition, la vente ou la location d''un bien immobilier.Vo ...
En savoir plus

3 617 m²
HT HC
27 AVENUE CLAUDE VELLEFAUX - Location bureau - 3617 m²
Paris 10 (75010)
Dernière mise à jour : Il y a 2 jours
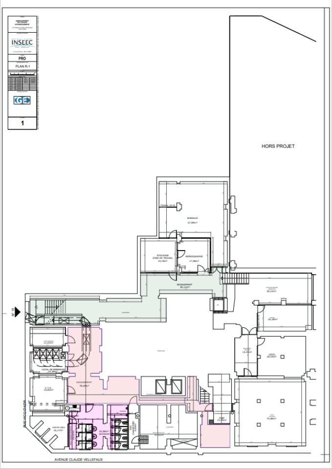
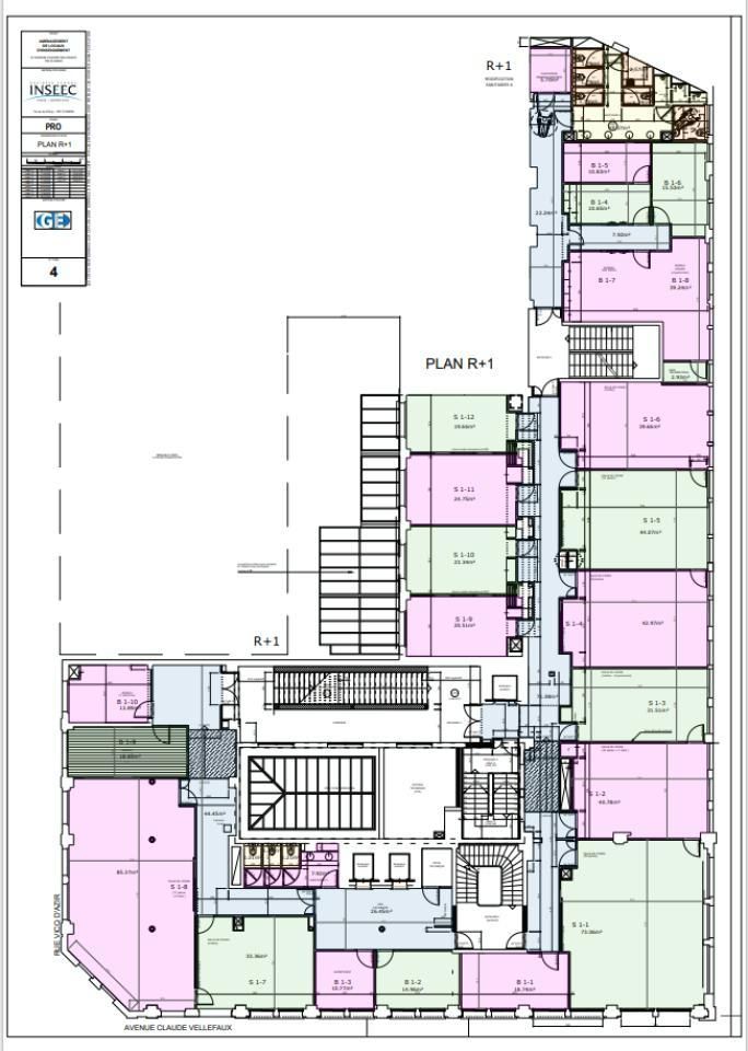
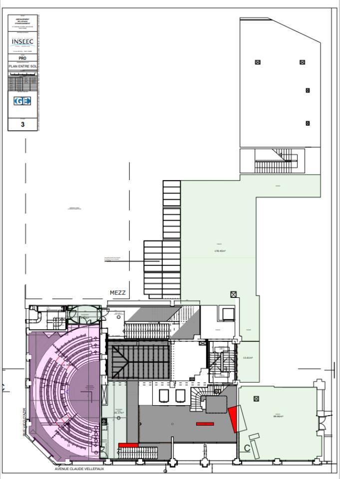
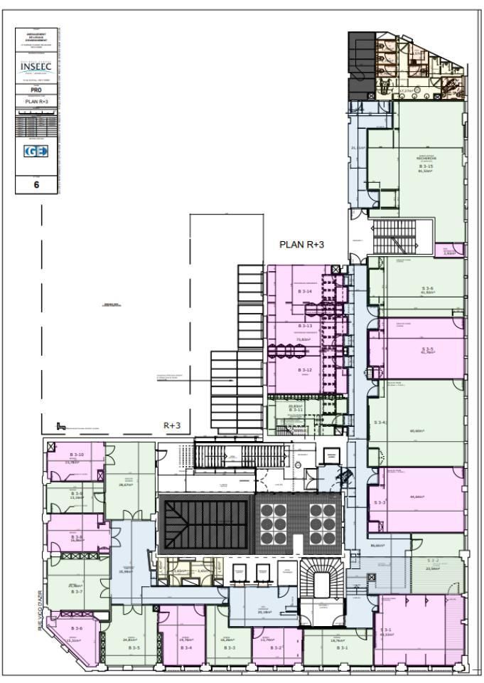
A proximité du Canal Saint Martin, nous vous proposons à la location un immeuble indépendant d'environ 3600 m² situé à toute proximité du métro Colonel Fabien. Ces bureaux répondent aux normes d'ERP 2 Type R avec un capacité maximum de 930. personnes. Ces locaux sont accessibles aux PMR. Cet immeuble est idéal pour accueillir un établissement de formation. Cet immeuble propose un auditorium, de nombreuses salles de réunion, cafétéria, cuisine, salle de sport.
Transports à proximité :
L'immeuble bénéficie d'une excellente desserte en transports en commun :
Métro :
Colonel Fabien (Ligne 2)
Bolivar (Ligne 7bis)
Louis Blanc (Ligne 7, 7bis)
Chteau-Landon (Ligne 7)
Belleville (Ligne 2)
RER :
Gare du Nord (Lignes B, D et E)
Avantages clés :
Immeuble indépendant
Nombreux services (salles de réunion, cafétéria, salle de sport...)
Capacité importante d'accueil
Accessibilité PMR
Proximité immédiate de plusieurs lignes de métro et gares
Honoraires: Nous consulter. à la signature du bail
| Fiche technique du bien |
|---|
Voir plus
Afficher les consommations énergétiques
Localisation et transport aux alentours
- Colonel Fabien158m (2min à pied)2
Favoris
Exporter
Appeler
Contacter
Signaler cette annonce










