BNP Paribas Real Estate, N°1 de la transaction en immobilier d''entreprise en France, vous propose un accompagnement de qualité pour l''acquisition, la vente ou la location d''un bien immobilier.Vo ...
En savoir plus



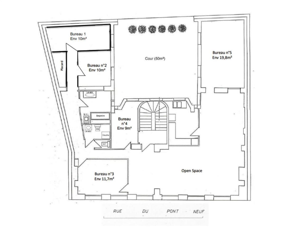
166 m²
HT HC
Location bureau - 166 m²
Paris 1 (75001)
Dernière mise à jour : Hier
BNPPRE vous propose à la location un plateau de bureaux d'une surface de 153,7 m² au R+1 agrémenté d'une terrasse privative de 46m² et d'un cave de 11,5m². Bail professionnel uniquement.
Disponibilité: Immédiate
Honoraires: 15% HT du loyer HT/HC.
Honoraires: 15% HT du loyer HT/HC.
| Fiche technique du bien | |
|---|---|
| Métro | M7 Station Pont Neuf |
| RER | Lignes A-B-D : Les Halles |
| Etat des locaux | Etat d'usage Bon |
| Orientation façade | SUR RUE |
Afficher les consommations énergétiques
Localisation et transport aux alentours
Favoris
Exporter
Appeler
Contacter
Signaler cette annonce










