Nous sommes Immprove, une grande équipe de plus de 200 experts en immobilier d’entreprise, implantés localement avec plus de 20 agences sur tout le territoire.Depuis 2009, notre proximité, notre ét ...
En savoir plus

95 m²
HT HC
Location bureau - 95 m²
Ivry-sur-Seine (94200)
Dernière mise à jour : Il y a 3 jours
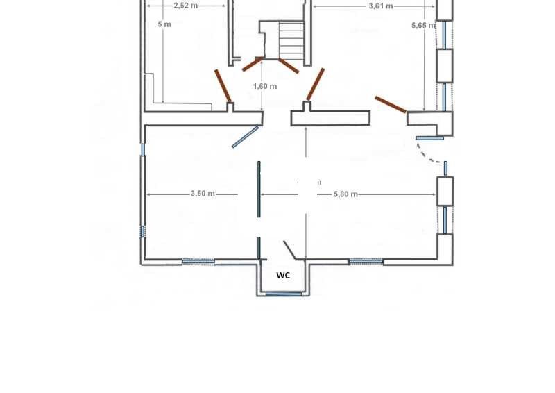
Découvrez une opportunité exceptionnelle avec IMMPROVE, qui vous propose à la location un espace de bureaux de 95 m², niché au rez-de-jardin d'un immeuble moderne à Ivry-sur-Seine. Cet espace non divisible est idéal pour les entreprises en quête d'un environnement professionnel alliant confort et praticité. Situé à proximité immédiate des commerces locaux et du RER C "Ivry-sur-Seine", cet emplacement stratégique vous assure une accessibilité optimale pour vos collaborateurs et clients. Les bureaux, en excellent état, sont cloisonnés et bénéficient d'une luminosité naturelle abondante, créant ainsi un cadre de travail inspirant et productif. Vous apprécierez également la terrasse privative, parfaite pour des moments de détente ou des réunions informelles en plein air. Les sanitaires et la cuisine privatifs ajoutent une touche de confort supplémentaire, permettant à votre équipe de se sentir comme chez elle. Pour couronner le tout, deux places de parking extérieur sont incluses, facilitant ainsi le stationnement pour vous et vos visiteurs. Ne laissez pas passer cette occasion unique d'installer votre entreprise dans un espace qui allie fonctionnalité, confort et accessibilité. Contactez IMMPROVE dès aujourd'hui pour découvrir ce bien d'exception et donner à votre activité l'environnement qu'elle mérite.
Impôt Foncier : 34,28 €//m²/an HT
Régime Fiscal : T.V.A. (20%)
Dépôt de garantie : 3 mois de loyer HT HC
Honoraires : 20% HT du loyer annuel HT HC
Prestations :
Accessibilité:
RER Ivry-sur-Seine (C)
Metro Mairie d'Ivry (7)
Bus 125, 325, 180
Les informations sur les risques auxquels ce bien est exposé sont disponibles sur le site Géorisques : www.georisques.gouv.fr
| Étage | Type | Surfaces | Dispo | Loyer | Charges | Type de bailRév. annuelle |
|---|---|---|---|---|---|---|
| RDJ | Bureaux | 95 | Immédiate | 189,47 m²/an HT HC | 34,1 m²/an HT | Bail Dérogatoire 36 moisselon l'indice des loyers des activités tertiaires (ILAT) |
Impôt Foncier : 34,28 €//m²/an HT
Régime Fiscal : T.V.A. (20%)
Dépôt de garantie : 3 mois de loyer HT HC
Honoraires : 20% HT du loyer annuel HT HC
Prestations :
- Immeuble ancien
- Accès véhicules légers
- Parties communes de bon standing
- Fibre optique
- Jardin paysager
- Cour
- Rénové
- Espace ouvert
- Bureaux cloisonnés
- Salle de réunion
- Espace détente
- Local technique
- Cuisine
- Sanitaires privatifs
- Locaux lumineux
- Double exposition
- Locaux rationnels et modulables
- Terrasse privative
- Prises RJ45
- Chauffage électrique
- Immeuble indépendant
- Surface RDC : 95 m²
Accessibilité:
RER Ivry-sur-Seine (C)
Metro Mairie d'Ivry (7)
Bus 125, 325, 180
Les informations sur les risques auxquels ce bien est exposé sont disponibles sur le site Géorisques : www.georisques.gouv.fr
Voir plus
Afficher les consommations énergétiques
Favoris
Exporter
Appeler
Contacter
Signaler cette annonce
