Conseil en immobilier d'entreprise, Cushman & Wakefield est un acteur incontournable au rayonnement international. Cushman & Wakefield offre des solutions dans toutes les étapes que comporte un p ...
En savoir plus

315 m²
HT HC
METROSUD - Location bureau - 315 m²
Ivry-sur-Seine (94200)
Dernière mise à jour : Il y a 4 jours
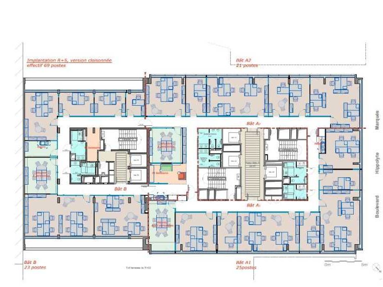
Bureaux lumineux de 315 m² à louer au 6e étage - Ivry-sur-Seine, proche métro et tramway
Immeuble METROSUD
À louer à Ivry-sur-Seine, bureaux de 315 m² situés au 6e étage de l'immeuble Métrosud, en façade du boulevard périphérique à la Porte d'Ivry. Cette surface lumineuse offre un cadre de travail agréable dans un immeuble moderne, facilement aménageable en espaces ouverts ou bureaux cloisonnés selon vos besoins.
L'immeuble bénéficie de parties communes récemment rénovées, avec des espaces de services partagés tels qu'une cafétéria, des zones de détente et des salles de réunion mutualisées, créant un environnement professionnel complet et fonctionnel.
À seulement quelques minutes à pied du métro ligne 7 et du tramway T3a, ce site bénéficie d'un excellent niveau d'accessibilité. Un accueil avec contrôle d'accès est assuré dans le hall.
Une opportunité idéale pour des entreprises à la recherche de bureaux bien situés, flexibles et confortables. N'hésitez pas à nous contacter pour en savoir plus ou organiser une visite.
Impôt Foncier : 37 €//m²/an
Régime Fiscal : T.V.A.
Dépôt de garantie : 3 mois de loyer HT/HC
Paiement Loyer : Trimestriel
Honoraires : à la charge du preneur
Taxe Bureau : 11,66 €/m²/an
Information sur le Bail :
Espace service : 7 euros HTHC/m²
Prestations :
Accessibilité:
Métro Porte d'Ivry (ligne 7)
Tram Porte d'Ivry (T3a)
Tram Chateaudun - Barbès (T9)
Bus Lignes 27-83-132-323
Accès routier BP sortie "Porte d'Ivry" - N7-N305-D50-D54
Les informations sur les risques auxquels ce bien est exposé sont disponibles sur le site Géorisques : www.georisques.gouv.fr
Immeuble METROSUD
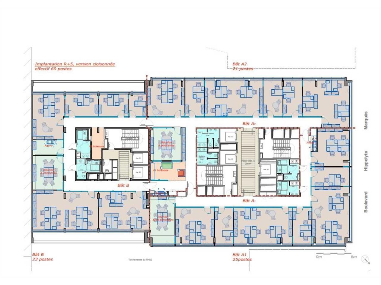
À louer à Ivry-sur-Seine, bureaux de 315 m² situés au 6e étage de l'immeuble Métrosud, en façade du boulevard périphérique à la Porte d'Ivry. Cette surface lumineuse offre un cadre de travail agréable dans un immeuble moderne, facilement aménageable en espaces ouverts ou bureaux cloisonnés selon vos besoins.
L'immeuble bénéficie de parties communes récemment rénovées, avec des espaces de services partagés tels qu'une cafétéria, des zones de détente et des salles de réunion mutualisées, créant un environnement professionnel complet et fonctionnel.
À seulement quelques minutes à pied du métro ligne 7 et du tramway T3a, ce site bénéficie d'un excellent niveau d'accessibilité. Un accueil avec contrôle d'accès est assuré dans le hall.
Une opportunité idéale pour des entreprises à la recherche de bureaux bien situés, flexibles et confortables. N'hésitez pas à nous contacter pour en savoir plus ou organiser une visite.
| Étage | Type | Surfaces | Dispo | Loyer | Charges | Type de bailRév. annuelle |
|---|---|---|---|---|---|---|
| 6 | Bureaux | 315 | 250 HT/HC/m²/an | 50 HT/m²/an | 3-6-9 ansSur l'indice ILAT | |
| SS | Arch./Reser. | 263 | 70 HT/HC/m²/an | 3-6-9 ansSur l'indice ILAT | ||
| Intérieur | Parkings | 1200 HT/HC/U/an | 3-6-9 ansSur l'indice ILAT |
Impôt Foncier : 37 €//m²/an
Régime Fiscal : T.V.A.
Dépôt de garantie : 3 mois de loyer HT/HC
Paiement Loyer : Trimestriel
Honoraires : à la charge du preneur
Taxe Bureau : 11,66 €/m²/an
Information sur le Bail :
Espace service : 7 euros HTHC/m²
Prestations :
- Immeuble de standing Code du travail
- Visibilité périphérique
- Deux halls d'accueil indépendants
- Trois ascenseurs
- Gardien 7h/19h
- Systèmes de vidéo-portiers et vidéo-surveillance
- Contrôle d'accès par lecteurs de badges
- Accessibilité PMR
- Fibre optique
- Accès parking par ascenseurs
- Espace conciergerie
- Terrasse aménagée et accessible
- Espace cafétéria
- Salle de réunion mutualisée
- Espace de co-working
- Espace détente
- Parkings en sous-sol
- Stationnements pour véhicules électriques
- Surfaces lumineuses et rationnelles
- Surface RDC : 0 m²
Accessibilité:
Métro Porte d'Ivry (ligne 7)
Tram Porte d'Ivry (T3a)
Tram Chateaudun - Barbès (T9)
Bus Lignes 27-83-132-323
Accès routier BP sortie "Porte d'Ivry" - N7-N305-D50-D54
Les informations sur les risques auxquels ce bien est exposé sont disponibles sur le site Géorisques : www.georisques.gouv.fr
Voir plus
Afficher les consommations énergétiques
Localisation et transport aux alentours
Favoris
Exporter
Appeler
Contacter
Signaler cette annonce










