Nous sommes Immprove, une grande équipe de plus de 200 experts en immobilier d’entreprise, implantés localement avec plus de 20 agences sur tout le territoire.Depuis 2009, notre proximité, notre ét ...
En savoir plus



70 m²
HT HC
Location bureau - 70 m²
Paris 11 (75011)
Dernière mise à jour : Il y a 4 jours
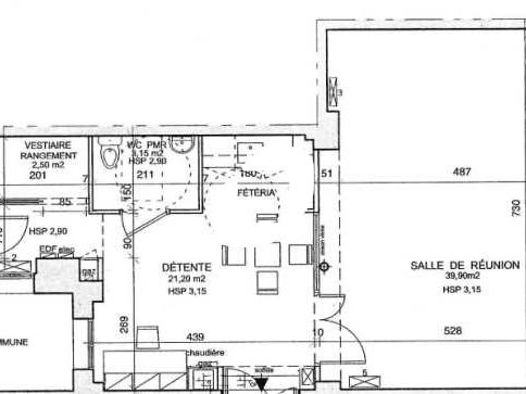
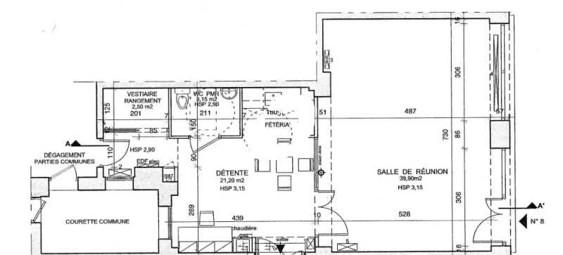
IMMPROVE vous propose à la location une surface de bureaux de 70 m² en rez-de-chaussée. Située en plein coeur du 11eme arrondissement de Paris, cette surface comprend une salle de réunion, des bureaux cloisonnés, une cuisine équipée ainsi qu'un sanitaire PMR. L'espace est lumineux grâce à sa vitrine linéaire.
Impôt Foncier : 17,48 €/m²/an HT
Régime Fiscal : TVA
Dépôt de garantie : 3 mois de loyer HT HC
Honoraires : 30% HT du loyer annuel HT HC à la charge du preneur.
Prestations :
Accessibilité:
Métro Nation (2,6,9)
Métro Rue des boulets (9)
Métro Reuilly - diderot (8)
Métro Avron (2)
Bus Chevreul (86)
Bus Voltaire - Montreuil (56)
Bus Claude Tillier (86)
Les informations sur les risques auxquels ce bien est exposé sont disponibles sur le site Géorisques : www.georisques.gouv.fr
| Étage | Type | Surfaces | Dispo | Loyer | Charges | Type de bailRév. annuelle |
|---|---|---|---|---|---|---|
| RDC | Bureaux | 70 | Immédiate | 440 m²/an HT HC | 20,34 m²/an HT | Bail Commercial 3-6-9 ansselon l'indice des loyers des activités tertiaires (ILAT) |
Impôt Foncier : 17,48 €/m²/an HT
Régime Fiscal : TVA
Dépôt de garantie : 3 mois de loyer HT HC
Honoraires : 30% HT du loyer annuel HT HC à la charge du preneur.
Prestations :
- Immeuble ancien
- Façade en pierres de taille
- Accès PMR
- Accès privatif sur rue
- Double accès
- Parties communes de bon standing
- Chauffage immeuble gaz
- Fibre optique
- Cour
- Espace ouvert
- Espace détente
- Belle hauteur sous plafond
- Locaux traversants
- Décloisonnement possible
- Locaux rationnels et modulables
- Cour
- Faux plafonds
- Parquet et carrelage
- Cloisons sèches
- Plinthes périphériques
- Câblage informatique et téléphonique
- Prises RJ45
- Locaux E.R.P.
- Chauffage individuel au gaz
- Cuisine
- Sanitaires privatifs
- Surface RDC : 70 m²
Accessibilité:
Métro Nation (2,6,9)
Métro Rue des boulets (9)
Métro Reuilly - diderot (8)
Métro Avron (2)
Bus Chevreul (86)
Bus Voltaire - Montreuil (56)
Bus Claude Tillier (86)
Les informations sur les risques auxquels ce bien est exposé sont disponibles sur le site Géorisques : www.georisques.gouv.fr
Voir plus
Afficher les consommations énergétiques
Favoris
Exporter
Appeler
Contacter
Signaler cette annonce










