Créée en mai 2012, Wellstone est une société de conseil en immobilier d'entreprise qui accompagne ses clients propriétaires, investisseurs et utilisateurs dans leurs différents projets immobiliers ...
En savoir plus

103 m²
HT HC
Location bureau - 103 m²
Paris 1 (75001)
Publiée : Il y a 2 jours
À deux pas de la place de la Madeleine, en plein coeur de la rue Saint-Honoré, Wellstone vous propose de découvrir un superbe espace de bureaux situé dans un très bel immeuble haussmannien.
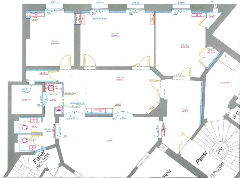
Bénéficiant d'une très belle hauteur sous plafond et d'une configuration idéale comprenant trois bureaux et un open space, cet espace de caractère séduit par ses prestations : parquet, moulures et cheminée.
Il conviendra parfaitement à toute société à la recherche de bureaux élégants et représentatifs dans un emplacement premium.
Impôt Foncier : 11 €/m²/an
Régime Fiscal : T.V.A.
Dépôt de garantie : 3 mois de loyer HT/HC
Honoraires : A la charge du preneur.
Taxe Bureau : 25,77 €/m²/an
Information sur le Bail :
Assurances 1 euros/m²/an HT Les charges comprennent : eau, électricité, chauffage, climatisation, ascenseurs, nettoyage, entretien, contrôles périodiques,...
Prestations :
Accessibilité:
Metro Concorde (1,8,12)
Metro Madeleine (8,12,14)
Metro Opéra (3, 7, 8)
Les informations sur les risques auxquels ce bien est exposé sont disponibles sur le site Géorisques : www.georisques.gouv.fr
Bénéficiant d'une très belle hauteur sous plafond et d'une configuration idéale comprenant trois bureaux et un open space, cet espace de caractère séduit par ses prestations : parquet, moulures et cheminée.
Il conviendra parfaitement à toute société à la recherche de bureaux élégants et représentatifs dans un emplacement premium.
| Étage | Type | Surfaces | Dispo | Loyer | Charges | Type de bailRév. annuelle |
|---|---|---|---|---|---|---|
| 3 | Bureaux | 103 | 776 m²/an HT HC | 90,62 m²/an HT | 3-6-9 ansILAT |
Impôt Foncier : 11 €/m²/an
Régime Fiscal : T.V.A.
Dépôt de garantie : 3 mois de loyer HT/HC
Honoraires : A la charge du preneur.
Taxe Bureau : 25,77 €/m²/an
Information sur le Bail :
Assurances 1 euros/m²/an HT Les charges comprennent : eau, électricité, chauffage, climatisation, ascenseurs, nettoyage, entretien, contrôles périodiques,...
Prestations :
- Parties communes de très bon standing
- Surface organisée en 3 bureaux et 1 open space
- Très belle hauteur sous plafond
- Parquet, Moulures et Cheminées
- Fibre Optique
Accessibilité:
Metro Concorde (1,8,12)
Metro Madeleine (8,12,14)
Metro Opéra (3, 7, 8)
Les informations sur les risques auxquels ce bien est exposé sont disponibles sur le site Géorisques : www.georisques.gouv.fr
Voir plus
Afficher les consommations énergétiques
Localisation et transport aux alentours
Favoris
Exporter
Appeler
Contacter
Signaler cette annonce
